AT
Acorn Court, Dingle, L8
By Atlas Estate Agents
£ 130,000
Reviews
3 out of 5 stars
Atlas Estate Agents says ..
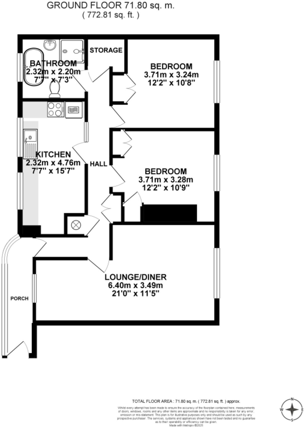
Set on the second floor in vibrant L8, this modern two-bedroom home offers a sleek kitchen, stylish bathroom and ample storage. With secure entry, off-road parking, and the Baltic Market nearby, it’s just a short hop to the city centre by car or excellent public transport.
Property Oracle says ..
Therefore, we give this property 7 / 10. *Disclaimer: This is our option and does constitute a recommendation or financial advice. Do your own research. *
- Price
- 8
- Condition
- 8
- Location
- 7
- Land
- 0
- Bedrooms
- 2
- Bathrooms
- 1
- Sqft (est)
- 674.73
The heatmap indicates the level of crime in the area. The color of the heatmap indicates the crime severity and recency.
Metrics Year-on-Year
- Average area value
- 277,018.00 £Decreased by 9.31 %
- Est sale value
- 269,892.00 £Increased by 21.95 %
- Average area rental value
- 1,179.00 £/moIncreased by 1.11 %
- Est letting value
- 674.73 £/moUnchanged by 0.00 %
- Est rental Yield
- 5.11 %Increased by 11.57 %
- Crime Rate
- 2.00 %Unchanged by 0.00 %
from 305,441.00 £
from 221,311.44 £
from 1,166.00 £/mo
from 674.73 £/mo
from 4.58 %
from 2.00 %
Agent Activity
Atlas Estate Agents created the listing.
Nearby Schools
| Name | Type | Ofsted | Distance |
|---|---|---|---|
| St Patrick'S Catholic Primary School | Voluntary Aided School | Outstanding | 0.23 KM |
| Windsor Community Primary School | Community School | Outstanding | 0.24 KM |
| Progress Schools - Toxteth | Other Independent School | Good | 0.27 KM |
| Holy Family Catholic Primary School | Voluntary Aided School | Special Measures | 0.53 KM |
| Lipa Sixth Form College | Free Schools 16 To 19 | Outstanding | 0.94 KM |
Images
Nearby Streets
| Name | Average Price | Average Sqft | Distance |
|---|---|---|---|
| Park Road | £ 155,000 | 0 | 0.00 KM |
| Park Place | £ 110,000 | 0 | 0.00 KM |
| Riverpark Gardens | £ 0 | 0 | 0.00 KM |
| Prophet Walk | £ 1,260,000 | 0 | 0.00 KM |
| Hill Street | £ 0 | 0 | 0.00 KM |
Nearby Transport
| Name | NLC | TLC | Distance |
|---|---|---|---|
| Brunswick | 3623 | BRW | 1.20 KM |
| Liverpool Central | 2242 | LVC | 1.84 KM |
| Liverpool Lime Street | 2246 | LIV | 2.00 KM |
| St Michaels | 2248 | STM | 2.52 KM |
| Edge Hill | 2169 | EDG | 2.79 KM |
Nearby Listings
| Address | Price | Type | Score | Distance |
|---|---|---|---|---|
| Acorn Court, Dingle, L8 | £ 130,000 | BUY | 7 / 10 | 0.00 KM |
| Acorn Court, Toxteth, L8 | £ 130,000 | BUY | 6 / 10 | 0.00 KM |
| Acorn Court, Toxteth, Liverpool, L8 | £ 110,000 | BUY | 5 / 10 | 0.01 KM |
| Acorn Court, Dingle, L8 | £ 95,000 | BUY | Unknown | 0.02 KM |
| Acorn Court, Toxteth, L8 | £ 120,000 | BUY | Unknown | 0.03 KM |
Nearby Properties
| Address | Price | Distance |
|---|---|---|
| 61 Acorn Court | £ 62,500 | 0.02 KM |
| 29 Acorn Court | £ 110,000 | 0.02 KM |
| 22 Acorn Court | £ 40,000 | 0.02 KM |
| 27 Acorn Court | £ 84,000 | 0.02 KM |
| 68 Acorn Court | £ 100,000 | 0.02 KM |