Fine & Country says ..
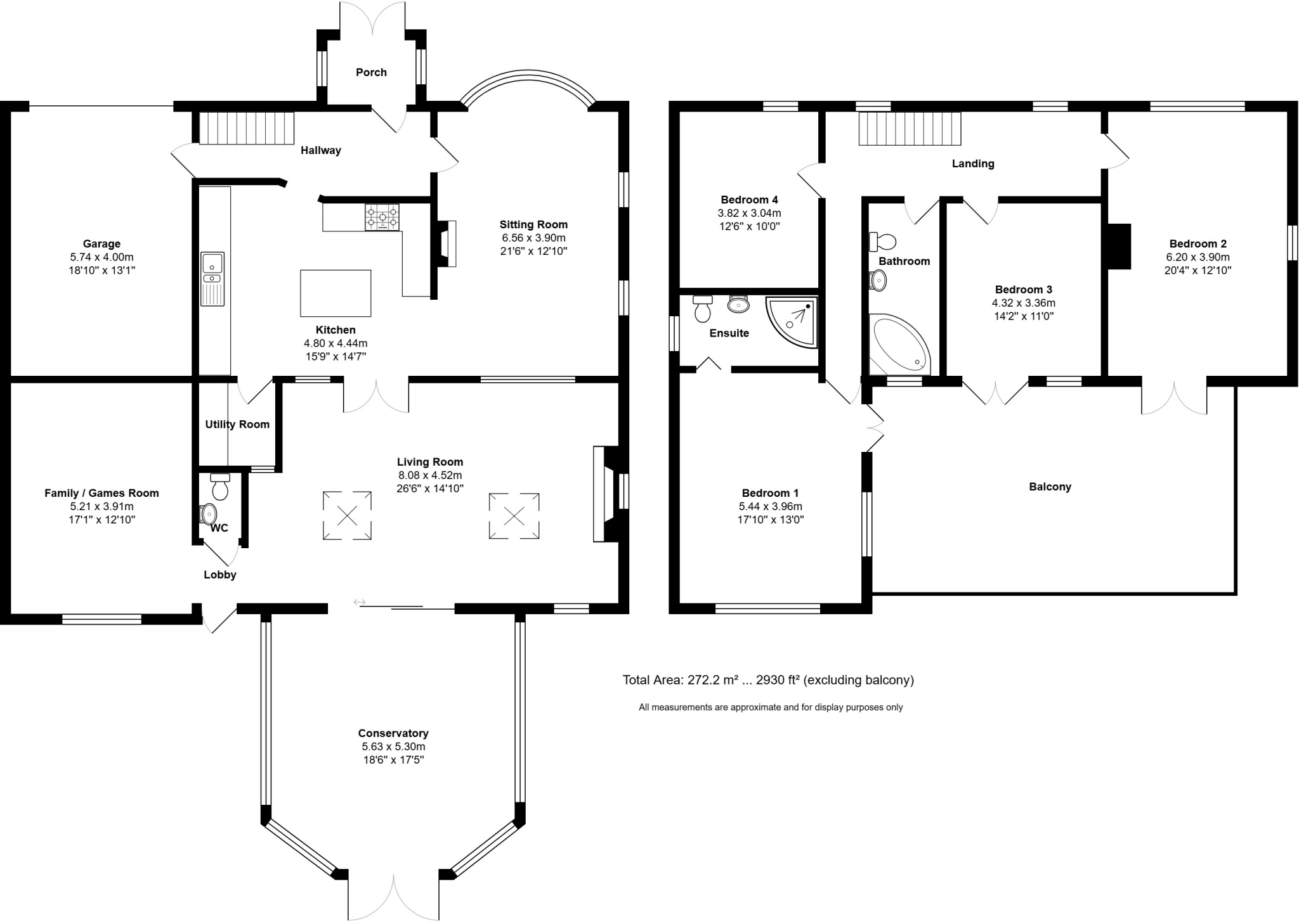
An individually designed family home which is situated at the top of a popular tree lined avenue in Drayton close to amenities, shops, surgeries, catchment for both Solent and Springfield Schools (subject to confirmation) and commutable road and rail links. The house offers 2930 sq ft of living s...
Property Oracle says ..
Therefore, we give this property 7 / 10. *Disclaimer: This is our option and does constitute a recommendation or financial advice. Do your own research. *
- Price
- 7
- Condition
- 6
- Location
- 8
- Land
- 7
- Bedrooms
- 4
- Bathrooms
- 2
- Sqft (est)
- 2,458.69
The heatmap indicates the level of crime in the area. The color of the heatmap indicates the crime severity and recency.
Metrics Year-on-Year
- Average area value
- 470,769.00 £Increased by 5.17 %
- Est sale value
- 922,008.75 £Increased by 32.51 %
- Average area rental value
- 1,124.00 £/moDecreased by 15.81 %
- Est letting value
- 0.00 £/mo
- Est rental Yield
- 2.87 %Decreased by 19.83 %
- Crime Rate
- 2.00 %Unchanged by 0.00 %
from 447,618.00 £
from 695,809.27 £
from 1,335.00 £/mo
from 0.00 £/mo
from 3.58 %
from 2.00 %
Agent Activity
Fine & Country created the listing.
Nearby Schools
| Name | Type | Ofsted | Distance |
|---|---|---|---|
| Solent Junior School | Academy Converter | Good | 0.45 KM |
| Solent Infant School | Academy Converter | Good | 0.63 KM |
| Springfield School | Academy Converter | Good | 0.95 KM |
| Purbrook Park School | Foundation School | Good | 1.15 KM |
| Morelands Primary School | Community School | Requires improvement | 1.58 KM |
Images
Nearby Streets
| Name | Average Price | Average Sqft | Distance |
|---|---|---|---|
| Blake Road | £ 0 | 0 | 0.00 KM |
| Langstone Court | £ 285,000 | 0 | 0.00 KM |
| Paddock Close | £ 0 | 0 | 0.00 KM |
| Braemar Avenue | £ 0 | 0 | 0.00 KM |
| East Court | £ 0 | 0 | 0.00 KM |
Nearby Transport
| Name | NLC | TLC | Distance |
|---|---|---|---|
| Cosham | 5896 | CSA | 2.77 KM |
| Hilsea | 5539 | HLS | 2.99 KM |
| Bedhampton | 5538 | BDH | 5.32 KM |
| Havant | 5532 | HAV | 6.89 KM |
| Fratton | 5509 | FTN | 6.91 KM |
Nearby Listings
| Address | Price | Type | Score | Distance |
|---|---|---|---|---|
| Drayton, Hampshire | £ 950,000 | BUY | 7 / 10 | 0.00 KM |
| Drayton, Hampshire | £ 675,000 | BUY | 6 / 10 | 0.06 KM |
| Down End Road, Drayton, Portsmouth, Hampshire, PO6 | £ 795,000 | BUY | 7 / 10 | 0.11 KM |
| Uplands Road, Drayton | £ 524,995 | BUY | 7 / 10 | 0.16 KM |
| Down End Road, Portsmouth | £ 600,000 | BUY | 6 / 10 | 0.17 KM |
Nearby Properties
| Address | Price | Distance |
|---|---|---|
| 30 Portsdown Avenue | £ 389,995 | 0.18 KM |
| 25 Portsdown Avenue | £ 415,000 | 0.18 KM |
| 17 Portsdown Avenue | £ 450,000 | 0.18 KM |
| 27 Portsdown Avenue | £ 299,995 | 0.18 KM |
| 19 Portsdown Avenue | £ 349,950 | 0.18 KM |