3 Glendinning Drive, Kirkliston, EH29
Aberdein Considine logo

3 Glendinning Drive, Kirkliston, EH29

By Aberdein Considine

£ 385,000

Reviews

4 out of 5 stars

Aberdein Considine says ..

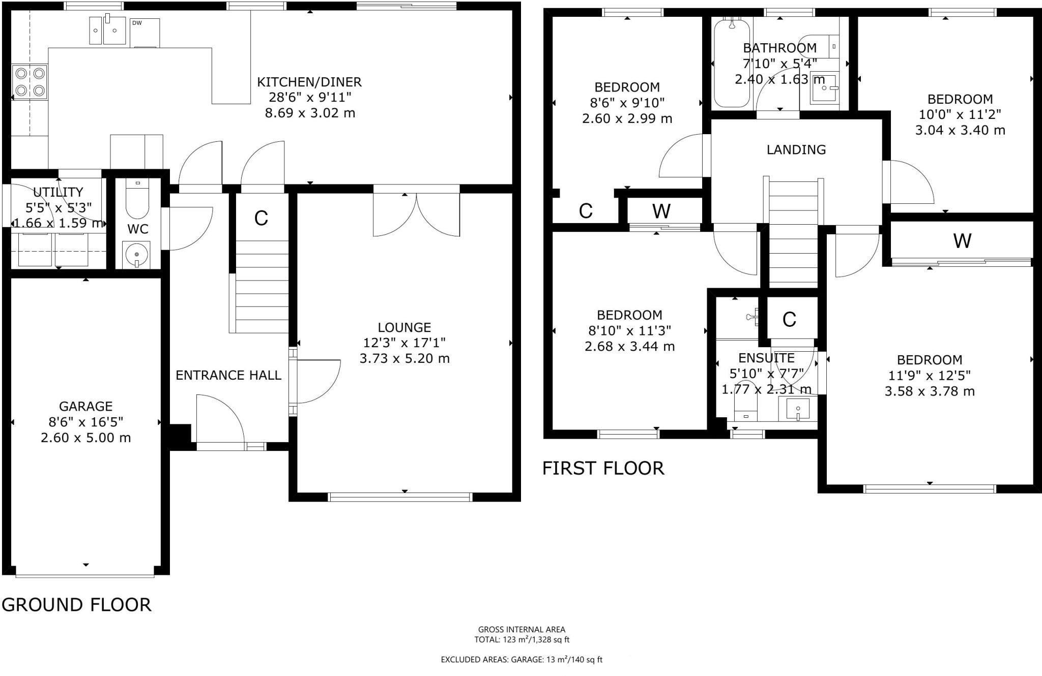
Enjoying bright and immaculately presented interiors is this lovely detached house. Forming part of a modern development within the sought after village of Kirkliston, the house offers family accommodation with gas central heating, recently installed UPVC doors and double glazed windows througho...

Property Oracle says ..

This property is a 4 bedroom detached house located in Kirkliston, Edinburgh. Based on the images provided, the property appears to be well-maintained and in excellent condition. The kitchen and bathrooms have been recently updated to a modern standard. There is also a well-maintained garden. The property is listed at £385,000 which is slightly below the average price for the area of £387,030. Considering the condition, location, and size of the property, the list price appears to be reasonable.

Therefore, we give this property 8 / 10. *Disclaimer: This is our option and does constitute a recommendation or financial advice. Do your own research. *

Price
8
Condition
9
Location
8
Land
7
Bedrooms
4
Bathrooms
3
Sqft (est)
1,323.96

The heatmap indicates the level of crime in the area. The color of the heatmap indicates the crime severity and recency.

Metrics Year-on-Year

Average area value
426,997.00 £
Decreased by 7.59 %
from 462,051.00 £
Est sale value
771,868.68 £
Increased by 42.54 %
from 541,499.64 £
Average area rental value
1,507.00 £/mo
Increased by 2.17 %
from 1,475.00 £/mo
Est letting value
2,647.92 £/mo
Increased by 100.00 %
from 1,323.96 £/mo
Est rental Yield
4.24 %
Increased by 10.70 %
from 3.83 %
Crime Rate
0.00 %
from 0.00 %

Agent Activity

  • Aberdein Considine created the listing.

Images

Bedroom 2 Bedroom 2 Alt Bedroom 3 Bedroom 3 Alt Bedroom 4 Bedroom 4 Alt Bathroom Bathroom Alt Bathroom Alt Utility Room WC Garden Garden Alt Garden Alt Garden Alt External External Alt Main Lounge Diner Lounge Alt Lounge Alt Kitchen Kitchen Alt Kitchen Alt Diner Alt Diner Alt Diner Alt Hallway Hallway Alt Landing Landing Alt Bedroom 1 Bedroom 1 Alt En-Suite En- Suite Alt

Nearby Streets

NameAverage PriceAverage SqftDistance
Glendinning Drive £ 000.00 KM
Kirklands Park Grove £ 280,00000.00 KM
Maude Place £ 400,00000.00 KM
Buie Rigg £ 275,00000.00 KM
Maude Park £ 000.00 KM

Nearby Transport

NameNLCTLCDistance
Dalmeny9415DAM4.61 KM
North Queensferry9189NQU6.29 KM
Kirknewton9230KKN8.10 KM
Inverkeithing9136INK8.62 KM
Rosyth9190ROS9.75 KM

Nearby Listings

AddressPriceTypeScoreDistance
3 Glendinning Drive, Kirkliston, EH29 £ 385,000BUY8 / 100.00 KM
14 Kirklands Park Grove, Kirkliston, EH29 £ 260,000BUY7 / 100.12 KM
1 Kirklands Park Crescent, Kirkliston, EH29 9EP £ 375,000BUYUnknown0.13 KM
2 Glendinning Road, Kirkliston, EH29 9HE £ 385,000BUY7 / 100.16 KM
40 Kirklands Park Street, Kirkliston, EH29 9EY £ 250,000BUY8 / 100.16 KM