Macfarlane Road, Shepherds Bush
By Rolfe East
£ 850,000
Reviews
2 out of 5 stars
Rolfe East says ..
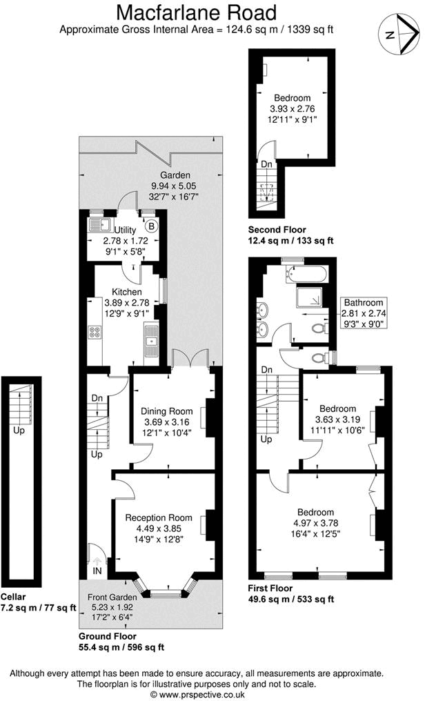
Being Sold via Secure Sale. Terms & Conditions apply. Starting offers £850,000. A Victorian three bedroom family home situated within walking distance of Westfield shopping centre. The property consists of two reception rooms, separate kitchen and utility room, three bedrooms, family bat...
Property Oracle says ..
This three-bedroom terraced house on Macfarlane Road, Shepherds Bush, presents a mixed bag of opportunities and challenges for potential buyers. The property’s location is a significant strength. Shepherds Bush offers excellent transport links via the London Underground and Overground, providing easy access to central London and other parts of the city. The proximity to Westfield London shopping centre and several highly-rated schools adds to its appeal. However, the interior of the property requires modernisation and updating. While the structure appears sound, the kitchen and bathrooms look dated, and the overall aesthetic could benefit from a refresh. The garden, while present, is relatively small and requires some landscaping. The list price of £850,000 needs to be considered in light of these factors. While Shepherds Bush commands high property prices, the need for renovations might make the property less attractive to buyers looking for a move-in-ready home. A thorough survey and cost estimate for renovations are essential before making an offer. Overall, the property represents a solid investment opportunity for someone willing to undertake some renovation work to enhance its value and appeal. The lack of precise data on nearby property sizes makes a definitive price per square foot comparison challenging. Therefore, a more comprehensive market analysis is recommended before making a final decision.
Therefore, we give this property 5 / 10. *Disclaimer: This is our option and does constitute a recommendation or financial advice. Do your own research. *
- Price
- 7
- Condition
- 5
- Location
- 7
- Land
- 3
- Bedrooms
- 3
- Bathrooms
- 1
- Sqft (est)
- 1,339.00
The heatmap indicates the level of crime in the area. The color of the heatmap indicates the crime severity and recency.
Metrics Year-on-Year
- Average area value
- 1,114,643.00 £Increased by 25.51 %
- Est sale value
- 1,578,681.00 £Increased by 23.46 %
- Average area rental value
- 1,921.00 £/moDecreased by 14.77 %
- Est letting value
- 2,678.00 £/moUnchanged by 0.00 %
- Est rental Yield
- 2.07 %Decreased by 32.13 %
- Crime Rate
- 11.00 %Unchanged by 0.00 %
Agent Activity
Rolfe East created the listing.
Nearby Schools
| Name | Type | Ofsted | Distance |
|---|---|---|---|
| Young Dancers Academy | Other Independent School | Outstanding | 0.23 KM |
| St Stephen'S Cofe Primary School | Voluntary Aided School | Outstanding | 0.26 KM |
| Shepherds Bush Families Project And Children'S Centre | Children's Centre Linked Site | 0.32 KM | |
| Miles Coverdale Primary School | Community School | Outstanding | 0.47 KM |
| Ark Swift Primary Academy | Academy Sponsor Led | Good | 0.70 KM |
Images
Nearby Streets
| Name | Average Price | Average Sqft | Distance |
|---|---|---|---|
| Macfarlane Place | £ 0 | 0 | 0.00 KM |
| Uxbridge Road | £ 0 | 0 | 0.00 KM |
| Lower Road | £ 0 | 0 | 0.00 KM |
| Fountain Park Way | £ 0 | 0 | 0.00 KM |
| Southway Close | £ 0 | 0 | 0.00 KM |
Nearby Transport
| Name | NLC | TLC | Distance |
|---|---|---|---|
| Shepherd'S Bush | 9587 | SPB | 0.92 KM |
| Kensington (Olympia) | 3092 | KPA | 1.98 KM |
| Kensal Green | 1447 | KNL | 2.62 KM |
| Kensal Rise | 1448 | KNR | 3.13 KM |
| Willesden Junction | 1457 | WIJ | 3.52 KM |
Nearby Listings
| Address | Price | Type | Score | Distance |
|---|---|---|---|---|
| Macfarlane Road, Shepherd's Bush, London, W12 | £ 650,000 | BUY | Unknown | 0.03 KM |
| Macfarlane Road, Shepherd's Bush, London, W12 | £ 1,950,000 | BUY | Unknown | 0.03 KM |
| Macfarlane Road, London | £ 650,000 | BUY | 6 / 10 | 0.04 KM |
| Macfarlane Road, London, W12 | £ 1,950,000 | BUY | 8 / 10 | 0.04 KM |
| Macfarlane Road, Shepherd's Bush, London, W12 | £ 400,000 | BUY | 6 / 10 | 0.04 KM |
Nearby Properties
| Address | Price | Distance |
|---|---|---|
| 41c Macfarlane Road | £ 350,000 | 0.03 KM |
| 69 Macfarlane Road | £ 570,000 | 0.03 KM |
| 49b Macfarlane Road | £ 272,000 | 0.03 KM |
| 57 Macfarlane Road | £ 810,000 | 0.03 KM |
| 63 Macfarlane Road | £ 1,180,000 | 0.03 KM |