Citydeal Estates says ..
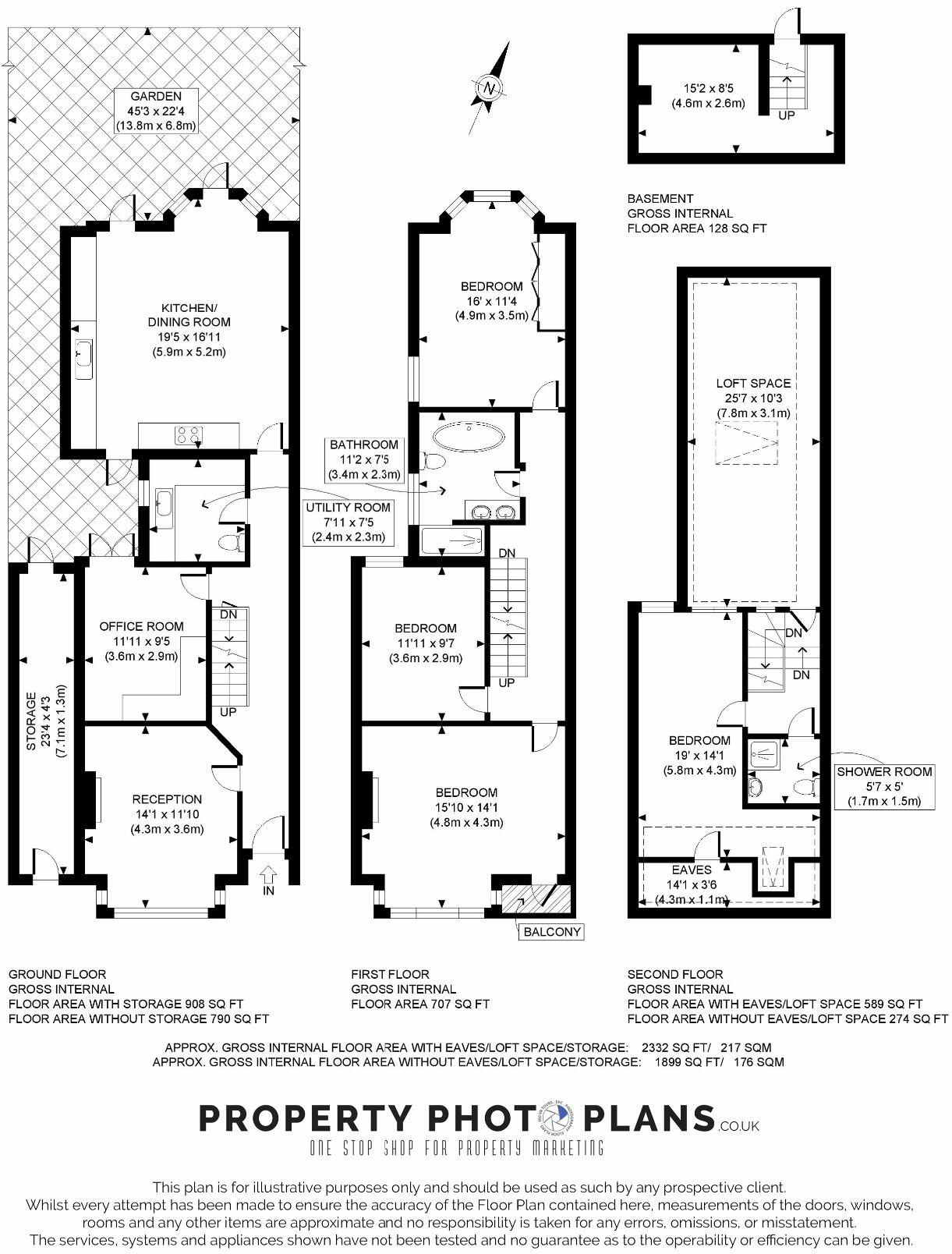
A superb four double bedroom semi detached period property situated in the popular Mill Hill conservation area. The property is beautifully presented throughout with benefits including two reception rooms, large kitchen/diner, two bathrooms and a lovely spacious garden to the rear.
Property Oracle says ..
This four-bedroom, two-bathroom semi-detached house on Mill Hill Road, Acton, is presented as a well-maintained property. The property boasts a modern kitchen with an extension creating a spacious kitchen/diner area, and what seems to be a recently upgraded bathroom. High-quality fixtures and fittings are evident in the photos. The inclusion of a garden is a significant asset, given the scarcity of garden space in many London properties. The property’s location in South Acton offers convenience due to its proximity to the South Acton Overground station. Access to multiple schools adds to family appeal. However, further details about local amenities and the specifics of the garden (e.g. exact size) are lacking, which slightly limits the overall assessment. The price appears competitive within the context of the area, but without precise average price per sq ft data from directly comparable recent sales, a definitive conclusion on the value is impossible.
Therefore, we give this property 7 / 10. *Disclaimer: This is our option and does constitute a recommendation or financial advice. Do your own research. *
- Price
- 7
- Condition
- 8
- Location
- 7
- Land
- 6
- Bedrooms
- 4
- Bathrooms
- 2
- Sqft (est)
- 2,332.00
The heatmap indicates the level of crime in the area. The color of the heatmap indicates the crime severity and recency.
Metrics Year-on-Year
- Average area value
- 719,207.00 £Increased by 15.99 %
- Est sale value
- 1,644,060.00 £Increased by 12.80 %
- Average area rental value
- 2,260.00 £/moIncreased by 12.16 %
- Est letting value
- 4,664.00 £/moUnchanged by 0.00 %
- Est rental Yield
- 3.77 %Decreased by 3.33 %
- Crime Rate
- 3.00 %Unchanged by 0.00 %
Agent Activity
Citydeal Estates marked this listing as sold.
Citydeal Estates created the listing.
Nearby Schools
| Name | Type | Ofsted | Distance |
|---|---|---|---|
| Leap Service - The National Autistics Society | Miscellaneous | 0.13 KM | |
| Ark Soane Academy | Free Schools | 0.20 KM | |
| John Perryn Children'S Centre | Children's Centre Linked Site | 0.22 KM | |
| South Acton Childrens Centre | Local Authority Nursery School | Good | 0.35 KM |
| South Acton Children'S Centre | Children's Centre | 0.35 KM |
Images
Nearby Streets
| Name | Average Price | Average Sqft | Distance |
|---|---|---|---|
| Langford Close | £ 775,000 | 0 | 0.00 KM |
| Park Road North | £ 0 | 0 | 0.00 KM |
| Mill Hill Terrace | £ 0 | 0 | 0.00 KM |
| Mount Place | £ 350,000 | 0 | 0.00 KM |
| Hope Gardens | £ 0 | 0 | 0.00 KM |
Nearby Transport
| Name | NLC | TLC | Distance |
|---|---|---|---|
| South Acton | 1452 | SAT | 0.94 KM |
| Acton Central | 1404 | ACC | 1.42 KM |
| Acton Main Line | 3000 | AML | 1.56 KM |
| Gunnersbury | 5588 | GUN | 1.62 KM |
| Kew Bridge | 5593 | KWB | 2.25 KM |
Nearby Listings
| Address | Price | Type | Score | Distance |
|---|---|---|---|---|
| Mill Hill Road, Acton | £ 1,395,000 | BUY | 7 / 10 | 0.00 KM |
| Mill Hill Road, Mill Hill Conservation Area,Acton, London | £ 600,000 | BUY | 8 / 10 | 0.03 KM |
| 36 Mill Hill Road, Mill Hill Road, London | £ 580,000 | BUY | 6 / 10 | 0.05 KM |
| Langford Close, Acton | £ 735,000 | BUY | 7 / 10 | 0.08 KM |
| Mill Hill Road, Acton, London, W3 | £ 450,000 | BUY | Unknown | 0.11 KM |
Nearby Properties
| Address | Price | Distance |
|---|---|---|
| 35 Mill Hill Road | £ 159,950 | 0.04 KM |
| 19 Mill Hill Road | £ 310,000 | 0.04 KM |
| 27a Mill Hill Road | £ 435,000 | 0.04 KM |
| 35a Mill Hill Road | £ 415,000 | 0.04 KM |
| 19a Mill Hill Road | £ 435,000 | 0.04 KM |