Blackwood Drive, Manchester
HU

Blackwood Drive, Manchester

By Hunters

£ 260,000

Reviews

3 out of 5 stars

Hunters says ..

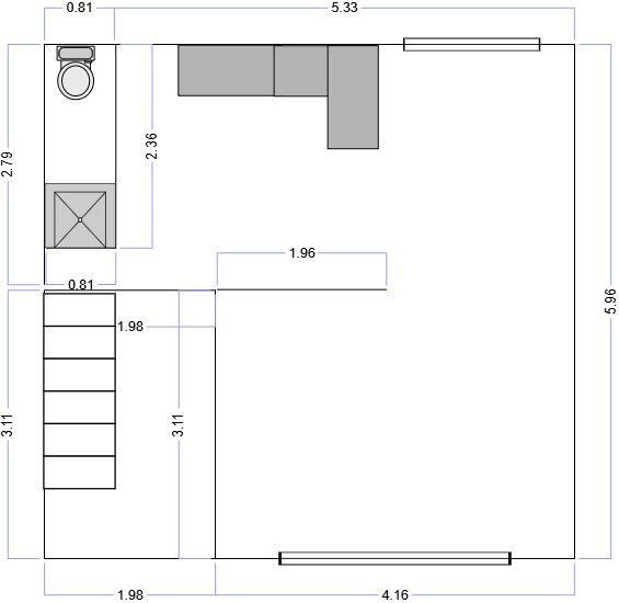
Welcome to this charming end-terrace house located on Blackwood Drive in Manchester. This delightful property boasts a generous living space of 904 square feet, making it an ideal home for families or professionals seeking comfort and convenience. As you enter, you will find two invitin...

Property Oracle says ..

This end-of-terrace property in Brooklands, Manchester, offers three bedrooms and two bathrooms. The interior has been modernised, featuring new flooring, paint, and updated kitchen and bathroom. While the interior is in good condition, the exterior and garden would benefit from some maintenance. The property is situated in a convenient location, with schools and transportation links nearby. The asking price of £260,000 is reasonable considering the recent updates and the local market. The property is located close to Sandilands Primary School. Train stations are within a few miles, offering convenient access to transportation. The property includes a garden, though it requires some attention. Overall, this property presents a good opportunity for buyers looking for a modernised home in a well-connected location, with some scope for further improvement.

Therefore, we give this property 6 / 10. *Disclaimer: This is our option and does constitute a recommendation or financial advice. Do your own research. *

Price
7
Condition
7
Location
7
Land
6
Bedrooms
3
Bathrooms
2
Sqft (est)
418.62

The heatmap indicates the level of crime in the area. The color of the heatmap indicates the crime severity and recency.

Metrics Year-on-Year

Average area value
380,332.00 £
Increased by 1.15 %
from 376,011.00 £
Est sale value
228,147.90 £
Increased by 46.11 %
from 156,145.26 £
Average area rental value
1,544.00 £/mo
Unchanged by 0.00 %
from 1,544.00 £/mo
Est letting value
837.24 £/mo
Increased by 100.00 %
from 418.62 £/mo
Est rental Yield
4.87 %
Decreased by 1.22 %
from 4.93 %
Crime Rate
121.00 %
Unchanged by 0.00 %
from 121.00 %

Agent Activity

  • Hunters created the listing.

Nearby Schools

NameTypeOfstedDistance
Sandilands Primary SchoolCommunity SchoolGood0.32 KM
Brooklands Sure Start Children'S Centre, SandilandsChildren's Centre0.43 KM
Sale High SchoolFoundation SchoolGood0.97 KM
Manchester Health AcademyAcademy Sponsor Led1.21 KM
Sale Moor Children'S CentreChildren's Centre Linked Site1.48 KM

Images

a85ad9b0-front 20of 20house.JPG a04602f1-IMG_3044.JPG e732be64-IMG_3047.JPG 3c9b636b-IMG_3045.JPG 5f0830b1-IMG_2995.JPG 1065a1e5-IMG_3000.JPG f7b5b3d6-IMG_2996.JPG 2c6c8156-IMG_3002.JPG db7f85da-IMG_3053.JPG 24081224-IMG_3051.JPG 4dd69596-IMG_3052.JPG ddc7de87-IMG_3022.JPG 88e40a3f-IMG_3048.JPG b255ac61-IMG_3049.JPG 88e40a3f-IMG_3048.JPG 8f8a8b81-IMG_3055.JPG 3dc4cec6-IMG_3032.JPG d435a768-IMG_3066.JPG

Nearby Streets

NameAverage PriceAverage SqftDistance
Honeysuckle Close £ 230,00000.00 KM
Cotteril Close £ 000.00 KM
Chorley Road £ 000.00 KM
Colchester Close £ 325,00000.00 KM
Chiltern Gardens £ 000.00 KM

Nearby Transport

NameNLCTLCDistance
Navigation Road2940NVR4.23 KM
Altrincham2806ALT4.88 KM
Hale (Manchester)2845HAL5.41 KM
Trafford Park2969TRA5.48 KM
Humphrey Park2937HUP5.67 KM

Nearby Listings

AddressPriceTypeScoreDistance
Blackwood Drive, Manchester £ 260,000BUY6 / 100.00 KM
Carrswood Road, Manchester £ 180,000BUY6 / 100.01 KM
Carrswood Road £ 190,000BUY6 / 100.02 KM
Carrswood Road, Manchester, M23 £ 190,000BUY6 / 100.03 KM
Yattendon Avenue, Manchester, Greater Manchester, M23 £ 275,000BUY7 / 100.04 KM

Nearby Properties

AddressPriceDistance
3 Blackwood Drive £ 159,9500.03 KM
8 Blackwood Drive £ 72,5000.03 KM
9 Blackwood Drive £ 135,2000.03 KM
18 Blackwood Drive £ 149,9500.03 KM
6 Holybourne Walk £ 130,0000.07 KM