Upper Morannedd, Criccieth, Gwynedd, LL52
By Beresford Adams
£ 180,000
Reviews
2 out of 5 stars
Beresford Adams says ..
* For Sale by Modern Method of Auction * Subject to Reserve Price * Buyers Fees Apply * The Modern Method of Auction This is an opportunity of a lifetime to build your dream home overlooking the coastal town of Criccieth in an elevated position allowing you to make...
Property Oracle says ..
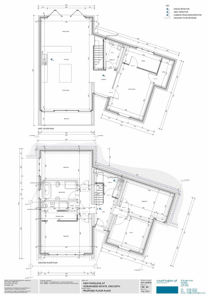
This listing is for a building plot located in Upper Morannedd, Criccieth, Gwynedd, offering stunning coastal views. The images show a sloping plot of land that has undergone some site preparation but still requires significant work before building commences. The plot is not fully landscaped; it is largely composed of earth and rock. There is potential for additional development and improvement. The accompanying architectural plans propose a modern, two-story home design that takes advantage of the panoramic views. Given that the plans are illustrations, and the images of the site show limited landscaping, the actual end product may not perfectly replicate the architectural illustrations.
The price point is relatively affordable for the location, considering the cost of new construction in desirable areas near the coast, but this will undoubtedly increase the project’s overall cost. Buyers should independently verify all details and factor in potential expenses for building the property on this plot, as well as considering planning permission and associated costs. The lack of information concerning the plot size also leaves a significant degree of uncertainty regarding the ultimate value. While the location and views are highly attractive, it’s crucial for potential buyers to meticulously assess the site conditions, obtain necessary permissions, and carefully budget for all aspects of the building project. The proximity to Criccieth offers access to local amenities, rail links, and several schools; however, the precise distances and the schools’ quality should be independently verified.
Therefore, we give this property 4 / 10. *Disclaimer: This is our option and does constitute a recommendation or financial advice. Do your own research. *
- Price
- 6
- Condition
- 1
- Location
- 7
- Land
- 3
- Bedrooms
- 0
- Bathrooms
- 0
- Sqft (est)
- 1,905.21
The heatmap indicates the level of crime in the area. The color of the heatmap indicates the crime severity and recency.
Metrics Year-on-Year
- Average area value
- 250,000.00 £Decreased by 19.52 %
- Est sale value
- 411,525.36 £Decreased by 33.74 %
- Average area rental value
- 898.00 £/moDecreased by 3.65 %
- Est letting value
- 0.00 £/mo
- Est rental Yield
- 4.31 %Increased by 19.72 %
- Crime Rate
- 3.00 %Unchanged by 0.00 %
Agent Activity
Beresford Adams created the listing.
Nearby Schools
| Name | Type | Ofsted | Distance |
|---|---|---|---|
| Ysgol Treferthyr | Welsh Establishment | 1.59 KM | |
| Ysgol Llanystumdwy | Welsh Establishment | 5.75 KM | |
| Ysgol Gynradd Garndolbenmaen | Welsh Establishment | 6.12 KM | |
| Ysgol Borthygest | Welsh Establishment | 8.99 KM | |
| Ysgol Eifion Wyn | Welsh Establishment | 9.35 KM |
Images
Nearby Streets
| Name | Average Price | Average Sqft | Distance |
|---|---|---|---|
| Lôn Merllyn | £ 0 | 0 | 0.00 KM |
| Maes Y Mor | £ 0 | 0 | 0.00 KM |
| High Street | £ 0 | 0 | 0.00 KM |
| Corporation Terrace | £ 0 | 0 | 0.00 KM |
| Lôn Bach | £ 195,000 | 0 | 0.00 KM |
Nearby Transport
| Name | NLC | TLC | Distance |
|---|---|---|---|
| Criccieth | 4312 | CCC | 1.93 KM |
| Porthmadog | 4313 | PTM | 9.56 KM |
Nearby Listings
| Address | Price | Type | Score | Distance |
|---|---|---|---|---|
| Upper Morannedd, Criccieth, Gwynedd, LL52 | £ 180,000 | BUY | 4 / 10 | 0.00 KM |
| Upper Morannedd, Criccieth | £ 699,000 | BUY | Unknown | 0.07 KM |
| Upper Morannedd, Criccieth, Gwynedd, LL52 | £ 575,000 | BUY | 7 / 10 | 0.10 KM |
| Upper Morannedd, Criccieth | £ 575,000 | BUY | 7 / 10 | 0.12 KM |
| Lon Merllyn, Criccieth | £ 435,000 | BUY | 6 / 10 | 0.17 KM |
Nearby Properties
| Address | Price | Distance |
|---|---|---|
| Gorse Hill | £ 575,000 | 0.00 KM |
| Ynys Hir | £ 475,000 | 0.00 KM |
| Tremywawr | £ 477,500 | 0.02 KM |
| Paradwys | £ 370,000 | 0.02 KM |
| Seibiant | £ 320,000 | 0.02 KM |