Langford Russell says ..
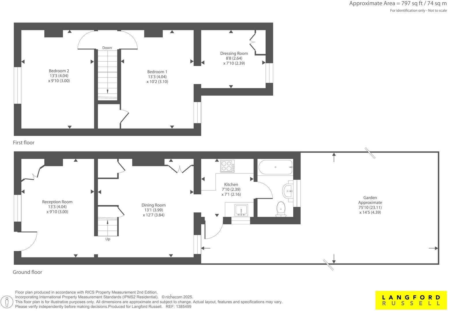
** GUIDE PRICE £350,000 - £375,000 *** Langford Russell are pleased to present this beautifully renovated two-bedroom period terraced home, ideally located on a quiet residential road in Orpington. This charming property combines character features with modern finishes and ...
Property Oracle says ..
This is a two-bedroom terraced house in Cray Valley East, Orpington. The property appears to be in good condition, with a modern interior. It benefits from a garden, although it requires some landscaping. The location is reasonably convenient, with schools and transportation links nearby. The asking price of £350,000 seems fair considering the area’s average price and the property’s condition and size.
Therefore, we give this property 6 / 10. *Disclaimer: This is our option and does constitute a recommendation or financial advice. Do your own research. *
- Price
- 7
- Condition
- 7
- Location
- 6
- Land
- 6
- Bedrooms
- 2
- Bathrooms
- 1
- Sqft (est)
- 476.30
The heatmap indicates the level of crime in the area. The color of the heatmap indicates the crime severity and recency.
Metrics Year-on-Year
- Average area value
- 426,250.00 £Increased by 1.76 %
- Est sale value
- 219,574.30 £Decreased by 1.71 %
- Average area rental value
- 1,721.00 £/moDecreased by 0.92 %
- Est letting value
- 476.30 £/moUnchanged by 0.00 %
- Est rental Yield
- 4.85 %Decreased by 2.61 %
- Crime Rate
- 9.00 %Unchanged by 0.00 %
Agent Activity
Langford Russell created the listing.
Nearby Schools
| Name | Type | Ofsted | Distance |
|---|---|---|---|
| St Paul'S Cray Church Of England Primary School | Academy Converter | 0.42 KM | |
| Riverside School | Community Special School | Outstanding | 0.88 KM |
| Manor Oak Primary School | Academy Converter | Good | 0.98 KM |
| St. Mary Cray Primary Academy | Academy Sponsor Led | Good | 1.05 KM |
| Gray'S Farm Primary Academy | Academy Sponsor Led | Good | 1.38 KM |
Images
Nearby Streets
| Name | Average Price | Average Sqft | Distance |
|---|---|---|---|
| Calvin Close | £ 0 | 0 | 0.00 KM |
| Sevenoaks Way | £ 553,750 | 0 | 0.00 KM |
| Rosecroft Close | £ 0 | 0 | 0.00 KM |
| Leigh Terrace | £ 525,000 | 0 | 0.00 KM |
| Wateringbury Close | £ 0 | 0 | 0.00 KM |
Nearby Transport
| Name | NLC | TLC | Distance |
|---|---|---|---|
| St Mary Cray | 5073 | SMY | 1.23 KM |
| Orpington | 5122 | ORP | 4.03 KM |
| Sidcup | 5125 | SID | 4.48 KM |
| Albany Park | 5132 | AYP | 4.49 KM |
| Chelsfield | 5098 | CLD | 4.52 KM |
Nearby Listings
| Address | Price | Type | Score | Distance |
|---|---|---|---|---|
| Hearns Road, Orpington | £ 350,000 | BUY | 6 / 10 | 0.00 KM |
| Hearns Road, St Pauls Cray, Kent, BR5 | £ 360,000 | BUY | 7 / 10 | 0.00 KM |
| Hearns Road, Orpington, Kent, BR5 | £ 450,000 | BUY | 7 / 10 | 0.00 KM |
| Hearns Road, Orpington, Kent, BR5 | £ 450,000 | BUY | 6 / 10 | 0.03 KM |
| William Nash Court, Brantwood Way, Kent, BR5 | £ 82,000 | BUY | 6 / 10 | 0.05 KM |
Nearby Properties
| Address | Price | Distance |
|---|---|---|
| 53 Hearns Road | £ 260,000 | 0.01 KM |
| 3a Hearns Road | £ 280,000 | 0.01 KM |
| 35 Hearns Road | £ 280,000 | 0.01 KM |
| 71 Hearns Road | £ 245,000 | 0.01 KM |
| 49 Hearns Road | £ 220,000 | 0.01 KM |