Ellison Close, Chestfield, Whitstable
CH

Ellison Close, Chestfield, Whitstable

By Christopher Hodgson

£ 399,000

Reviews

2 out of 5 stars

Christopher Hodgson says ..

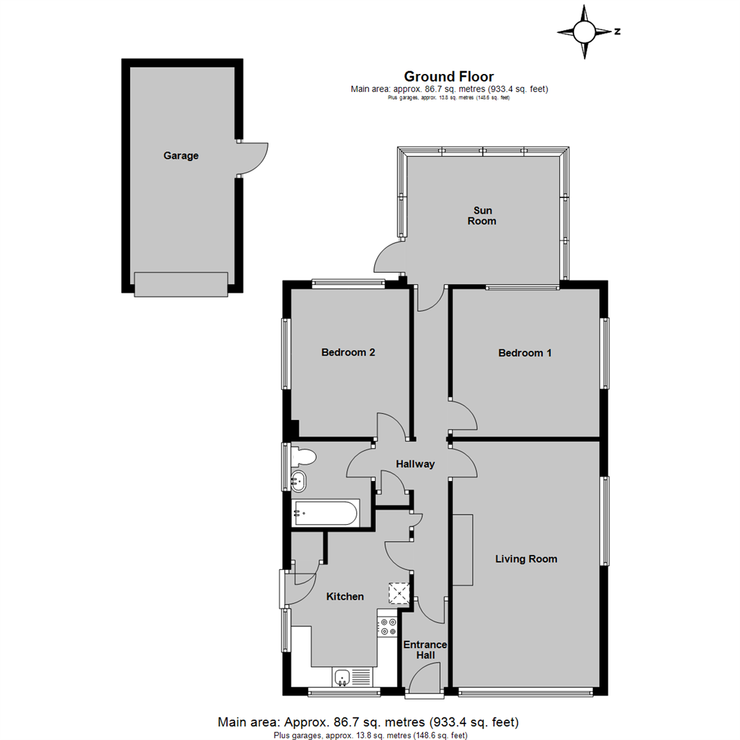
A spacious detached bungalow situated in a peaceful location within close proximity to Chestfield golf course, the historic 14th Century Chestfield Barn housing a pub and restaurant, Chestfield medical centre and Chestfield and Swalecliffe station (0.7 miles distant). The property is ideally posi...

Property Oracle says ..

This property is a 2 bedroom, 1 bathroom detached bungalow located in Chestfield, Whitstable. The property benefits from being close to Chestfield golf course, a pub and restaurant, a medical centre and a train station. While the location is convenient, the property itself appears dated and in need of modernisation. The kitchen and bathroom are particularly outdated. The garden is present but requires significant attention. The asking price should be considered in relation to the necessary renovations and the prices of comparable properties in the area. More information on the square footage of comparable properties would be needed to make a more informed judgement on the price.

Therefore, we give this property 5 / 10. *Disclaimer: This is our option and does constitute a recommendation or financial advice. Do your own research. *

Price
6
Condition
4
Location
7
Land
5
Bedrooms
2
Bathrooms
1
Sqft (est)
943.60
Lot (est)
933.40

The heatmap indicates the level of crime in the area. The color of the heatmap indicates the crime severity and recency.

Metrics Year-on-Year

Average area value
479,464.00 £
Decreased by 15.58 %
from 567,934.00 £
Est sale value
552,949.60 £
Increased by 26.02 %
from 438,774.00 £
Average area rental value
1,150.00 £/mo
Decreased by 19.24 %
from 1,424.00 £/mo
Est letting value
943.60 £/mo
Unchanged by 0.00 %
from 943.60 £/mo
Est rental Yield
2.88 %
Decreased by 4.32 %
from 3.01 %
Crime Rate
2.00 %
Unchanged by 0.00 %
from 2.00 %

Agent Activity

  • Christopher Hodgson marked this listing as sold.

  • Christopher Hodgson created the listing.

Nearby Schools

NameTypeOfstedDistance
Swalecliffe Community Primary SchoolFoundation SchoolGood0.83 KM
Swalecliffe Children'S CentreChildren's Centre Linked Site0.91 KM
The Whitstable SchoolAcademy Converter2.67 KM
St Mary'S Catholic Primary School, WhitstableAcademy ConverterGood2.73 KM
Westmeads Community Infant SchoolCommunity SchoolOutstanding3.64 KM

Images

Ellison Close, Chestfield, Whitstable Ellison Close, Chestfield, Whitstable Ellison Close, Chestfield, Whitstable Ellison Close, Chestfield, Whitstable Ellison Close, Chestfield, Whitstable Ellison Close, Chestfield, Whitstable Ellison Close, Chestfield, Whitstable Ellison Close, Chestfield, Whitstable Ellison Close, Chestfield, Whitstable Ellison Close, Chestfield, Whitstable Ellison Close, Chestfield, Whitstable

Nearby Streets

NameAverage PriceAverage SqftDistance
Barley Drive £ 000.00 KM
Nasella Gardens £ 000.00 KM
Meadow Drive £ 000.00 KM
Darnel Avenue £ 000.00 KM
Harvey Drive £ 450,00000.00 KM

Nearby Transport

NameNLCTLCDistance
Chestfield And Swalecliffe5200CSW0.85 KM
Whitstable5196WHI3.19 KM
Herne Bay5174HNB6.27 KM
Canterbury West5007CBW7.94 KM
Sturry5029STU8.92 KM

Nearby Listings

AddressPriceTypeScoreDistance
Ellison Close, Chestfield, Whitstable £ 399,000BUY5 / 100.00 KM
Laxton Way, Chestfield, Whitstable £ 485,000BUY8 / 100.08 KM
Ellison Close, Chestfield, Whitstable £ 375,000BUY6 / 100.08 KM
Ridgeway, Chestfield, Whitstable £ 695,000BUY7 / 100.11 KM
Laxton Way, Chestfield, Whitstable £ 495,000BUYUnknown0.16 KM

Nearby Properties

AddressPriceDistance
19 Laxton Way £ 500,0000.06 KM
25 Laxton Way £ 305,0000.06 KM
24 Laxton Way £ 277,5000.06 KM
17 Laxton Way £ 495,0000.06 KM
6 Laxton Way £ 242,5000.06 KM