ED
Pewterspear Green Road, Stretton, Warrington
By Edward Mellor Ltd
£ 180,000
Reviews
3 out of 5 stars
Edward Mellor Ltd says ..
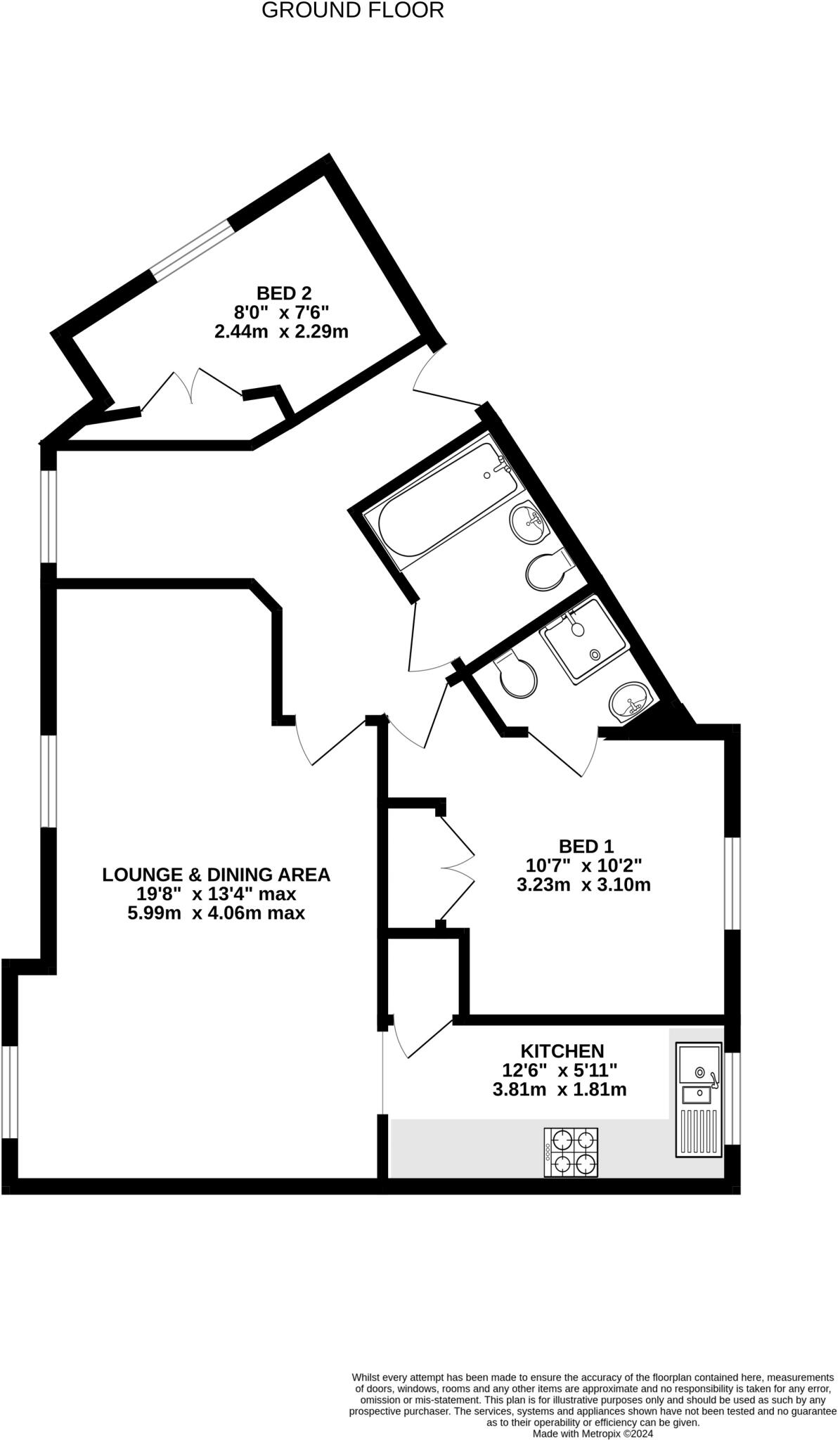
This modern purpose built apartment occupies a great ground floor location in a block of just six similar apartments in a highly popular location and offering great convenience for motorway connections and to Stockton Heath village centre. The property has been the subject of considerable impr...
Property Oracle says ..
Therefore, we give this property 6 / 10. *Disclaimer: This is our option and does constitute a recommendation or financial advice. Do your own research. *
- Price
- 8
- Condition
- 8
- Location
- 7
- Land
- 3
- Bedrooms
- 2
- Bathrooms
- 2
- Sqft (est)
- 504.03
The heatmap indicates the level of crime in the area. The color of the heatmap indicates the crime severity and recency.
Metrics Year-on-Year
- Average area value
- 375,667.00 £Decreased by 6.15 %
- Est sale value
- 188,507.22 £Increased by 15.08 %
- Average area rental value
- 1,270.00 £/moDecreased by 19.62 %
- Est letting value
- 504.03 £/moUnchanged by 0.00 %
- Est rental Yield
- 4.06 %Decreased by 14.35 %
- Crime Rate
- 51.00 %Unchanged by 0.00 %
from 400,289.00 £
from 163,809.75 £
from 1,580.00 £/mo
from 504.03 £/mo
from 4.74 %
from 51.00 %
Agent Activity
Edward Mellor Ltd created the listing.
Nearby Schools
| Name | Type | Ofsted | Distance |
|---|---|---|---|
| Stretton St Matthew'S Cofe Primary School | Voluntary Aided School | Outstanding | 0.32 KM |
| Broomfields Junior School | Academy Converter | 2.24 KM | |
| Bridgewater High School | Academy Converter | 2.35 KM | |
| St Monica'S Catholic Primary School | Voluntary Aided School | Good | 2.49 KM |
| Grappenhall Heys Community Primary School | Community School | Outstanding | 2.51 KM |
Images
Nearby Streets
| Name | Average Price | Average Sqft | Distance |
|---|---|---|---|
| Hayling Close | £ 465,000 | 0 | 0.00 KM |
| Seacroft Avenue | £ 0 | 0 | 0.00 KM |
| Fulford Close | £ 355,000 | 0 | 0.00 KM |
| Lynton Gardens | £ 525,000 | 0 | 0.00 KM |
| Baldwin Grove | £ 0 | 0 | 0.00 KM |
Nearby Transport
| Name | NLC | TLC | Distance |
|---|---|---|---|
| Warrington Central | 2390 | WAC | 6.12 KM |
| Warrington Bank Quay | 2384 | WBQ | 6.12 KM |
| Padgate | 2387 | PDG | 7.12 KM |
| Birchwood | 2304 | BWD | 9.11 KM |
| Acton Bridge (Cheshire) | 2287 | ACB | 9.32 KM |
Nearby Listings
| Address | Price | Type | Score | Distance |
|---|---|---|---|---|
| Pewterspear Green Road, Stretton, Warrington | £ 180,000 | BUY | 6 / 10 | 0.00 KM |
| Henbury Gardens, Appleton, WA4 5GH | £ 375,000 | BUY | 7 / 10 | 0.06 KM |
| Pewterspear Green Road, Appleton | £ 450,000 | BUY | Unknown | 0.09 KM |
| Pewterspear Green Road, Stretton, Warrington, Cheshire, WA4 | £ 185,000 | BUY | 6 / 10 | 0.09 KM |
| Parkstone Drive, Appleton, WA4 | £ 375,000 | BUY | 7 / 10 | 0.09 KM |
Nearby Properties
| Address | Price | Distance |
|---|---|---|
| 6 Henbury Gardens | £ 280,000 | 0.04 KM |
| 3 Henbury Gardens | £ 273,000 | 0.04 KM |
| 1 Henbury Gardens | £ 360,000 | 0.04 KM |
| 2 Henbury Gardens | £ 258,600 | 0.04 KM |
| 83 Pewterspear Green Road | £ 665,000 | 0.09 KM |