Purplebricks says ..
Welcome to this beautifully presented first-floor apartment, situated in a vibrant and welcoming community. Exclusively available to individuals aged 55 and over, this residence offers a perfect blend of comfort, convenience, and community spirit. The apartment has recently been upgraded with new...
Property Oracle says ..
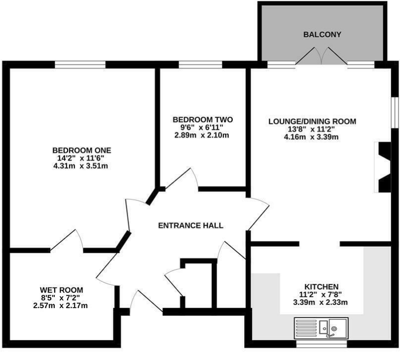
This property is a 2-bedroom, 1-bathroom apartment located in Winsford, Cheshire. Based on the provided images, the apartment appears to be in good condition, recently renovated or well-maintained. The property is part of a larger complex offering amenities such as communal gardens, a communal lounge, and potentially other facilities. The lack of plot size information suggests it is an apartment with no private garden. The list price of £65,000 is significantly lower than other nearby apartments, potentially reflecting its smaller size or the fact that it is part of a retirement complex. The proximity to schools and transport links is a positive factor for potential buyers.
Therefore, we give this property 6 / 10. *Disclaimer: This is our option and does constitute a recommendation or financial advice. Do your own research. *
- Price
- 8
- Condition
- 9
- Location
- 7
- Land
- 3
- Bedrooms
- 2
- Bathrooms
- 1
- Sqft (est)
- 512.00
The heatmap indicates the level of crime in the area. The color of the heatmap indicates the crime severity and recency.
Metrics Year-on-Year
- Average area value
- 299,167.00 £Decreased by 0.97 %
- Est sale value
- 160,256.00 £Increased by 30.42 %
- Average area rental value
- 944.00 £/moDecreased by 15.49 %
- Est letting value
- 0.00 £/mo
- Est rental Yield
- 3.79 %Decreased by 14.64 %
- Crime Rate
- 19.00 %Unchanged by 0.00 %
Agent Activity
Purplebricks created the listing.
Nearby Schools
| Name | Type | Ofsted | Distance |
|---|---|---|---|
| Oaklands School | Community Special School | Outstanding | 0.46 KM |
| Hebden Green Community School | Community Special School | Outstanding | 0.60 KM |
| The Oak View Academy | Academy Sponsor Led | Good | 0.76 KM |
| Oakview Children'S Centre (Previously Greenfields) | Children's Centre | 0.87 KM | |
| Over Hall Community School | Academy Converter | Good | 0.87 KM |
Images
Nearby Streets
| Name | Average Price | Average Sqft | Distance |
|---|---|---|---|
| Poplar Close | £ 0 | 0 | 0.00 KM |
| Montgomery Way | £ 130,000 | 0 | 0.00 KM |
| Finsbury Walk | £ 0 | 0 | 0.00 KM |
| Pinewood Road | £ 0 | 0 | 0.00 KM |
| Caernarvon Avenue | £ 0 | 0 | 0.00 KM |
Nearby Transport
| Name | NLC | TLC | Distance |
|---|---|---|---|
| Winsford | 2269 | WSF | 6.08 KM |
| Hartford (Cheshire) | 2230 | HTF | 6.41 KM |
| Greenbank | 2325 | GBK | 7.66 KM |
| Cuddington | 2305 | CUD | 8.30 KM |
Nearby Listings
| Address | Price | Type | Score | Distance |
|---|---|---|---|---|
| Hazelmere, Hambleton Way, Winsford, CW7 | £ 85,000 | BUY | 6 / 10 | 0.00 KM |
| Hambleton Way, Winsford, Cheshire, CW7 | £ 105,000 | BUY | 6 / 10 | 0.01 KM |
| Hazelmere Court, Hambleton Way | £ 105,000 | BUY | Unknown | 0.01 KM |
| Hambleton Way, Winsford | £ 60,000 | BUY | 6 / 10 | 0.02 KM |
| Hazelmere, Hambleton Way, Winsford | £ 110,000 | BUY | 6 / 10 | 0.02 KM |
Nearby Properties
| Address | Price | Distance |
|---|---|---|
| 11 Hambleton Way | £ 80,000 | 0.11 KM |
| 1 Arkwright Close | £ 69,250 | 0.36 KM |
| 7 Bannister Grove | £ 235,950 | 0.47 KM |
| 9 Bannister Grove | £ 157,000 | 0.47 KM |
| 8 Bannister Grove | £ 186,000 | 0.47 KM |