Thatcham, West Berkshire, RG18
By Chancellors
£ 395,000
Reviews
3 out of 5 stars
Chancellors says ..
Situated within 0.2 miles of Thatcham Town centre sits this extended cottage which is full of character whilst being modern, the property benefits from a good sized garden and parking to the rear. Within catchment for local schools the property comes high recommended for viewing.
Property Oracle says ..
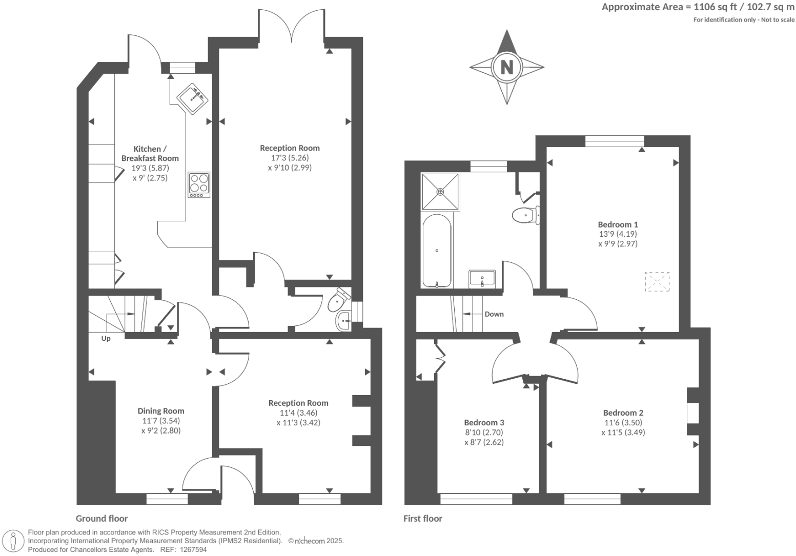
This charming 3-bedroom cottage is located in Thatcham, West Berkshire. The property benefits from a convenient location, with nearby primary and secondary schools, and Thatcham train station providing links to major cities. The cottage itself is a period property, showcasing traditional features such as exposed beams and a fireplace. While the interior has been modernised in parts, offering a contemporary kitchen and bathroom, some areas retain original features. The property also includes a garden, adding to its appeal. The asking price of £395,000 is slightly higher than the average price for the area (£344,600), but considering the property’s size (904.15 sqft), unique character, and location, it could be considered reasonable for the right buyer. The plot size of 1106 sqft is also a positive aspect.
Therefore, we give this property 7 / 10. *Disclaimer: This is our option and does constitute a recommendation or financial advice. Do your own research. *
- Price
- 7
- Condition
- 7
- Location
- 8
- Land
- 6
- Bedrooms
- 3
- Bathrooms
- 1
- Sqft (est)
- 904.15
- Lot (est)
- 1,106.00
The heatmap indicates the level of crime in the area. The color of the heatmap indicates the crime severity and recency.
Metrics Year-on-Year
- Average area value
- 525,000.00 £Increased by 70.84 %
- Est sale value
- 426,758.80 £Increased by 10.02 %
- Average area rental value
- 1,050.00 £/moDecreased by 53.02 %
- Est letting value
- 0.00 £/moDecreased by 100.00 %
- Est rental Yield
- 2.40 %Decreased by 72.51 %
- Crime Rate
- 25.00 %Unchanged by 0.00 %
Agent Activity
Chancellors marked this listing as sold.
Chancellors created the listing.
Nearby Schools
| Name | Type | Ofsted | Distance |
|---|---|---|---|
| Thatcham Park Cofe Primary | Voluntary Controlled School | Good | 0.57 KM |
| Spurcroft Primary School | Community School | Good | 0.61 KM |
| Kennet School | Academy Converter | Outstanding | 0.74 KM |
| Central Family Hub - Thatcham | Children's Centre | 0.82 KM | |
| Francis Baily Primary School | Academy Converter | 1.02 KM |
Images
Nearby Streets
| Name | Average Price | Average Sqft | Distance |
|---|---|---|---|
| Coombe Square | £ 369,950 | 0 | 0.00 KM |
| Bluecoats | £ 254,000 | 0 | 0.00 KM |
| Vincent Road | £ 0 | 0 | 0.00 KM |
| Kennet Close | £ 0 | 0 | 0.00 KM |
| Marsh Road | £ 300,000 | 0 | 0.00 KM |
Nearby Transport
| Name | NLC | TLC | Distance |
|---|---|---|---|
| Thatcham | 3152 | THA | 1.72 KM |
| Newbury Racecourse | 3071 | NRC | 5.86 KM |
| Newbury | 3074 | NBY | 7.52 KM |
| Midgham | 3159 | MDG | 8.60 KM |
Nearby Listings
| Address | Price | Type | Score | Distance |
|---|---|---|---|---|
| Thatcham, West Berkshire, RG18 | £ 395,000 | BUY | 7 / 10 | 0.00 KM |
| Thatcham, Berkshire, RG18 | £ 215,000 | BUY | Unknown | 0.03 KM |
| Thatcham, Berkshire, RG18 | £ 225,000 | BUY | 6 / 10 | 0.04 KM |
| Chapel Street, Thatcham, RG18 | £ 175,000 | BUY | 4 / 10 | 0.07 KM |
| Thatcham, Berkshire, RG18 | £ 370,000 | BUY | 7 / 10 | 0.08 KM |
Nearby Properties
| Address | Price | Distance |
|---|---|---|
| 7 Chapel Street | £ 191,500 | 0.09 KM |
| 25 Chapel Street | £ 143,500 | 0.09 KM |
| 3 Chapel Street | £ 195,000 | 0.09 KM |
| 13 Chapel Street | £ 318,000 | 0.09 KM |
| 19 Chapel Street | £ 95,000 | 0.09 KM |