Heronscroft, Covingham, Swindon, SN3
By Charles Harding Estate Agents
£ 300,000
Reviews
3 out of 5 stars
Charles Harding Estate Agents says ..
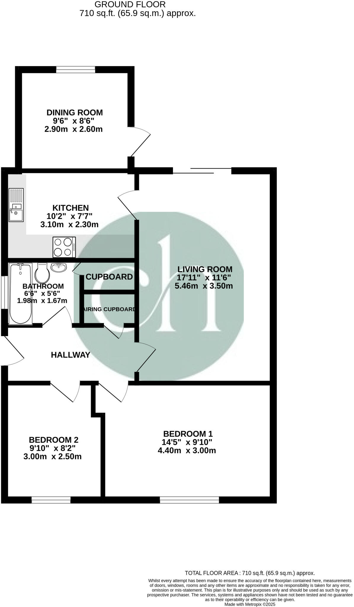
NO ONWARD CHAIN!! Charles Harding are delighted to offer for sale this well presented, and EXTENDED Two Bedroom Semi-detached Bungalow situated next to a green area in the popular Covingham area within East Swindon. The accommodation comprises; Entrance Hall, spacious Living Room, Din...
Property Oracle says ..
This two-bedroom property in Covingham, Swindon, offers a comfortable living space in a generally desirable residential area. The property’s interior appears clean and functional, though not extensively modernised. The photos reveal a relatively small but usable garden. While the exact square footage of the property is known (709.34 sqft), there is a limited dataset to evaluate the price relative to its size and comparable properties. The list price of £300,000 falls within the range of prices observed for similar properties in the area. However, the overall condition could be improved with some upgrades. Nearby amenities and schools are positive aspects. Buyers should carefully consider their needs and preferences when evaluating this property.
Therefore, we give this property 6 / 10. *Disclaimer: This is our option and does constitute a recommendation or financial advice. Do your own research. *
- Price
- 7
- Condition
- 6
- Location
- 7
- Land
- 4
- Bedrooms
- 2
- Bathrooms
- 1
- Sqft (est)
- 709.34
The heatmap indicates the level of crime in the area. The color of the heatmap indicates the crime severity and recency.
Metrics Year-on-Year
- Average area value
- 481,967.00 £Increased by 28.07 %
- Est sale value
- 283,736.00 £Decreased by 15.97 %
- Average area rental value
- 1,254.00 £/moIncreased by 10.97 %
- Est letting value
- 709.34 £/moUnchanged by 0.00 %
- Est rental Yield
- 3.12 %Decreased by 13.33 %
- Crime Rate
- 6.00 %Unchanged by 0.00 %
Agent Activity
Charles Harding Estate Agents created the listing.
Nearby Schools
| Name | Type | Ofsted | Distance |
|---|---|---|---|
| Covingham Park Primary School | Community School | Good | 0.42 KM |
| The Dorcan Academy | Academy Converter | Requires improvement | 0.91 KM |
| Colebrook Junior School | Community School | Good | 1.03 KM |
| Colebrook Infant Academy | Academy Converter | Good | 1.03 KM |
| Nythe Primary School | Academy Converter | 1.11 KM |
Images
Nearby Streets
| Name | Average Price | Average Sqft | Distance |
|---|---|---|---|
| Blackbird Close | £ 325,000 | 0 | 0.00 KM |
| Dorcan Way | £ 0 | 0 | 0.00 KM |
| Lotmead Lane | £ 0 | 0 | 0.00 KM |
| Woodstock Road | £ 380,000 | 0 | 0.00 KM |
| Elmore | £ 0 | 0 | 0.00 KM |
Nearby Transport
| Name | NLC | TLC | Distance |
|---|---|---|---|
| Swindon (Wilts) | 3333 | SWI | 6.05 KM |
Nearby Listings
| Address | Price | Type | Score | Distance |
|---|---|---|---|---|
| Heronscroft, Covingham, Swindon, SN3 | £ 300,000 | BUY | 7 / 10 | 0.00 KM |
| Heronscroft, Covingham, Swindon | £ 325,000 | BUY | 7 / 10 | 0.01 KM |
| Finchdale, Swindon, Wiltshire | £ 290,000 | BUY | 5 / 10 | 0.06 KM |
| Finchdale, Covingham, Swindon | £ 330,000 | BUY | Unknown | 0.08 KM |
| Merlin Way, Covingham, Swindon, SN3 | £ 187,500 | BUY | 7 / 10 | 0.18 KM |
Nearby Properties
| Address | Price | Distance |
|---|---|---|
| 4 Heronscroft | £ 174,500 | 0.01 KM |
| 6 Heronscroft | £ 47,250 | 0.01 KM |
| 12 Heronscroft | £ 310,000 | 0.01 KM |
| 27 Heronscroft | £ 325,000 | 0.01 KM |
| 18 Heronscroft | £ 206,500 | 0.01 KM |