Yopa says ..
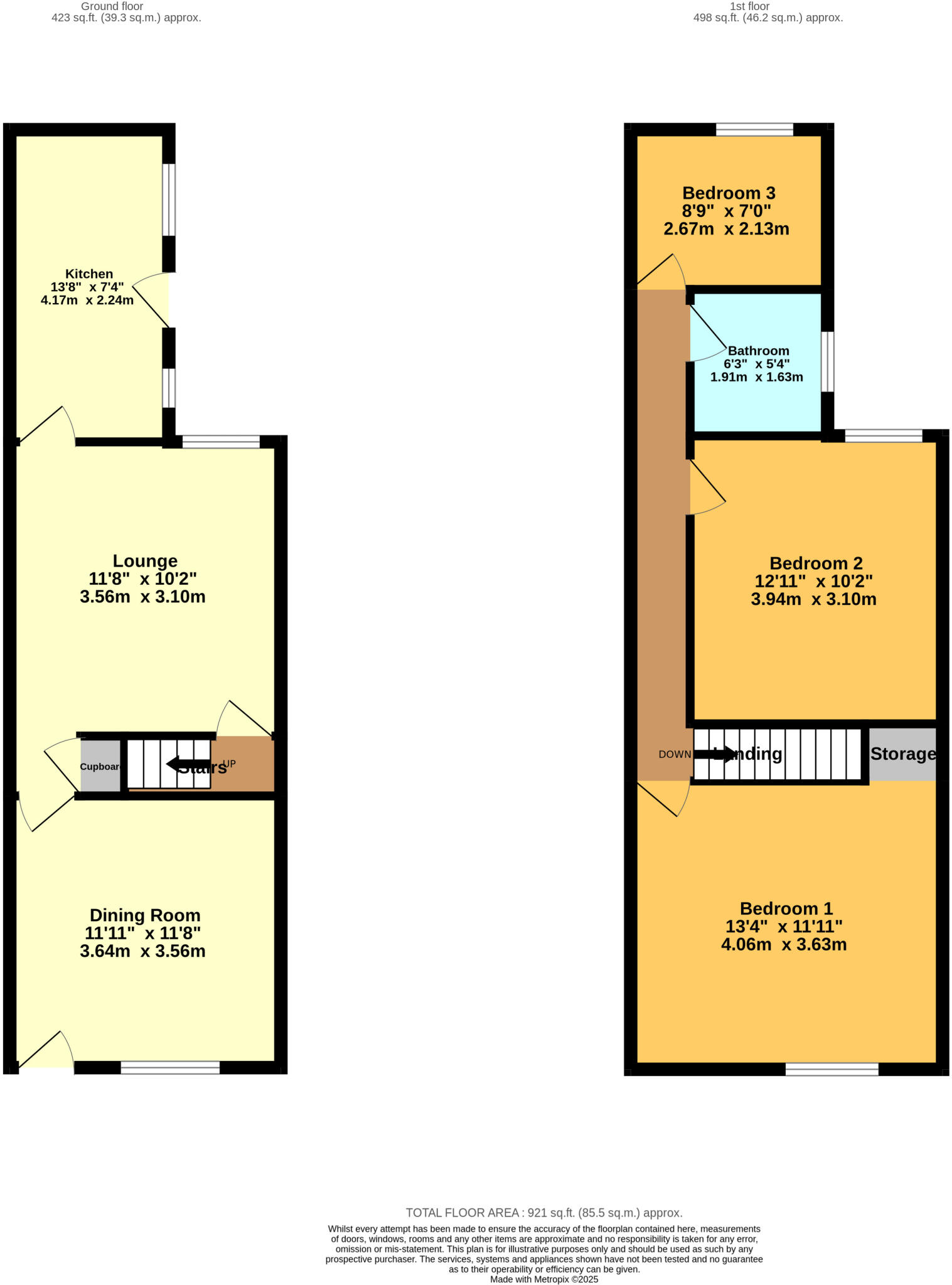
GREAT OPPORTUNITY to purchase a First Home or an Ideal Investment Property situated in the popular area of Stockingford and comprising of a Dining Room, Lounge, Kitchen to the Ground Floor & to the First Floor there are 3 Bedrooms & a Family Bathroom. To the outside there is a good size garden
Property Oracle says ..
This three-bedroom terraced house in Kingswood, Nuneaton, is listed at £170,000. The property’s interior is presented in a clean and fairly well-maintained condition, although a more modern aesthetic could enhance its appeal. The kitchen and bathroom appear functional. There is a good-sized rear garden which is an attractive feature for families. The location is convenient, with relatively easy access to local schools and transport links; though the immediate surroundings aren’t extensively detailed. The lack of property square footage information makes a definitive price-per-square-foot comparison impossible, but other similar terraced houses in the area suggest that the asking price falls within the expected range for this type of property in this locality. The availability of nearby amenities such as shops and places of significance would need to be verified to gain a complete picture of its desirability. Prospective buyers should conduct thorough due diligence, including a professional survey, before making an offer.
Therefore, we give this property 6 / 10. *Disclaimer: This is our option and does constitute a recommendation or financial advice. Do your own research. *
- Price
- 7
- Condition
- 6
- Location
- 7
- Land
- 4
- Bedrooms
- 3
- Bathrooms
- 1
The heatmap indicates the level of crime in the area. The color of the heatmap indicates the crime severity and recency.
Metrics Year-on-Year
- Average area value
- 249,134.00 £Increased by 5.51 %
- Average area rental value
- 983.00 £/moDecreased by 8.81 %
- Est rental Yield
- 4.73 %Decreased by 13.69 %
- Crime Rate
- 5.00 %Unchanged by 0.00 %
Agent Activity
Yopa created the listing.
Nearby Schools
| Name | Type | Ofsted | Distance |
|---|---|---|---|
| Values Academy | Other Independent Special School | Good | 0.36 KM |
| Stockingford Maintained Nursery School | Local Authority Nursery School | Good | 0.37 KM |
| Nuneaton Academy | Academy Sponsor Led | Requires improvement | 0.40 KM |
| Stockingford Early Years Centre Nuneaton | Children's Centre | 0.44 KM | |
| Stockingford Academy | Academy Sponsor Led | 0.52 KM |
Images
Nearby Streets
| Name | Average Price | Average Sqft | Distance |
|---|---|---|---|
| Talbot Close | £ 0 | 0 | 0.00 KM |
| Heather Close | £ 0 | 0 | 0.00 KM |
| Dale End | £ 0 | 0 | 0.00 KM |
| The Spires | £ 0 | 0 | 0.00 KM |
| Cherry Tree Avenue | £ 0 | 0 | 0.00 KM |
Nearby Transport
| Name | NLC | TLC | Distance |
|---|---|---|---|
| Bermuda Park | 6543 | BEP | 3.70 KM |
| Nuneaton | 1077 | NUN | 4.22 KM |
| Bedworth | 1165 | BEH | 5.71 KM |
| Coventry Arena | 7416 | CAA | 7.87 KM |
| Atherstone | 1074 | ATH | 8.86 KM |
Nearby Listings
| Address | Price | Type | Score | Distance |
|---|---|---|---|---|
| Westbury Road, Nuneaton, CV10 | £ 170,000 | BUY | 6 / 10 | 0.00 KM |
| Westbury Road, Nuneaton | £ 160,000 | BUY | 6 / 10 | 0.02 KM |
| Westbury Road, Nuneaton, CV10 | £ 160,000 | BUY | 6 / 10 | 0.02 KM |
| Westbury Road, Nuneaton, CV10 | £ 175,000 | BUY | 7 / 10 | 0.03 KM |
| Westbury Road, Nuneaton, CV10 | £ 158,500 | BUY | 7 / 10 | 0.04 KM |
Nearby Properties
| Address | Price | Distance |
|---|---|---|
| 118 Westbury Road | £ 143,000 | 0.00 KM |
| 71 Westbury Road | £ 150,000 | 0.00 KM |
| 104 Westbury Road | £ 102,500 | 0.00 KM |
| 100 Westbury Road | £ 157,000 | 0.00 KM |
| 93 Westbury Road | £ 74,000 | 0.00 KM |