JO
Jeddo Road, Shepherds Bush, London
By Jorgensen Turner
£ 585,000
Reviews
2 out of 5 stars
Jorgensen Turner says ..
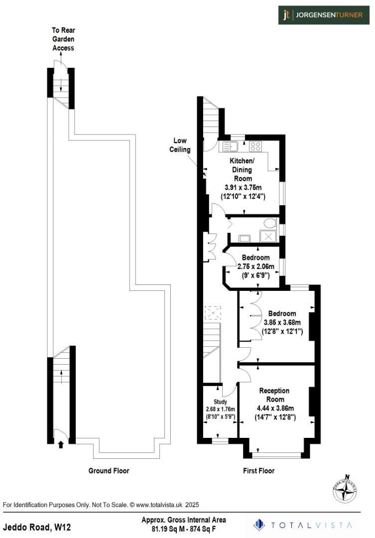
Jeddo Road, W12. A spacious three bedroom maisonette on the first floor of this attractive Edwardian building. There's a light reception room to the front, three bedrooms, a modern shower room and a spacious kitchen breakfast room to the rear. The property benefits from being offered chain free. ...
Property Oracle says ..
Therefore, we give this property 5 / 10. *Disclaimer: This is our option and does constitute a recommendation or financial advice. Do your own research. *
- Price
- 8
- Condition
- 6
- Location
- 8
- Land
- 1
- Bedrooms
- 3
- Bathrooms
- 1
- Sqft (est)
- 606.78
The heatmap indicates the level of crime in the area. The color of the heatmap indicates the crime severity and recency.
Metrics Year-on-Year
- Average area value
- 841,000.00 £Increased by 16.53 %
- Est sale value
- 511,515.54 £Increased by 6.04 %
- Average area rental value
- 2,099.00 £/moIncreased by 10.71 %
- Est letting value
- 1,213.56 £/moUnchanged by 0.00 %
- Est rental Yield
- 3.00 %Decreased by 4.76 %
- Crime Rate
- 4.00 %Unchanged by 0.00 %
from 721,728.00 £
from 482,390.10 £
from 1,896.00 £/mo
from 1,213.56 £/mo
from 3.15 %
from 4.00 %
Agent Activity
Jorgensen Turner created the listing.
Nearby Schools
| Name | Type | Ofsted | Distance |
|---|---|---|---|
| Wendell Park Primary School | Community School | Good | 0.26 KM |
| Good Shepherd Rc Primary School | Voluntary Aided School | Outstanding | 0.29 KM |
| Q+ | Special Post 16 Institution | 0.56 KM | |
| Queensmill School | Academy Special Converter | 0.56 KM | |
| North West London Independent Special School | Other Independent Special School | Outstanding | 0.69 KM |
Images
Nearby Streets
| Name | Average Price | Average Sqft | Distance |
|---|---|---|---|
| Uxbridge Road | £ 0 | 0 | 0.00 KM |
| The Vale/Uxbridge Road | £ 0 | 0 | 0.00 KM |
| Jeddo Mews | £ 0 | 0 | 0.00 KM |
| Becklow Mews | £ 0 | 0 | 0.00 KM |
| Askew Road | £ 0 | 0 | 0.00 KM |
Nearby Transport
| Name | NLC | TLC | Distance |
|---|---|---|---|
| Acton Central | 1404 | ACC | 1.83 KM |
| Acton Main Line | 3000 | AML | 2.60 KM |
| South Acton | 1452 | SAT | 2.62 KM |
| Willesden Junction | 1457 | WIJ | 3.12 KM |
| Shepherd'S Bush | 9587 | SPB | 3.25 KM |
Nearby Listings
| Address | Price | Type | Score | Distance |
|---|---|---|---|---|
| Jeddo Road, Shepherds Bush, London | £ 585,000 | BUY | 5 / 10 | 0.00 KM |
| Jeddo Road W12 | £ 795,000 | BUY | 6 / 10 | 0.01 KM |
| Jeddo Road W12 | £ 795,000 | BUY | 8 / 10 | 0.04 KM |
| Jeddo Road, London, W12 | £ 650,000 | BUY | 7 / 10 | 0.04 KM |
| Davis Road, Acton | £ 525,000 | BUY | 6 / 10 | 0.07 KM |
Nearby Properties
| Address | Price | Distance |
|---|---|---|
| 23 Jeddo Road | £ 715,000 | 0.02 KM |
| 27 Jeddo Road | £ 831,000 | 0.02 KM |
| 21 Jeddo Road | £ 700,000 | 0.02 KM |
| 29 Jeddo Road | £ 565,000 | 0.02 KM |
| 11 Jeddo Road | £ 925,000 | 0.02 KM |