Crete Hall Road, Northfleet, Gravesend
By Acorn
£ 425,000
Reviews
4 out of 5 stars
Acorn says ..
***Guide Price: £425,000 - £450,000*** Calling all First Time Buyers, Upsizers & Investors. This Beautifully Presented Three-Storey Family Home is situated within the Popular Modern Riverside Development of Cable Wharf, forming part of Ebbsfleet Garden City. This Proper...
Property Oracle says ..
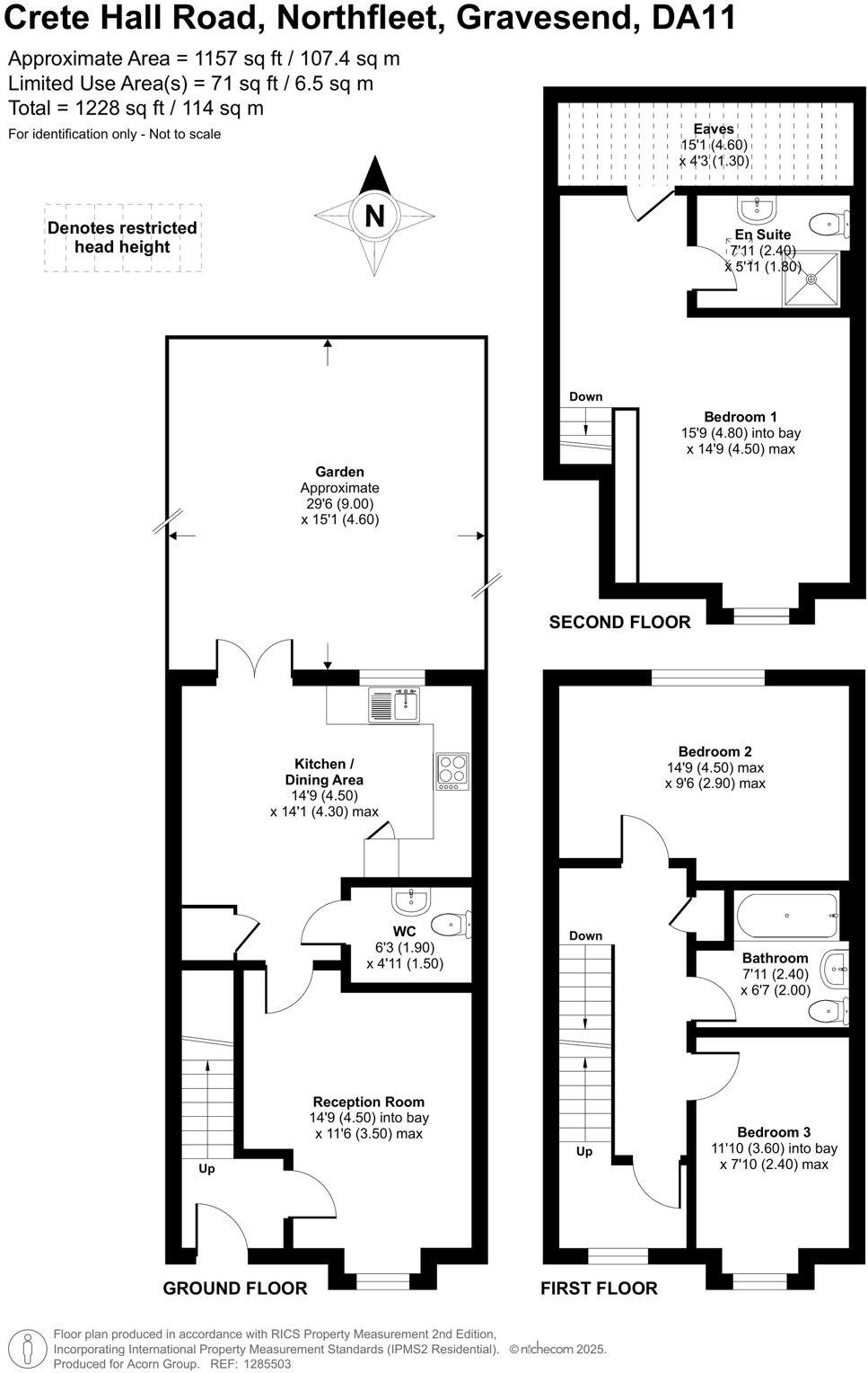
The property is a 3-bedroom, 2-bathroom terraced house located in Rosherville, Gravesham, Kent, with a list price of £425,000. The property has 1,157 sqft of living space and benefits from a garden.
The property appears to be in excellent condition, with modern fixtures and fittings throughout. The kitchen and bathrooms are contemporary and well-maintained. The images show a well-presented interior and exterior, suggesting minimal need for repairs or renovation.
The property’s location in Rosherville places it within easy reach of several primary and secondary schools, with options offering ‘Outstanding’ and ‘Good’ Ofsted ratings. Several railway stations are also within a reasonable commuting distance, providing good transport links. The presence of a garden is a positive attribute, particularly for families.
Considering the average house price in the area is £249,300 and the average price per sqft is £264, the list price of £425,000 for this 1,157 sqft property seems on the higher end of the market. However, the property’s modern condition, the inclusion of a garden, and its proximity to good schools and transport links may justify the higher price point compared to other properties in the area. Further analysis of comparable properties with similar features would provide a more definitive assessment of the price’s reasonableness.
Therefore, we give this property 8 / 10. *Disclaimer: This is our option and does constitute a recommendation or financial advice. Do your own research. *
- Price
- 7
- Condition
- 10
- Location
- 8
- Land
- 7
- Bedrooms
- 3
- Bathrooms
- 2
- Sqft (est)
- 1,157.00
The heatmap indicates the level of crime in the area. The color of the heatmap indicates the crime severity and recency.
Metrics Year-on-Year
- Average area value
- 257,500.00 £Increased by 0.03 %
- Est sale value
- 476,684.00 £Increased by 62.85 %
- Average area rental value
- 1,610.00 £/moIncreased by 45.31 %
- Est letting value
- 2,314.00 £/moIncreased by 100.00 %
- Est rental Yield
- 7.50 %Increased by 45.35 %
- Crime Rate
- 0.00 %
Agent Activity
Acorn created the listing.
Nearby Schools
| Name | Type | Ofsted | Distance |
|---|---|---|---|
| Northfleet Nursery School | Local Authority Nursery School | Outstanding | 0.21 KM |
| Copperfield Academy | Academy Sponsor Led | Good | 0.83 KM |
| Rosherville Church Of England Academy | Academy Sponsor Led | 0.87 KM | |
| St Botolph'S Church Of England Primary School | Academy Converter | Good | 0.97 KM |
| Mayfield Grammar School, Gravesend | Academy Converter | Outstanding | 1.30 KM |
Images
Nearby Streets
| Name | Average Price | Average Sqft | Distance |
|---|---|---|---|
| Crete Hall Road | £ 339,739 | 0 | 0.00 KM |
| Geneive Road | £ 436,000 | 0 | 0.00 KM |
| Henley Approach | £ 96,000 | 0 | 0.00 KM |
| Berwick Square | £ 0 | 0 | 0.00 KM |
| Mottram Road | £ 0 | 0 | 0.00 KM |
Nearby Transport
| Name | NLC | TLC | Distance |
|---|---|---|---|
| Gravesend | 5172 | GRV | 1.81 KM |
| Tilbury Town | 7462 | TIL | 2.06 KM |
| Northfleet | 5120 | NFL | 2.90 KM |
| Ebbsfleet International | 5566 | EBD | 3.28 KM |
| Swanscombe | 5156 | SWM | 4.56 KM |
Nearby Listings
| Address | Price | Type | Score | Distance |
|---|---|---|---|---|
| Crete Hall Road, Northfleet, Gravesend | £ 425,000 | BUY | 8 / 10 | 0.00 KM |
| Crete Hall Road, Northfleet, Gravesend, Kent | £ 500,000 | BUY | Unknown | 0.00 KM |
| Cable Wharf, Crete Hall Road, Gravesend, Kent | £ 82,500 | BUY | 7 / 10 | 0.01 KM |
| Cable Wharf, Crete Hall Road, Gravesend, Kent | £ 82,500 | BUY | Unknown | 0.01 KM |
| Crete Hall Road, Northfleet, Gravesend, Kent, DA11 | £ 475,000 | BUY | 7 / 10 | 0.10 KM |
Nearby Properties
| Address | Price | Distance |
|---|---|---|
| 48 Fountain Walk | £ 118,000 | 0.18 KM |
| 53 Fountain Walk | £ 108,000 | 0.18 KM |
| 37 Fountain Walk | £ 55,000 | 0.18 KM |
| 60 Fountain Walk | £ 105,000 | 0.18 KM |
| 52 Fountain Walk | £ 65,000 | 0.18 KM |