St. James's Road, Sevenoaks, Kent, TN13
By Knight Frank
£ 895,000
Reviews
4 out of 5 stars
Knight Frank says ..
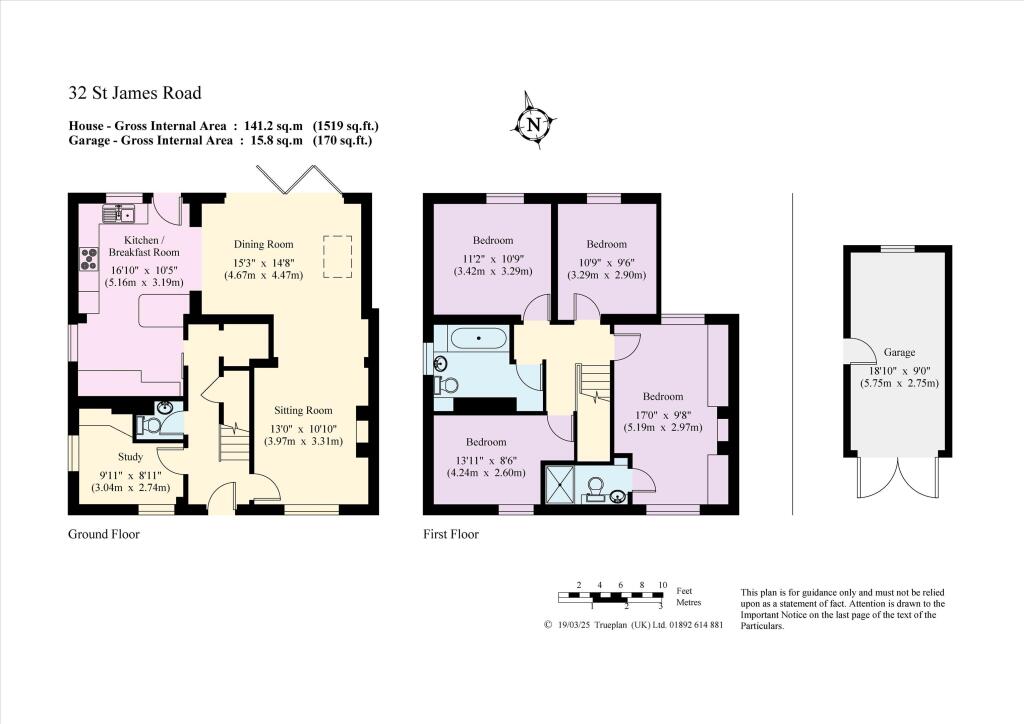
A refurbished four-bedroom 1920's house, in a sought after Sevenoaks location. This beautifully presented four-bedroom, two-bathroom semi-detached family home, dating back to the 1920s, has been thoughtfully extended and renovated to a high standard. Bright and spacious, the property offers a we...
Property Oracle says ..
This property is located in Sevenoaks, Kent, a desirable area known for its excellent schools and transport links. The house itself is a semi-detached property that has been recently renovated to a high standard, as seen in the photos. The interior is modern and bright with an open-plan kitchen/dining area that opens onto a patio and garden. There is also a good-sized garden with artificial turf, a patio, and a shed. The property has four bedrooms and two bathrooms. Given the location, condition, and features, the list price of £895,000 appears to be in line with other comparable properties in the area. While the average price per square foot in the area is £786, the lack of square footage data for this property prevents a precise price-per-square-foot comparison. However, considering the high-quality renovation and desirable location, the price seems reasonable.
Therefore, we give this property 8 / 10. *Disclaimer: This is our option and does constitute a recommendation or financial advice. Do your own research. *
- Price
- 8
- Condition
- 9
- Location
- 9
- Land
- 7
- Bedrooms
- 4
- Bathrooms
- 2
The heatmap indicates the level of crime in the area. The color of the heatmap indicates the crime severity and recency.
Metrics Year-on-Year
- Average area value
- 1,137,500.00 £Increased by 71.72 %
- Average area rental value
- 2,181.00 £/moDecreased by 6.44 %
- Est rental Yield
- 2.30 %Decreased by 45.50 %
- Crime Rate
- 13.00 %Unchanged by 0.00 %
Agent Activity
Knight Frank created the listing.
Nearby Schools
| Name | Type | Ofsted | Distance |
|---|---|---|---|
| Spring House Children'S Centre | Children's Centre | 0.36 KM | |
| Sevenoaks Primary School | Community School | Good | 0.62 KM |
| St John'S Church Of England Primary School, Sevenoaks | Voluntary Controlled School | Good | 1.00 KM |
| Walthamstow Hall | Other Independent School | 1.02 KM | |
| Knole Academy | Academy Sponsor Led | Good | 1.03 KM |
Images
Nearby Streets
| Name | Average Price | Average Sqft | Distance |
|---|---|---|---|
| Davis Close | £ 0 | 0 | 0.00 KM |
| St John's Hill | £ 250,000 | 0 | 0.00 KM |
| Seal Road | £ 0 | 0 | 0.00 KM |
| St John's Hill | £ 373,333 | 0 | 0.00 KM |
| Nursery Close | £ 0 | 0 | 0.00 KM |
Nearby Transport
| Name | NLC | TLC | Distance |
|---|---|---|---|
| Bat And Ball | 5090 | BBL | 0.35 KM |
| Sevenoaks | 5124 | SEV | 1.68 KM |
| Dunton Green | 5102 | DNG | 2.67 KM |
| Otford | 5071 | OTF | 2.96 KM |
| Shoreham (Kent) | 5074 | SEH | 5.07 KM |
Nearby Listings
| Address | Price | Type | Score | Distance |
|---|---|---|---|---|
| St. James's Road, Sevenoaks, Kent, TN13 | £ 895,000 | BUY | 8 / 10 | 0.00 KM |
| St. James's Road, Sevenoaks, Kent | £ 700,000 | BUY | Unknown | 0.07 KM |
| Bradbourne Vale Road, Sevenoaks, Kent, TN13 | £ 595,000 | BUY | 8 / 10 | 0.07 KM |
| St. Johns Road, Sevenoaks, TN13 | £ 1,150,000 | BUY | 7 / 10 | 0.07 KM |
| St. Johns Road, Sevenoaks, TN13 | £ 1,150,000 | BUY | 7 / 10 | 0.09 KM |
Nearby Properties
| Address | Price | Distance |
|---|---|---|
| 28 St James's Road | £ 481,000 | 0.05 KM |
| 34 St James's Road | £ 447,000 | 0.05 KM |
| 14 St James's Road | £ 610,000 | 0.05 KM |
| 10 St James's Road | £ 415,000 | 0.05 KM |
| 12 St James's Road | £ 880,000 | 0.05 KM |