Rathbone Road, Wavertree, Liverpool, Merseyside, L13
By Venmore
£ 100,000
Reviews
3 out of 5 stars
Venmore says ..
Modern & Spacious One-Bedroom Ground Floor Apartment – Perfect for First-Time Buyers or Investors Step into style and comfort with this newly renovated one-bedroom ground floor apartment, ideally situated in a well-connected, central location just minutes from the city centre...
Property Oracle says ..
Therefore, we give this property 6 / 10. *Disclaimer: This is our option and does constitute a recommendation or financial advice. Do your own research. *
- Price
- 7
- Condition
- 8
- Location
- 7
- Land
- 3
- Bedrooms
- 1
- Bathrooms
- 1
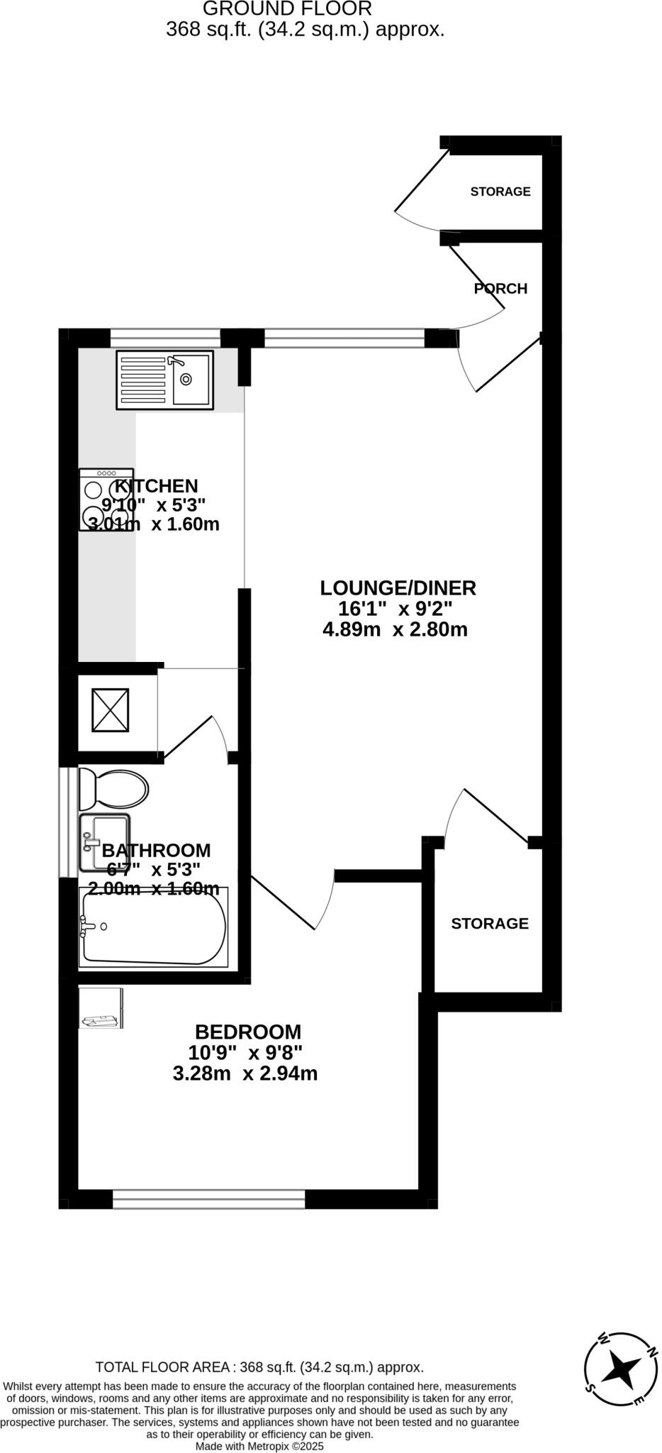
- Sqft (est)
- 368.00
The heatmap indicates the level of crime in the area. The color of the heatmap indicates the crime severity and recency.
Metrics Year-on-Year
- Average area value
- 155,000.00 £Increased by 9.92 %
- Est sale value
- 69,920.00 £Increased by 21.02 %
- Average area rental value
- 1,052.00 £/moIncreased by 50.29 %
- Est letting value
- 368.00 £/mo
- Est rental Yield
- 8.14 %Increased by 36.58 %
- Crime Rate
- 7.00 %Unchanged by 0.00 %
from 141,014.00 £
from 57,776.00 £
from 700.00 £/mo
from 0.00 £/mo
from 5.96 %
from 7.00 %
Agent Activity
Venmore created the listing.
Nearby Schools
| Name | Type | Ofsted | Distance |
|---|---|---|---|
| St Oswald'S Catholic Primary School | Voluntary Aided School | Good | 0.50 KM |
| St Anne'S (Stanley) Junior Mixed And Infant School | Voluntary Aided School | Good | 0.73 KM |
| St Cuthbert'S Catholic Primary And Nursery School | Voluntary Aided School | Good | 0.95 KM |
| Our Lady Of Good Help Catholic Primary School | Voluntary Aided School | Good | 1.00 KM |
| Broadgreen Primary | Foundation School | Good | 1.06 KM |
Images
Nearby Streets
| Name | Average Price | Average Sqft | Distance |
|---|---|---|---|
| Edge Lane | £ 0 | 0 | 0.00 KM |
| Elmway Close | £ 0 | 0 | 0.00 KM |
| Whittaker Close | £ 0 | 0 | 0.00 KM |
| Davidson Road | £ 157,500 | 0 | 0.00 KM |
| Crawford Drive | £ 250,000 | 0 | 0.00 KM |
Nearby Transport
| Name | NLC | TLC | Distance |
|---|---|---|---|
| Wavertree Technology Park | 8589 | WAV | 0.68 KM |
| Broad Green | 2240 | BGE | 2.72 KM |
| Edge Hill | 2169 | EDG | 3.23 KM |
| Mossley Hill | 2171 | MSH | 3.33 KM |
| West Allerton | 2266 | WSA | 4.58 KM |
Nearby Listings
| Address | Price | Type | Score | Distance |
|---|---|---|---|---|
| Rathbone Road, Wavertree, Liverpool, Merseyside, L13 | £ 100,000 | BUY | 6 / 10 | 0.00 KM |
| Armour Grove, Liverpool, Merseyside, L13 | £ 115,000 | BUY | 6 / 10 | 0.05 KM |
| Alexandra Road, Old Swan, Liverpool, L13 | £ 215,000 | BUY | Unknown | 0.10 KM |
| Binns Road, Liverpool, Merseyside, L13 | £ 150,000 | BUY | 6 / 10 | 0.15 KM |
| Edge Lane, Old Swan, L13 | £ 150,000 | BUY | 7 / 10 | 0.16 KM |
Nearby Properties
| Address | Price | Distance |
|---|---|---|
| 304 Rathbone Road | £ 52,000 | 0.03 KM |
| 290 Rathbone Road | £ 63,000 | 0.03 KM |
| 16 Armour Grove | £ 66,000 | 0.05 KM |
| 26 Armour Grove | £ 18,000 | 0.05 KM |
| 28 Armour Grove | £ 19,000 | 0.05 KM |