Morris and Bott says ..
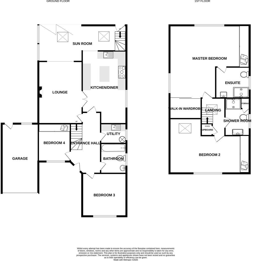
Introducing a truly unique and exceptional family home, No. 12 Kenwith Road occupies a prime position at the top of this sought-after street in Bideford. Perched above the town and nature reserve, it offers breathtaking panoramic views over the protected space. Transformed by the current owners,...
Property Oracle says ..
Therefore, we give this property 8 / 10. *Disclaimer: This is our option and does constitute a recommendation or financial advice. Do your own research. *
- Price
- 7
- Condition
- 9
- Location
- 8
- Land
- 8
- Bedrooms
- 4
- Bathrooms
- 3
- Sqft (est)
- 1,668.00
The heatmap indicates the level of crime in the area. The color of the heatmap indicates the crime severity and recency.
Metrics Year-on-Year
- Average area value
- 450,000.00 £Increased by 14.46 %
- Est sale value
- 598,812.00 £Increased by 8.79 %
- Average area rental value
- 850.00 £/moDecreased by 4.39 %
- Est letting value
- 0.00 £/mo
- Est rental Yield
- 2.27 %Decreased by 16.24 %
- Crime Rate
- 0.00 %
from 393,135.00 £
from 550,440.00 £
from 889.00 £/mo
from 0.00 £/mo
from 2.71 %
from 0.00 %
Agent Activity
Morris and Bott created the listing.
Nearby Schools
| Name | Type | Ofsted | Distance |
|---|---|---|---|
| Kingsley School | Other Independent School | 0.58 KM | |
| Bideford College | Academy Sponsor Led | Requires improvement | 1.12 KM |
| St Mary'S Church Of England Primary School | Voluntary Controlled School | Good | 1.17 KM |
| Bideford Bay Children'S Centre | Children's Centre | 1.44 KM | |
| West Croft School | Community School | Requires improvement | 1.53 KM |
Images
Nearby Streets
| Name | Average Price | Average Sqft | Distance |
|---|---|---|---|
| Northam Road | £ 795,000 | 0 | 0.00 KM |
| Middleton Road | £ 382,750 | 0 | 0.00 KM |
| Robins Hill | £ 1,200,000 | 0 | 0.00 KM |
| Radshall Park | £ 155,000 | 0 | 0.00 KM |
| North Down Road | £ 424,495 | 0 | 0.00 KM |
Nearby Listings
| Address | Price | Type | Score | Distance |
|---|---|---|---|---|
| Kenwith Road, Bideford | £ 595,000 | BUY | 8 / 10 | 0.00 KM |
| Kenwith Road, Bideford, Devon, EX39 | £ 525,000 | BUY | 7 / 10 | 0.07 KM |
| First Raleigh, Bideford | £ 600,000 | BUY | 7 / 10 | 0.09 KM |
| Bideford, Devon | £ 760,000 | BUY | 7 / 10 | 0.10 KM |
| Raleigh, Bideford | £ 725,000 | BUY | 7 / 10 | 0.12 KM |
Nearby Properties
| Address | Price | Distance |
|---|---|---|
| 12 Kenwith Road | £ 340,000 | 0.07 KM |
| 14 Kenwith Road | £ 375,000 | 0.07 KM |
| 8 Kenwith Road | £ 335,000 | 0.07 KM |
| 15 Kenwith Road | £ 312,500 | 0.07 KM |
| 11 Kenwith Road | £ 328,000 | 0.07 KM |