Brownlow Road, Horwich, Bolton, Greater Manchester, BL6
RE

Brownlow Road, Horwich, Bolton, Greater Manchester, BL6

By Regency Estates

£ 220,000

Reviews

3 out of 5 stars

Regency Estates says ..

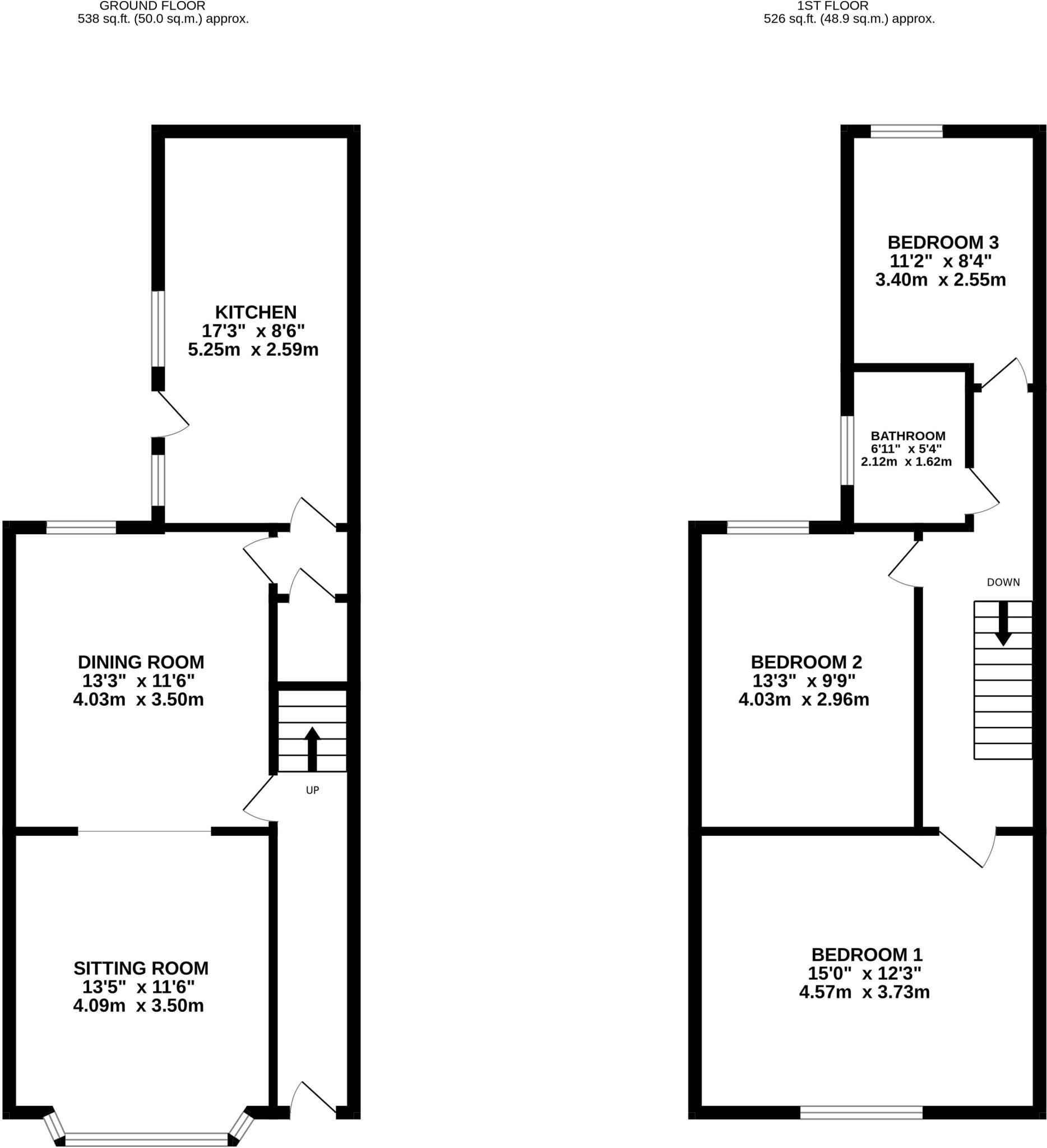
**THREE BEDROOM END TERRACED HOME WITH LOG BURNER** **Two Reception Rooms****Modern Kitchen **** Central Horwich Location** This lovely & spacious end terraced house situated on Brownlow Road in the popular Horwich location

Property Oracle says ..

This end-of-terrace property in Horwich, Bolton, presents a solid opportunity for buyers. The house features three bedrooms and one bathroom, with a total area of approximately 894 sqft. The modern kitchen is a definite highlight, while the rest of the house offers a blend of traditional features and some modern updates. While generally in good order, some areas could benefit from cosmetic improvements. The outdoor space is limited to a paved area, suitable for seating and storage. The property’s location provides convenient access to local amenities, schools, and transportation links, making it an attractive option for families and commuters. The asking price of £220,000 appears competitive, considering the property’s size, location, and the potential for further enhancements.

Therefore, we give this property 6 / 10. *Disclaimer: This is our option and does constitute a recommendation or financial advice. Do your own research. *

Price
7
Condition
6
Location
7
Land
5
Bedrooms
3
Bathrooms
1
Sqft (est)
893.99

The heatmap indicates the level of crime in the area. The color of the heatmap indicates the crime severity and recency.

Metrics Year-on-Year

Average area value
347,530.00 £
Increased by 38.09 %
from 251,671.00 £
Est sale value
459,510.86 £
Increased by 111.52 %
from 217,239.57 £
Average area rental value
1,079.00 £/mo
Decreased by 12.21 %
from 1,229.00 £/mo
Est letting value
893.99 £/mo
Unchanged by 0.00 %
from 893.99 £/mo
Est rental Yield
3.73 %
Decreased by 36.35 %
from 5.86 %
Crime Rate
0.00 %
from 0.00 %

Agent Activity

  • Regency Estates created the listing.

Nearby Schools

NameTypeOfstedDistance
Beacon Primary SchoolAcademy Sponsor Led0.47 KM
Horwich Start Well Link SiteChildren's Centre Linked Site0.49 KM
Horwich Parish Cofe Primary SchoolVoluntary Aided SchoolGood0.63 KM
Lever Park SchoolAcademy Special Sponsor LedGood0.92 KM
Rivington And Blackrod High SchoolAcademy ConverterRequires improvement1.09 KM

Images

Picture No. 63 Picture No. 61 Picture No. 32 Picture No. 34 Picture No. 47 Picture No. 46 Picture No. 38 Picture No. 36 Picture No. 40 Picture No. 42 Picture No. 44 Picture No. 43 Picture No. 30 Picture No. 31 Picture No. 28 Picture No. 26 Picture No. 21 Picture No. 24 Picture No. 14 Picture No. 19 Picture No. 15 Picture No. 20 Picture No. 12 Picture No. 09 Picture No. 07 Picture No. 01 Picture No. 54 Picture No. 56 Picture No. 59 Picture No. 64 Picture No. 29 Picture No. 13 Picture No. 05 Picture No. 49 Picture No. 51 Picture No. 52 Picture No. 62

Nearby Streets

NameAverage PriceAverage SqftDistance
Back St Annes Road £ 000.00 KM
Gorton Fold £ 000.00 KM
Slater Avenue £ 255,00000.00 KM
Bridge Street £ 275,00000.00 KM
Back Wright Street £ 95,00000.00 KM

Nearby Transport

NameNLCTLCDistance
Horwich Parkway8720HWI2.67 KM
Blackrod2732BLK2.95 KM
Westhoughton2619WHG5.61 KM
Lostock2598LOT6.43 KM
Adlington (Lancashire)2641ADL6.58 KM

Nearby Listings

AddressPriceTypeScoreDistance
Brownlow Road, Horwich, Bolton, Greater Manchester, BL6 £ 220,000BUY6 / 100.00 KM
Pioneer Street, Horwich, Bolton, BL6 £ 152,500BUY6 / 100.08 KM
Beaumont Avenue, Horwich, Bolton, BL6 £ 199,995BUY5 / 100.09 KM
Mort Street, Horwich £ 160,000BUY6 / 100.10 KM
Pioneer Street, Horwich, Bolton £ 125,000BUY5 / 100.11 KM

Nearby Properties

AddressPriceDistance
1 Store Street £ 155,0000.06 KM
93 Brownlow Road £ 169,0000.06 KM
77 Brownlow Road £ 105,0000.06 KM
80 Brownlow Road £ 114,0000.06 KM
82 Brownlow Road £ 100,0000.06 KM