Bowmans Road, Dartford, kent, DA1
By Alexander Charles & Browne
£ 500,000
Reviews
3 out of 5 stars
Alexander Charles & Browne says ..
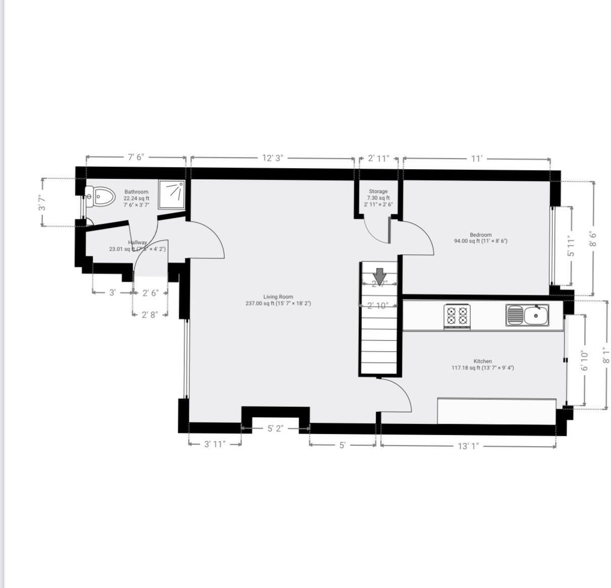
Nestled in the highly sought-after area of West Dartford, this exquisite four-bedroom semi-detached house at DA1 3QP offers the perfect family living experience. With its prime location close to reputable grammar schools and a wealth of local amenities, this property presents an incredible opp...
Property Oracle says ..
This four-bedroom semi-detached house in Dartford, Kent, is presented as a family home in a convenient location. The property’s proximity to Crayford station offers good transport links. Nearby schools, including Wentworth Primary School (Ofsted rating: Good), further add to its family-friendly appeal. The house itself appears to be reasonably well-maintained and has undergone some renovations, most notably in the kitchen and bathroom areas. The size of the garden is modest. The lack of plot size information makes it hard to comment on the value of outside space and the amount of land with the property. While the property seems to be suitable for families, a potential buyer should undertake their own inspection to gauge the condition and factor in any future renovation/upkeep costs. The pricing reflects the current market conditions in the area, though detailed analysis of comparable properties with square footage data is required to definitively comment on the value for money.
Therefore, we give this property 6 / 10. *Disclaimer: This is our option and does constitute a recommendation or financial advice. Do your own research. *
- Price
- 7
- Condition
- 6
- Location
- 7
- Land
- 4
- Bedrooms
- 4
- Bathrooms
- 2
- Sqft (est)
- 367.42
The heatmap indicates the level of crime in the area. The color of the heatmap indicates the crime severity and recency.
Metrics Year-on-Year
- Average area value
- 358,479.00 £Decreased by 2.93 %
- Est sale value
- 155,051.24 £Increased by 20.57 %
- Average area rental value
- 1,595.00 £/moIncreased by 2.84 %
- Est letting value
- 367.42 £/moUnchanged by 0.00 %
- Est rental Yield
- 5.34 %Increased by 5.95 %
- Crime Rate
- 4.00 %Unchanged by 0.00 %
Agent Activity
Alexander Charles & Browne created the listing.
Nearby Schools
| Name | Type | Ofsted | Distance |
|---|---|---|---|
| Wentworth Primary School | Academy Converter | Good | 0.76 KM |
| Crayford | Children's Centre Linked Site | 1.35 KM | |
| Haberdashers' Aske'S Crayford Academy | Academy Sponsor Led | Requires improvement | 1.35 KM |
| St Paulinus Church Of England Primary School | Academy Converter | Good | 1.39 KM |
| Maypole Children'S Centre | Children's Centre Linked Site | 1.52 KM |
Images
Nearby Streets
| Name | Average Price | Average Sqft | Distance |
|---|---|---|---|
| Chastilian Road | £ 0 | 0 | 0.00 KM |
| Alfriston Close | £ 0 | 0 | 0.00 KM |
| Lakedale Court | £ 0 | 0 | 0.00 KM |
| Laurel Way | £ 0 | 0 | 0.00 KM |
| Chapel Walk | £ 580,000 | 0 | 0.00 KM |
Nearby Transport
| Name | NLC | TLC | Distance |
|---|---|---|---|
| Crayford | 5100 | CRY | 0.60 KM |
| Slade Green | 5154 | SGR | 2.93 KM |
| Barnehurst | 5089 | BNH | 3.38 KM |
| Bexley | 5093 | BXY | 3.67 KM |
| Dartford | 5101 | DFD | 4.26 KM |
Nearby Listings
| Address | Price | Type | Score | Distance |
|---|---|---|---|---|
| Bowmans Road, Dartford, kent, DA1 | £ 500,000 | BUY | 6 / 10 | 0.00 KM |
| Bowmans Road, West Dartford, Kent, DA1 | £ 450,000 | BUY | 7 / 10 | 0.05 KM |
| Station Road, Crayford, Dartford | £ 280,000 | BUY | 6 / 10 | 0.11 KM |
| Bowmans Road, Dartford, DA1 3QP | £ 400,000 | BUY | Unknown | 0.21 KM |
| Clive Avenue, Crayford, Dartford, Kent | £ 475,000 | BUY | 7 / 10 | 0.24 KM |
Nearby Properties
| Address | Price | Distance |
|---|---|---|
| 203 Station Road | £ 229,995 | 0.06 KM |
| 201 Station Road | £ 103,000 | 0.06 KM |
| 197 Station Road | £ 380,000 | 0.06 KM |
| 199 Station Road | £ 400,000 | 0.06 KM |
| 195 Station Road | £ 320,000 | 0.06 KM |