Northfields says ..
Portico is delighted to present this charming garden maisonette, ideally located close to the vibrant amenities of Askew Road. Offered chain-free and with a long lease, this property perfectly blends period character with modern living. Boasting an abundance of natural light and a welc...
Property Oracle says ..
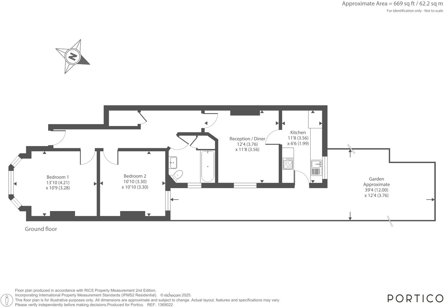
This is a 2-bedroom maisonette located on Valetta Road, in the Southfield area of Ealing, London. The property is listed for £475,000 by Northfields. It offers 967.60 sqft of living space and includes a garden. The location is good, with nearby schools and transportation links. However, the property appears to be in need of renovation, which is reflected in the price. The maisonette presents a good opportunity for buyers looking to customize and add value through refurbishment.
Therefore, we give this property 6 / 10. *Disclaimer: This is our option and does constitute a recommendation or financial advice. Do your own research. *
- Price
- 7
- Condition
- 5
- Location
- 7
- Land
- 6
- Bedrooms
- 2
- Bathrooms
- 1
- Sqft (est)
- 967.60
The heatmap indicates the level of crime in the area. The color of the heatmap indicates the crime severity and recency.
Metrics Year-on-Year
- Average area value
- 1,041,354.00 £Increased by 4.07 %
- Est sale value
- 874,710.40 £Decreased by 9.51 %
- Average area rental value
- 2,091.00 £/moIncreased by 6.25 %
- Est letting value
- 967.60 £/moUnchanged by 0.00 %
- Est rental Yield
- 2.41 %Increased by 2.12 %
- Crime Rate
- 7.00 %Unchanged by 0.00 %
Agent Activity
Northfields created the listing.
Nearby Schools
| Name | Type | Ofsted | Distance |
|---|---|---|---|
| Acton Park Children'S Centre | Children's Centre Linked Site | 0.48 KM | |
| Southfield Primary School | Community School | Good | 0.49 KM |
| Wendell Park Primary School | Community School | Good | 0.59 KM |
| East Acton Primary School | Community School | Good | 0.78 KM |
| King Fahad Academy | Other Independent School | 0.86 KM |
Images
Nearby Streets
| Name | Average Price | Average Sqft | Distance |
|---|---|---|---|
| Larch Avenue | £ 0 | 0 | 0.00 KM |
| Jeddo Mews | £ 0 | 0 | 0.00 KM |
| Queen Anne's Grove | £ 599,500 | 0 | 0.00 KM |
| Vale Grove | £ 425,000 | 0 | 0.00 KM |
| St. Albans Avenue | £ 1,166,837 | 0 | 0.00 KM |
Nearby Transport
| Name | NLC | TLC | Distance |
|---|---|---|---|
| Acton Central | 1404 | ACC | 1.07 KM |
| South Acton | 1452 | SAT | 1.86 KM |
| Acton Main Line | 3000 | AML | 1.97 KM |
| Gunnersbury | 5588 | GUN | 2.75 KM |
| Chiswick | 5583 | CHK | 3.03 KM |
Nearby Listings
| Address | Price | Type | Score | Distance |
|---|---|---|---|---|
| Valetta Road, London | £ 475,000 | BUY | 6 / 10 | 0.00 KM |
| Valetta Road, London | £ 500,000 | BUY | 6 / 10 | 0.00 KM |
| Valetta Road, London, W3 | £ 550,000 | BUY | 7 / 10 | 0.00 KM |
| Valetta Road, London | £ 475,000 | BUY | 6 / 10 | 0.04 KM |
| Multi Way, Acton, London, W3 | £ 275,000 | BUY | 6 / 10 | 0.07 KM |
Nearby Properties
| Address | Price | Distance |
|---|---|---|
| 137a Valetta Road | £ 725,000 | 0.01 KM |
| 135 Valetta Road | £ 427,500 | 0.01 KM |
| 133 Valetta Road | £ 500,000 | 0.01 KM |
| 159a Valetta Road | £ 575,000 | 0.01 KM |
| 151a Valetta Road | £ 335,000 | 0.01 KM |