North Lodge Avenue, Harrogate, North Yorkshire
By Auction House
£ 160,000
Reviews
2 out of 5 stars
Auction House says ..
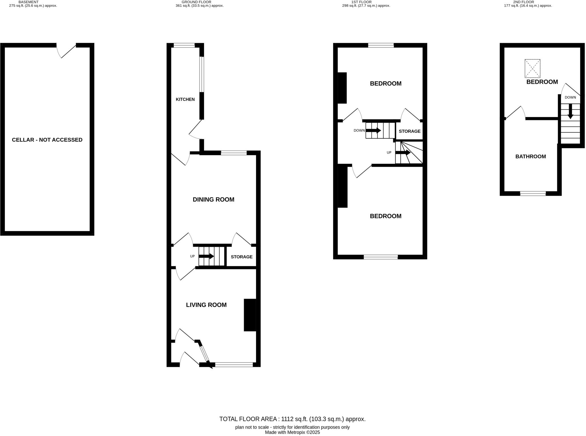
This vacant three bedroom, terraced house is to be sold via traditional auction on the 22nd October 2025. Internally, it requires refurbishment throughout, so it would be ideal for an investor. Externally, it benefits from a rear garden and on-street parking. It is located within Harr...
Property Oracle says ..
The property is a terraced house located in Harrogate, North Yorkshire. It has three bedrooms and one bathroom. The property requires full renovation. The property has a garden, which is a desirable feature. The property is listed at £160,000, which is significantly below the average price for the area. The average price per square foot in Harrogate is £384, while this property is listed at approximately £69 per square foot.
Therefore, we give this property 5 / 10. *Disclaimer: This is our option and does constitute a recommendation or financial advice. Do your own research. *
- Price
- 8
- Condition
- 3
- Location
- 7
- Land
- 5
- Bedrooms
- 3
- Bathrooms
- 1
- Sqft (est)
- 2,308.00
The heatmap indicates the level of crime in the area. The color of the heatmap indicates the crime severity and recency.
Metrics Year-on-Year
- Average area value
- 292,081.00 £Increased by 20.48 %
- Est sale value
- 886,272.00 £Increased by 56.10 %
- Average area rental value
- 1,123.00 £/moDecreased by 11.92 %
- Est letting value
- 2,308.00 £/moUnchanged by 0.00 %
- Est rental Yield
- 4.61 %Decreased by 26.94 %
- Crime Rate
- 2.00 %Unchanged by 0.00 %
Agent Activity
Auction House created the listing.
Nearby Schools
| Name | Type | Ofsted | Distance |
|---|---|---|---|
| New Park Primary Academy | Academy Converter | Good | 0.20 KM |
| St Joseph'S Catholic Primary School, Harrogate, A Voluntary Academy | Academy Converter | Good | 0.46 KM |
| Coppice Valley Primary School | Academy Converter | 0.64 KM | |
| Harrogate, Bilton Grange Primary School | Academy Converter | Good | 1.04 KM |
| Harrogate Ladies' College | Other Independent School | 1.31 KM |
Images
Nearby Streets
| Name | Average Price | Average Sqft | Distance |
|---|---|---|---|
| Archie Street Rear | £ 0 | 0 | 0.00 KM |
| Eastfield Terrace | £ 0 | 0 | 0.00 KM |
| Mill Gate | £ 375,000 | 0 | 0.00 KM |
| Connaught Court | £ 865,000 | 0 | 0.00 KM |
| Swan Road | £ 0 | 0 | 0.00 KM |
Nearby Transport
| Name | NLC | TLC | Distance |
|---|---|---|---|
| Harrogate | 8213 | HGT | 1.96 KM |
| Hornbeam Park | 8212 | HBP | 3.86 KM |
| Starbeck | 8221 | SBE | 5.25 KM |
| Pannal | 8479 | PNL | 5.71 KM |
| Knaresborough | 8214 | KNA | 8.56 KM |
Nearby Listings
| Address | Price | Type | Score | Distance |
|---|---|---|---|---|
| North Lodge Avenue, Harrogate, North Yorkshire | £ 160,000 | BUY | 5 / 10 | 0.00 KM |
| North Lodge Avenue, Harrogate | £ 345,000 | BUY | Unknown | 0.01 KM |
| North Lodge Avenue, Harrogate, HG1 | £ 280,000 | BUY | Unknown | 0.05 KM |
| Park House Green, Harrogate, North Yorkshire | £ 290,000 | BUY | Unknown | 0.10 KM |
| Skipton Road, Harrogate | £ 165,000 | BUY | 7 / 10 | 0.12 KM |
Nearby Properties
| Address | Price | Distance |
|---|---|---|
| 47 North Lodge Avenue | £ 230,000 | 0.01 KM |
| 17 North Lodge Avenue | £ 144,000 | 0.01 KM |
| 23 North Lodge Avenue | £ 245,000 | 0.01 KM |
| 27 North Lodge Avenue | £ 300,000 | 0.01 KM |
| 49 North Lodge Avenue | £ 210,000 | 0.01 KM |