haart says ..
An attractive and well proportioned mid-terrace family home located within easy reach of Croydon Town Centre with good access to schools, amenities and transport links
Property Oracle says ..
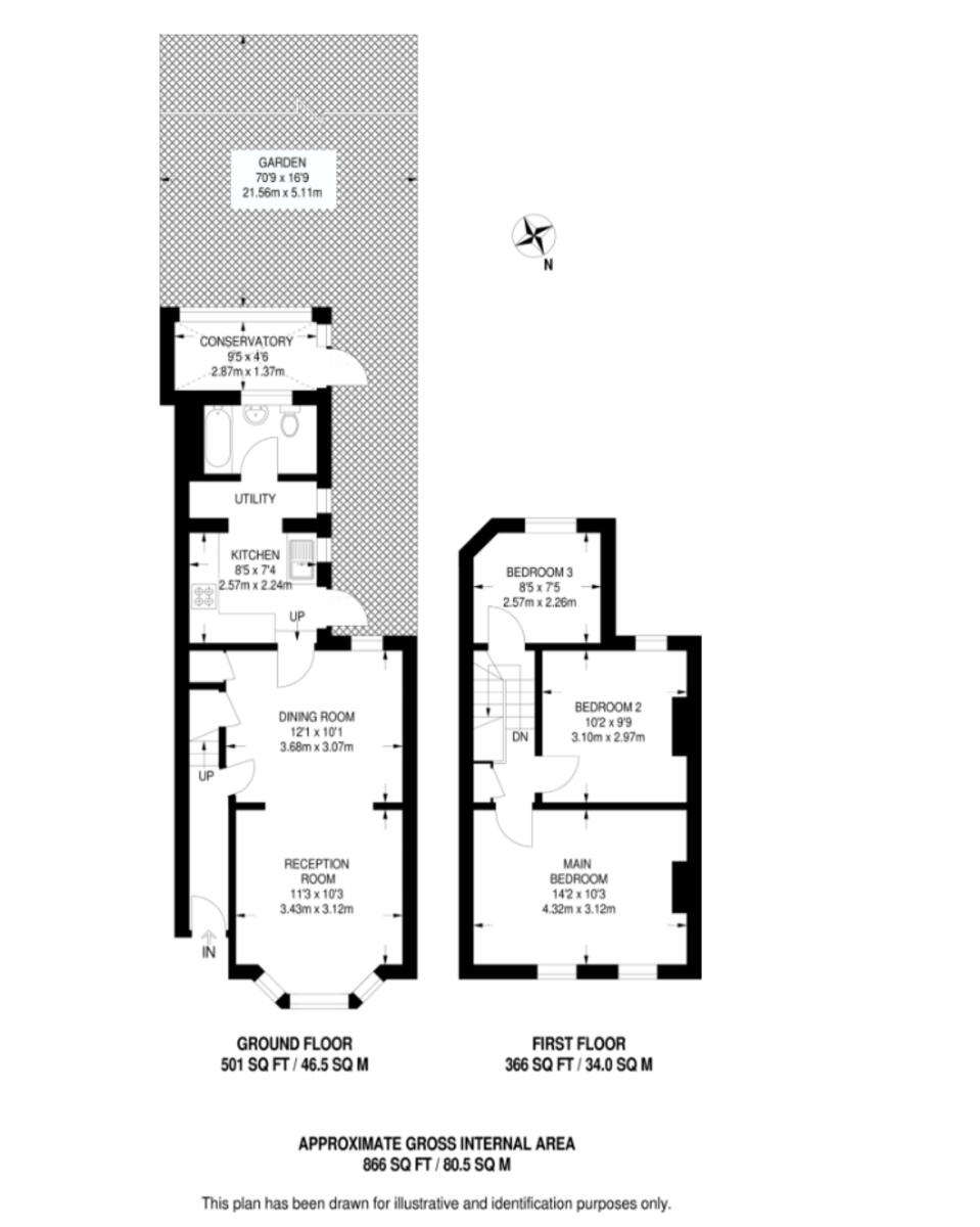
This three-bedroom terraced house in Broad Green, Croydon, presents a mixed bag for potential buyers. The property’s location is a definite plus, with relatively easy access to transport links via West Croydon station. Several schools are within a reasonable distance, making it attractive to families. However, the property’s condition requires attention. While seemingly habitable, the kitchen and bathroom appear dated and in need of modernisation. There are minor repair requirements, which can add to the initial costs of purchase. Notably, the garden is overgrown and needs substantial landscaping to enhance its appeal and usability. The price falls within the range of local comparable properties, although a lack of specific plot size information makes accurate valuation challenging. Overall, while the location is favorable and the potential for improvement is high, buyers must factor in the costs associated with renovations and updating the property to reach its full potential.
Therefore, we give this property 5 / 10. *Disclaimer: This is our option and does constitute a recommendation or financial advice. Do your own research. *
- Price
- 7
- Condition
- 6
- Location
- 7
- Land
- 3
- Bedrooms
- 3
- Bathrooms
- 1
- Sqft (est)
- 866.49
The heatmap indicates the level of crime in the area. The color of the heatmap indicates the crime severity and recency.
Metrics Year-on-Year
- Average area value
- 299,286.00 £Decreased by 12.95 %
- Est sale value
- 374,323.68 £Increased by 3.60 %
- Average area rental value
- 1,709.00 £/moDecreased by 4.68 %
- Est letting value
- 1,732.98 £/moUnchanged by 0.00 %
- Est rental Yield
- 6.85 %Increased by 9.42 %
- Crime Rate
- 1.00 %Unchanged by 0.00 %
Agent Activity
haart created the listing.
Nearby Schools
| Name | Type | Ofsted | Distance |
|---|---|---|---|
| Addington Valley Academy | Free Schools Special | 0.40 KM | |
| Broad Green Sure Start | Children's Centre Linked Site | 0.41 KM | |
| Harris Primary Academy Croydon | Academy Sponsor Led | 0.48 KM | |
| Elmwood Junior School | Community School | Good | 0.91 KM |
| Elmwood Infant School | Community School | Good | 0.91 KM |
Images
Nearby Streets
| Name | Average Price | Average Sqft | Distance |
|---|---|---|---|
| York Road | £ 0 | 0 | 0.00 KM |
| York Road | £ 0 | 0 | 0.00 KM |
| Campbell Road | £ 0 | 0 | 0.00 KM |
| Allen Road | £ 0 | 0 | 0.00 KM |
| Drake Road | £ 0 | 0 | 0.00 KM |
Nearby Transport
| Name | NLC | TLC | Distance |
|---|---|---|---|
| West Croydon | 5411 | WCY | 1.38 KM |
| Waddon | 5392 | WDO | 1.87 KM |
| Thornton Heath | 5388 | TTH | 2.23 KM |
| East Croydon | 5355 | ECR | 2.50 KM |
| Selhurst | 5434 | SRS | 2.96 KM |
Nearby Listings
| Address | Price | Type | Score | Distance |
|---|---|---|---|---|
| Fairholme Road, Croydon | £ 425,000 | BUY | 5 / 10 | 0.00 KM |
| Greenside Road, Croydon, Surrey | £ 475,000 | BUY | 6 / 10 | 0.06 KM |
| Fairholme Road, Croydon | £ 350,000 | BUY | 5 / 10 | 0.06 KM |
| Croydon, CR0 | £ 525,000 | BUY | 5 / 10 | 0.09 KM |
| Pemdevon Road, Croydon, Surrey | £ 400,000 | BUY | 5 / 10 | 0.10 KM |
Nearby Properties
| Address | Price | Distance |
|---|---|---|
| 97 Fairholme Road | £ 350,000 | 0.07 KM |
| 87 Fairholme Road | £ 395,000 | 0.07 KM |
| 71 Fairholme Road | £ 380,000 | 0.07 KM |
| 109 Fairholme Road | £ 185,000 | 0.07 KM |
| 91 Fairholme Road | £ 235,000 | 0.07 KM |