Patrick Gardner says ..
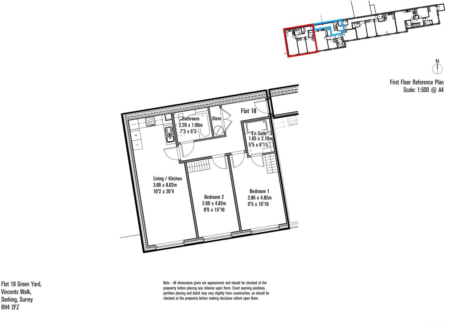
50% SOLD *SPACIOUS TWO BEDROOM APARTMENT* Plot 18 is a generously sized two-bedroom apartment located on the first floor of the highly regarded Green Yard development in Dorking. The apartment features a large open-plan kitchen/living area, a spacious principal bedroom with ensuite show...
Property Oracle says ..
Therefore, we give this property 6 / 10. *Disclaimer: This is our option and does constitute a recommendation or financial advice. Do your own research. *
- Price
- 6
- Condition
- 9
- Location
- 8
- Land
- 3
- Bedrooms
- 2
- Bathrooms
- 1
- Sqft (est)
- 632.32
The heatmap indicates the level of crime in the area. The color of the heatmap indicates the crime severity and recency.
Metrics Year-on-Year
- Average area value
- 304,767.00 £Decreased by 41.06 %
- Est sale value
- 295,925.76 £Increased by 2.18 %
- Average area rental value
- 1,483.00 £/moIncreased by 8.33 %
- Est letting value
- 1,264.64 £/moIncreased by 100.00 %
- Est rental Yield
- 5.84 %Increased by 83.65 %
- Crime Rate
- 31.00 %Unchanged by 0.00 %
from 517,113.00 £
from 289,602.56 £
from 1,369.00 £/mo
from 632.32 £/mo
from 3.18 %
from 31.00 %
Agent Activity
Patrick Gardner created the listing.
Nearby Schools
| Name | Type | Ofsted | Distance |
|---|---|---|---|
| Dorking Nursery School | Local Authority Nursery School | Outstanding | 0.24 KM |
| St Joseph'S Catholic Primary School | Voluntary Aided School | Good | 0.27 KM |
| Dorking Nursery School Sure Start Children'S Centre | Children's Centre | 0.27 KM | |
| St Paul'S Cofe (Aided) Primary School | Voluntary Aided School | Outstanding | 0.73 KM |
| The Priory Cofe Voluntary Aided School | Voluntary Aided School | Good | 0.86 KM |
Images
Nearby Streets
| Name | Average Price | Average Sqft | Distance |
|---|---|---|---|
| Sun Row | £ 199,950 | 0 | 0.00 KM |
| FP103 | £ 0 | 0 | 0.00 KM |
| Dyson Court | £ 0 | 0 | 0.00 KM |
| Mullins Court | £ 0 | 0 | 0.00 KM |
| Junction Place Cut-Through | £ 0 | 0 | 0.00 KM |
Nearby Transport
| Name | NLC | TLC | Distance |
|---|---|---|---|
| Dorking West | 5297 | DKT | 0.91 KM |
| Dorking (Deepdene) | 5412 | DPD | 1.46 KM |
| Dorking | 5357 | DKG | 1.65 KM |
| Box Hill And Westhumble | 5403 | BXW | 2.74 KM |
| Holmwood | 5308 | HLM | 5.66 KM |
Nearby Listings
| Address | Price | Type | Score | Distance |
|---|---|---|---|---|
| CENTRAL DORKING, RH4 | £ 375,000 | BUY | 6 / 10 | 0.00 KM |
| CENTRAL DORKING, RH4 | £ 375,000 | BUY | Unknown | 0.00 KM |
| CENTRAL DORKING, RH4 | £ 375,000 | BUY | 6 / 10 | 0.00 KM |
| CENTRAL DORKING, RH4 | £ 215,000 | BUY | 6 / 10 | 0.00 KM |
| CENTRAL DORKING RH4 | £ 175,000 | BUY | 6 / 10 | 0.00 KM |
Nearby Properties
| Address | Price | Distance |
|---|---|---|
| 8 Vincent Mews | £ 315,000 | 0.09 KM |
| 2 Chartwood Place | £ 249,950 | 0.12 KM |
| 10 Chartwood Place | £ 335,000 | 0.12 KM |
| 5 Chartwood Place | £ 330,000 | 0.12 KM |
| 13 Chartwood Place | £ 387,000 | 0.12 KM |