Walnut Close, Laindon
By Charles David Casson
£ 190,000
Reviews
2 out of 5 stars
Charles David Casson says ..
OFFERS IN EXCESS OF £190,000 - Attention FIRST TIME BUYERS & BUY TO LET INVESTORS
Property Oracle says ..
The property is a one-bedroom apartment located in Laindon, Essex. Based on the provided images, the property appears to be in good condition and well-maintained. The apartment benefits from a modern kitchen and bathroom. The location is convenient, with nearby transportation links and schools. However, the property lacks a garden. The list price of £190,000 seems reasonable when compared to similar properties in the area, although more data on the square footage of comparable properties would allow for a more precise evaluation.
Therefore, we give this property 5 / 10. *Disclaimer: This is our option and does constitute a recommendation or financial advice. Do your own research. *
- Price
- 7
- Condition
- 8
- Location
- 7
- Land
- 1
- Bedrooms
- 1
- Bathrooms
- 1
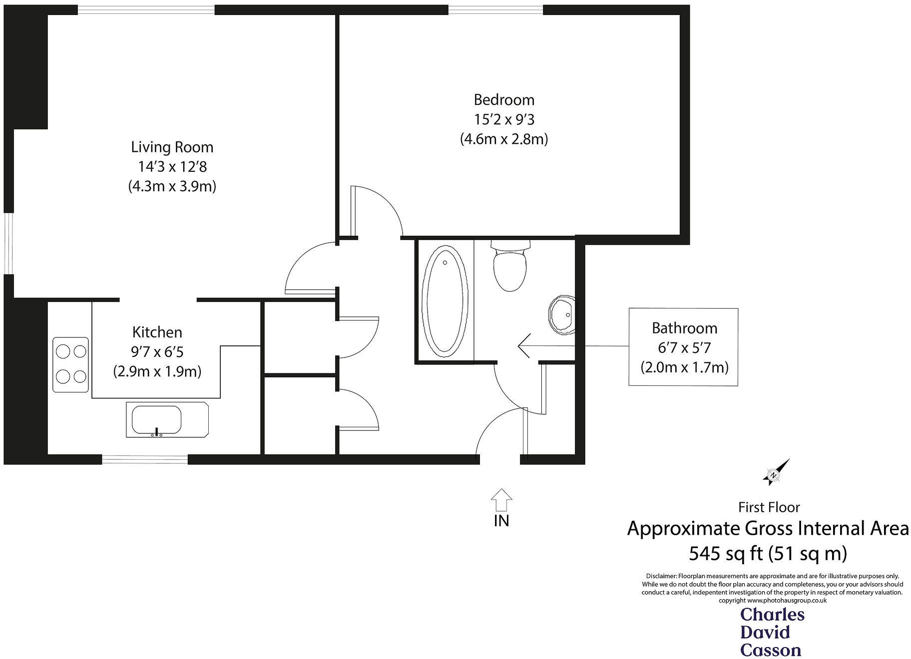
- Sqft (est)
- 545.00
The heatmap indicates the level of crime in the area. The color of the heatmap indicates the crime severity and recency.
Metrics Year-on-Year
- Average area value
- 497,727.00 £Decreased by 14.48 %
- Est sale value
- 347,710.00 £Increased by 74.79 %
- Average area rental value
- 2,500.00 £/moIncreased by 61.29 %
- Est letting value
- 1,635.00 £/mo
- Est rental Yield
- 6.03 %Increased by 88.44 %
- Crime Rate
- 4.00 %Unchanged by 0.00 %
Agent Activity
Charles David Casson created the listing.
Nearby Schools
| Name | Type | Ofsted | Distance |
|---|---|---|---|
| Millhouse Primary School | Community School | Good | 0.46 KM |
| Bas10 The All About Family Hub Delivery Site | Children's Centre Linked Site | 1.06 KM | |
| The James Hornsby School | Academy Sponsor Led | Good | 1.06 KM |
| The Phoenix Primary School | Academy Sponsor Led | Outstanding | 1.25 KM |
| Laindon Park Primary School & Nursery | Academy Converter | 1.33 KM |
Images
Nearby Streets
| Name | Average Price | Average Sqft | Distance |
|---|---|---|---|
| Southend Arterial Road | £ 132,500 | 0 | 0.00 KM |
| Walton Court | £ 350,000 | 0 | 0.00 KM |
| Paul's Road | £ 0 | 0 | 0.00 KM |
| Yew Close | £ 645,000 | 0 | 0.00 KM |
| Sunnyside | £ 425,000 | 0 | 0.00 KM |
Nearby Transport
| Name | NLC | TLC | Distance |
|---|---|---|---|
| Laindon | 7445 | LAI | 1.90 KM |
| Basildon | 7494 | BSO | 3.83 KM |
| Billericay | 6871 | BIC | 5.02 KM |
| Stanford-Le-Hope | 7458 | SFO | 7.81 KM |
| Pitsea | 7452 | PSE | 9.24 KM |
Nearby Listings
| Address | Price | Type | Score | Distance |
|---|---|---|---|---|
| Walnut Close, Laindon | £ 190,000 | BUY | 5 / 10 | 0.00 KM |
| Dunton Road, Basildon, Essex, SS15 4DS | £ 665,000 | BUY | Unknown | 0.03 KM |
| Dunton Road, Basildon, Essex, SS15 4DS | £ 665,000 | BUY | 7 / 10 | 0.03 KM |
| Dunton Road, Basildon, Essex, SS15 4DS | £ 595,000 | BUY | Unknown | 0.03 KM |
| Dunton Road, Basildon, Essex, SS15 4DS | £ 400,000 | BUY | Unknown | 0.03 KM |
Nearby Properties
| Address | Price | Distance |
|---|---|---|
| 1 Walnut Close | £ 190,000 | 0.03 KM |
| 23 Walnut Close | £ 151,000 | 0.03 KM |
| 5 Walnut Close | £ 235,000 | 0.03 KM |
| 7 Walnut Close | £ 200,000 | 0.03 KM |
| 21 Walnut Close | £ 230,000 | 0.03 KM |