Funnell Drive, Haywards Heath, RH17
By Mansell McTaggart
£ 450,000
Reviews
3 out of 5 stars
Mansell McTaggart says ..
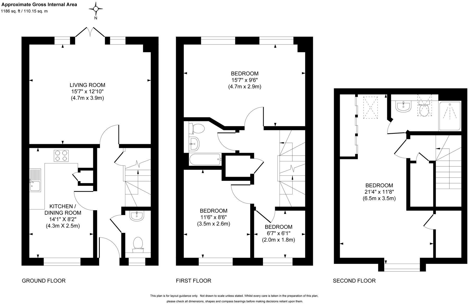
GUIDE PRICE … £450,000-£465,000 …. PLEASE WATCH THE VIDEO … A 4 bedroom townhouse with a 32' x 16' south facing rear garden on this popular new development behind the hospital on the town’s southern edge and enjoying a cul-de-sac location overlooking a large open green.
Property Oracle says ..
The property is a 4-bedroom, 2-bathroom house located in Haywards Heath, East Sussex. The property is a terraced house with a small garden and shed. It is situated within easy reach of Haywards Heath train station, providing convenient access to London and other major cities. Several primary schools with good Ofsted ratings are also nearby. The property appears to be in good condition, with a modern kitchen and bathrooms. The interior is well-presented and appears well-maintained. The garden is relatively small but well-kept. Considering the average price per square foot in the area (£457) and the property’s size (1,186 sq ft), a reasonable list price might be in the region of £540,000-£570,000. However, the list price of £450,000 is significantly lower than this estimate. This could be due to a number of factors, including the relatively small plot size, or it may represent good value for money.
Therefore, we give this property 6 / 10. *Disclaimer: This is our option and does constitute a recommendation or financial advice. Do your own research. *
- Price
- 7
- Condition
- 9
- Location
- 8
- Land
- 3
- Bedrooms
- 4
- Bathrooms
- 2
- Sqft (est)
- 1,186.00
The heatmap indicates the level of crime in the area. The color of the heatmap indicates the crime severity and recency.
Metrics Year-on-Year
- Average area value
- 890,625.00 £Increased by 35.96 %
- Est sale value
- 676,020.00 £Increased by 58.77 %
- Average area rental value
- 1,412.00 £/moDecreased by 13.11 %
- Est letting value
- 0.00 £/mo
- Est rental Yield
- 1.90 %Decreased by 36.24 %
- Crime Rate
- 15.00 %Unchanged by 0.00 %
Agent Activity
Mansell McTaggart created the listing.
Nearby Schools
| Name | Type | Ofsted | Distance |
|---|---|---|---|
| Chalkhill Education Centre, Chalkhill Hospital | Pupil Referral Unit | Outstanding | 0.28 KM |
| St Wilfrid'S Cofe Primary School, Haywards Heath | Voluntary Aided School | Good | 0.71 KM |
| St Joseph'S Catholic Primary School | Academy Converter | 1.29 KM | |
| Warden Park Primary Academy | Academy Sponsor Led | Good | 1.33 KM |
| Northlands Wood Primary Academy | Academy Converter | Good | 1.55 KM |
Images
Nearby Streets
| Name | Average Price | Average Sqft | Distance |
|---|---|---|---|
| Birch Way | £ 0 | 0 | 0.00 KM |
| Oakdale Road | £ 465,000 | 0 | 0.00 KM |
| Greenhill Park | £ 0 | 0 | 0.00 KM |
| Nightingale Close | £ 750,000 | 0 | 0.00 KM |
| Anscombe Wood Cresent | £ 800,000 | 0 | 0.00 KM |
Nearby Transport
| Name | NLC | TLC | Distance |
|---|---|---|---|
| Haywards Heath | 5490 | HHE | 2.33 KM |
| Wivelsfield | 5341 | WVF | 4.17 KM |
| Burgess Hill | 5483 | BUG | 5.52 KM |
| Plumpton | 5332 | PMP | 7.60 KM |
| Balcombe | 5492 | BAB | 8.89 KM |
Nearby Listings
| Address | Price | Type | Score | Distance |
|---|---|---|---|---|
| Funnell Drive, Haywards Heath, RH17 | £ 450,000 | BUY | 6 / 10 | 0.00 KM |
| Funnell Drive, Haywards Heath, West Sussex | £ 248,000 | BUY | 7 / 10 | 0.03 KM |
| Funnell Drive, Haywards Heath, West Sussex | £ 375,000 | BUY | 7 / 10 | 0.03 KM |
| Funnell Drive, Haywards Heath, RH17 | £ 300,000 | BUY | 6 / 10 | 0.03 KM |
| Funnell Drive, Haywards Heath | £ 450,000 | BUY | 6 / 10 | 0.04 KM |
Nearby Properties
| Address | Price | Distance |
|---|---|---|
| 30 Funnell Drive | £ 299,950 | 0.02 KM |
| 22 Funnell Drive | £ 375,000 | 0.02 KM |
| 32 Funnell Drive | £ 307,500 | 0.02 KM |
| 19 Robertson Drive | £ 290,000 | 0.09 KM |
| 15 Robertson Drive | £ 294,950 | 0.09 KM |