Hunters says ..
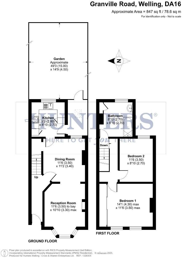
Nestled in the sought-after area of Granville Road, Welling, this charming Victorian mid-terrace home offers a delightful blend of character and potential. Spanning an impressive 847 square feet, the property boasts two spacious reception areas, perfect for both relaxation and entertaining. The o...
Property Oracle says ..
Therefore, we give this property 6 / 10. *Disclaimer: This is our option and does constitute a recommendation or financial advice. Do your own research. *
- Price
- 6
- Condition
- 6
- Location
- 7
- Land
- 7
- Bedrooms
- 2
- Bathrooms
- 1
- Sqft (est)
- 847.00
- Lot (est)
- 729.75
The heatmap indicates the level of crime in the area. The color of the heatmap indicates the crime severity and recency.
Metrics Year-on-Year
- Average area value
- 396,111.00 £Decreased by 12.15 %
- Est sale value
- 337,106.00 £Decreased by 3.86 %
- Average area rental value
- 1,783.00 £/moDecreased by 6.60 %
- Est letting value
- 847.00 £/moUnchanged by 0.00 %
- Est rental Yield
- 5.40 %Increased by 6.30 %
- Crime Rate
- 8.00 %Unchanged by 0.00 %
from 450,895.00 £
from 350,658.00 £
from 1,909.00 £/mo
from 847.00 £/mo
from 5.08 %
from 8.00 %
Agent Activity
Hunters created the listing.
Nearby Schools
| Name | Type | Ofsted | Distance |
|---|---|---|---|
| Foster'S Primary School | Voluntary Controlled School | Good | 0.20 KM |
| Aspire Academy Bexley | Academy Special Converter | 0.31 KM | |
| Barrington Primary School | Academy Converter | Good | 0.49 KM |
| Park View Academy | Other Independent Special School | Good | 0.58 KM |
| Danson Children'S Centre | Children's Centre | 0.69 KM |
Images
Nearby Streets
| Name | Average Price | Average Sqft | Distance |
|---|---|---|---|
| Westbrooke Road | £ 250,000 | 0 | 0.00 KM |
| Northdown Road | £ 600,000 | 0 | 0.00 KM |
| North Close | £ 775,000 | 0 | 0.00 KM |
| Portman Close | £ 512,500 | 0 | 0.00 KM |
| Beechwood Crescent | £ 0 | 0 | 0.00 KM |
Nearby Transport
| Name | NLC | TLC | Distance |
|---|---|---|---|
| Bexleyheath | 5094 | BXH | 1.47 KM |
| Welling | 5128 | WLI | 2.12 KM |
| Albany Park | 5132 | AYP | 2.98 KM |
| Abbey Wood | 5131 | ABW | 3.27 KM |
| Sidcup | 5125 | SID | 3.62 KM |
Nearby Listings
| Address | Price | Type | Score | Distance |
|---|---|---|---|---|
| Granville Road, Welling | £ 400,000 | BUY | 6 / 10 | 0.00 KM |
| Granville Road, Welling, DA16 | £ 425,000 | BUY | 8 / 10 | 0.05 KM |
| Granville Road, Welling, Kent, DA16 | £ 425,000 | BUY | 7 / 10 | 0.06 KM |
| Bethel Road, Welling | £ 250,000 | BUY | 6 / 10 | 0.06 KM |
| Bethel Road, Welling, Kent, DA16 | £ 475,000 | BUY | 8 / 10 | 0.06 KM |
Nearby Properties
| Address | Price | Distance |
|---|---|---|
| 66 Granville Road | £ 335,000 | 0.03 KM |
| 52 Granville Road | £ 445,000 | 0.03 KM |
| 44 Granville Road | £ 225,000 | 0.03 KM |
| 12 Granville Road | £ 206,000 | 0.03 KM |
| 6 Granville Road | £ 250,000 | 0.03 KM |