WI
Netherfield Close, Staveley, Chesterfield
By Wilkins Vardy Residential
£ 275,000
Reviews
3 out of 5 stars
Wilkins Vardy Residential says ..
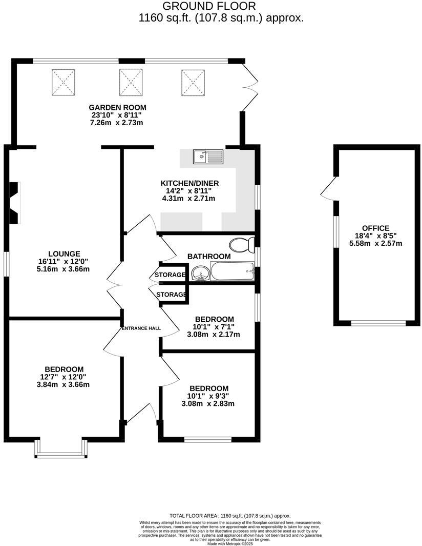
SUPERB EXTENDED DETACHED BUNGALOW - LANDSCAPED LOW MAINTENANCE REAR GARDEN - FORMER GARAGE CONVERTED INTO A HOME OFFICE This bay fronted detached bungalow has been extended to the rear providing well appointed accommodation for a family or for someone looking to downsize. The property b...
Property Oracle says ..
Therefore, we give this property 7 / 10. *Disclaimer: This is our option and does constitute a recommendation or financial advice. Do your own research. *
- Price
- 7
- Condition
- 7
- Location
- 7
- Land
- 8
- Bedrooms
- 3
- Bathrooms
- 1
- Sqft (est)
- 1,160.00
The heatmap indicates the level of crime in the area. The color of the heatmap indicates the crime severity and recency.
Metrics Year-on-Year
- Average area value
- 125,000.00 £Decreased by 31.69 %
- Est sale value
- 178,640.00 £Decreased by 26.32 %
- Average area rental value
- 750.00 £/moDecreased by 31.32 %
- Est letting value
- 0.00 £/moDecreased by 100.00 %
- Est rental Yield
- 7.20 %Increased by 0.56 %
- Crime Rate
- 6.00 %Unchanged by 0.00 %
from 183,000.00 £
from 242,440.00 £
from 1,092.00 £/mo
from 1,160.00 £/mo
from 7.16 %
from 6.00 %
Agent Activity
Wilkins Vardy Residential created the listing.
Nearby Schools
| Name | Type | Ofsted | Distance |
|---|---|---|---|
| Netherthorpe School | Academy Converter | Good | 0.30 KM |
| Staveley Children'S Centre | Children's Centre | 1.28 KM | |
| Norbriggs Primary School | Community School | Good | 1.35 KM |
| Poolsbrook Primary Academy | Academy Converter | 1.56 KM | |
| Speedwell Infant School | Community School | Good | 1.73 KM |
Images
Nearby Streets
| Name | Average Price | Average Sqft | Distance |
|---|---|---|---|
| Telford Crescent | £ 95,000 | 0 | 0.00 KM |
| Hall Lane | £ 0 | 0 | 0.00 KM |
| Staveley Hall Drive | £ 0 | 0 | 0.00 KM |
| High Street | £ 0 | 0 | 0.00 KM |
| Inkersall Road | £ 0 | 0 | 0.00 KM |
Nearby Transport
| Name | NLC | TLC | Distance |
|---|---|---|---|
| Chesterfield | 6615 | CHD | 9.38 KM |
Nearby Listings
| Address | Price | Type | Score | Distance |
|---|---|---|---|---|
| Netherfield Close, Staveley, Chesterfield | £ 275,000 | BUY | 7 / 10 | 0.00 KM |
| Netherfield Close, Staveley, Chesterfield | £ 225,000 | BUY | 7 / 10 | 0.04 KM |
| Lowgates, Staveley, S43 | £ 100,000 | BUY | 5 / 10 | 0.06 KM |
| Victoria Avenue, Staveley, Chesterfield | £ 130,000 | BUY | Unknown | 0.10 KM |
| Victoria Avenue, CHESTERFIELD, Derbyshire, S43 | £ 150,000 | BUY | 6 / 10 | 0.10 KM |
Nearby Properties
| Address | Price | Distance |
|---|---|---|
| 6 Netherfield Close | £ 174,000 | 0.04 KM |
| 5 Netherfield Close | £ 187,000 | 0.04 KM |
| 4 Netherfield Close | £ 120,000 | 0.04 KM |
| 16 Netherfield Close | £ 149,000 | 0.04 KM |
| 3 Netherfield Close | £ 152,500 | 0.04 KM |