The Cove, 159, Redwood Gardens, Redwood Boulevard, Blackpool, Lancashire, FY4
By LSL Land & New Homes
£ 334,995
Reviews
3 out of 5 stars
LSL Land & New Homes says ..
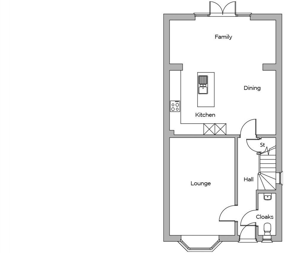
The Cove is a 4 bedroom home with stylish interiors perfect for entertaining.
Property Oracle says ..
The property is a 4-bedroom detached house located in Blackpool, Lancashire. The list price is £334,995, and the property has 551 square feet of living space. The average price per square foot in the area is £1,543.00, significantly higher than the price per sqft for this property. The nearby schools are all within a reasonable distance, with several rated ‘Good’ or ‘Outstanding’ by Ofsted. Several train stations are also within a few kilometers, providing convenient transportation links. While the property appears to be in good condition based on the image provided, the lack of information on the plot size and the significant difference between the average price per square foot in the area and the price per square foot of this property warrants further investigation. More information is needed to make a fully informed assessment of the land and price. Based on the limited information available, the property appears to be reasonably priced compared to similar properties in the area, considering the size and number of bedrooms. However, a more detailed inspection would be necessary to accurately assess the condition and land value.
Therefore, we give this property 6 / 10. *Disclaimer: This is our option and does constitute a recommendation or financial advice. Do your own research. *
- Price
- 7
- Condition
- 8
- Location
- 7
- Land
- 2
- Bedrooms
- 4
- Bathrooms
- 0
- Sqft (est)
- 551.00
The heatmap indicates the level of crime in the area. The color of the heatmap indicates the crime severity and recency.
Metrics Year-on-Year
- Average area value
- 1,230,783.00 £Decreased by 28.62 %
- Est sale value
- 636,405.00 £Decreased by 15.07 %
- Average area rental value
- 2,056.00 £/moDecreased by 2.00 %
- Est letting value
- 551.00 £/moUnchanged by 0.00 %
- Est rental Yield
- 2.00 %Increased by 36.99 %
- Crime Rate
- 2.00 %Unchanged by 0.00 %
Agent Activity
LSL Land & New Homes created the listing.
Nearby Schools
| Name | Type | Ofsted | Distance |
|---|---|---|---|
| Our Lady Of The Assumption Catholic Primary School | Voluntary Aided School | Good | 0.21 KM |
| Marton Primary Academy And Nursery | Academy Sponsor Led | Good | 0.84 KM |
| Highfield Leadership Academy | Academy Sponsor Led | Requires improvement | 0.96 KM |
| Blackpool St Nicholas Cofe Primary School | Voluntary Aided School | Outstanding | 1.04 KM |
| Hawes Side Academy | Academy Converter | Good | 1.38 KM |
Images
Nearby Streets
| Name | Average Price | Average Sqft | Distance |
|---|---|---|---|
| The Nurseries | £ 0 | 0 | 0.00 KM |
| Millfield Road | £ 0 | 0 | 0.00 KM |
| Regal Avenue | £ 110,000 | 0 | 0.00 KM |
| Laundry Road North | £ 0 | 0 | 0.00 KM |
| Jasmine Close | £ 0 | 0 | 0.00 KM |
Nearby Transport
| Name | NLC | TLC | Distance |
|---|---|---|---|
| Squires Gate | 2666 | SQU | 3.30 KM |
| Blackpool South | 2740 | BPS | 3.45 KM |
| St Annes-On-The-Sea | 2672 | SAS | 3.58 KM |
| Blackpool Pleasure Beach | 2738 | BPB | 3.63 KM |
| Blackpool North | 2739 | BPN | 5.21 KM |
Nearby Listings
| Address | Price | Type | Score | Distance |
|---|---|---|---|---|
| The Cove, 136, Redwood Gardens, Redwood Boulevard, Blackpool, Lancashire, FY4 | £ 339,995 | BUY | 8 / 10 | 0.00 KM |
| The Cove, 159, Redwood Gardens, Redwood Boulevard, Blackpool, Lancashire, FY4 | £ 334,995 | BUY | 6 / 10 | 0.00 KM |
| The Shore, Plot 155, Redwood Boulevard, Blackpool, Lancashire, FY4 | £ 359,995 | BUY | 8 / 10 | 0.00 KM |
| Redwood Boulevard, Blackpool, FY4 5GS | £ 259,950 | BUY | 7 / 10 | 0.03 KM |
| Redwood Boulevard, Blackpool, FY4 | £ 350,000 | BUY | 7 / 10 | 0.07 KM |
Nearby Properties
| Address | Price | Distance |
|---|---|---|
| 24 Moss House Road | £ 153,500 | 0.19 KM |
| 28 Moss House Road | £ 139,950 | 0.19 KM |
| 16 Moss House Road | £ 74,500 | 0.19 KM |
| 34 Moss House Road | £ 65,000 | 0.19 KM |
| 30 Moss House Road | £ 170,000 | 0.19 KM |