Hunters says ..
Residential freehold investment for sale – three tenanted houses generating £6,450 per month in Orpington that were newly built in 2024 Property 1. Detached 3 - Bed 2- Bath Property 2. Semidetached 2- Bed - 1 Bath Property 3. Semidetached 2- Bed - 1 Bath
Property Oracle says ..
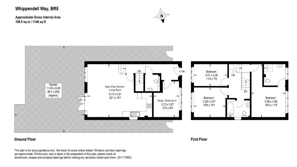
The property is located in the Cray Valley West area of Orpington, Bromley. The area benefits from nearby schools, including Gray’s Farm Primary Academy (rated Good by Ofsted) and Midfield Primary School (rated Outstanding). Several Southeastern train stations are within a reasonable distance, providing convenient transport links. The property itself appears to be newly built or recently renovated, presenting in excellent condition. It includes a garden, adding to its appeal. However, the listing lacks key details such as the number of bedrooms and bathrooms, and the square footage. This makes it difficult to accurately assess the value for money compared to the average price per square foot in the area. Given the lack of information on the size of the property, a definitive price assessment cannot be made. However, the list price is significantly higher than nearby comparable properties, suggesting it may be overpriced.
Therefore, we give this property 7 / 10. *Disclaimer: This is our option and does constitute a recommendation or financial advice. Do your own research. *
- Price
- 4
- Condition
- 10
- Location
- 8
- Land
- 7
- Bedrooms
- 0
- Bathrooms
- 0
The heatmap indicates the level of crime in the area. The color of the heatmap indicates the crime severity and recency.
Metrics Year-on-Year
- Average area value
- 770,000.00 £Increased by 1.19 %
- Average area rental value
- 1,713.00 £/moDecreased by 7.36 %
- Est rental Yield
- 2.67 %Decreased by 8.56 %
- Crime Rate
- 13.00 %Unchanged by 0.00 %
Agent Activity
Hunters created the listing.
Nearby Schools
| Name | Type | Ofsted | Distance |
|---|---|---|---|
| Cotmandene Children And Family Centre | Children's Centre | 0.36 KM | |
| Gray'S Farm Primary Academy | Academy Sponsor Led | Good | 0.51 KM |
| Kemnal Technology College | Academy Converter | Serious Weaknesses | 0.65 KM |
| Midfield Primary School | Academy Converter | Outstanding | 0.68 KM |
| Leesons Primary School | Academy Converter | Good | 0.93 KM |
Images
Nearby Streets
| Name | Average Price | Average Sqft | Distance |
|---|---|---|---|
| Wateringbury Close | £ 0 | 0 | 0.00 KM |
| Sevenoaks Way | £ 553,750 | 0 | 0.00 KM |
| Leigh Terrace | £ 525,000 | 0 | 0.00 KM |
| Southfield Road | £ 0 | 0 | 0.00 KM |
| Frognal Avenue | £ 0 | 0 | 0.00 KM |
Nearby Transport
| Name | NLC | TLC | Distance |
|---|---|---|---|
| St Mary Cray | 5073 | SMY | 1.34 KM |
| Sidcup | 5125 | SID | 3.04 KM |
| Albany Park | 5132 | AYP | 3.79 KM |
| Petts Wood | 5123 | PET | 4.14 KM |
| Orpington | 5122 | ORP | 4.23 KM |
Nearby Listings
| Address | Price | Type | Score | Distance |
|---|---|---|---|---|
| Whippendell Way, Orpington | £ 1,800,000 | BUY | 7 / 10 | 0.00 KM |
| Horsell Road, Orpington | £ 450,000 | BUY | 5 / 10 | 0.11 KM |
| Whippendell Close, St Pauls Cray, Kent, BR5 | £ 300,000 | BUY | 6 / 10 | 0.14 KM |
| Horsell Road, Orpington | £ 425,000 | BUY | Unknown | 0.17 KM |
| Cotmandene Crescent, Orpington | £ 400,000 | BUY | 5 / 10 | 0.20 KM |
Nearby Properties
| Address | Price | Distance |
|---|---|---|
| 70 Whippendell Way | £ 196,000 | 0.04 KM |
| 58 Whippendell Way | £ 175,000 | 0.04 KM |
| 80 Whippendell Way | £ 181,000 | 0.04 KM |
| 92 Whippendell Way | £ 263,390 | 0.04 KM |
| 94 Whippendell Way | £ 200,000 | 0.04 KM |