Richmond Avenue, Shoeburyness, SS3
By Blackshaw Homes
£ 475,000
Reviews
3 out of 5 stars
Blackshaw Homes says ..
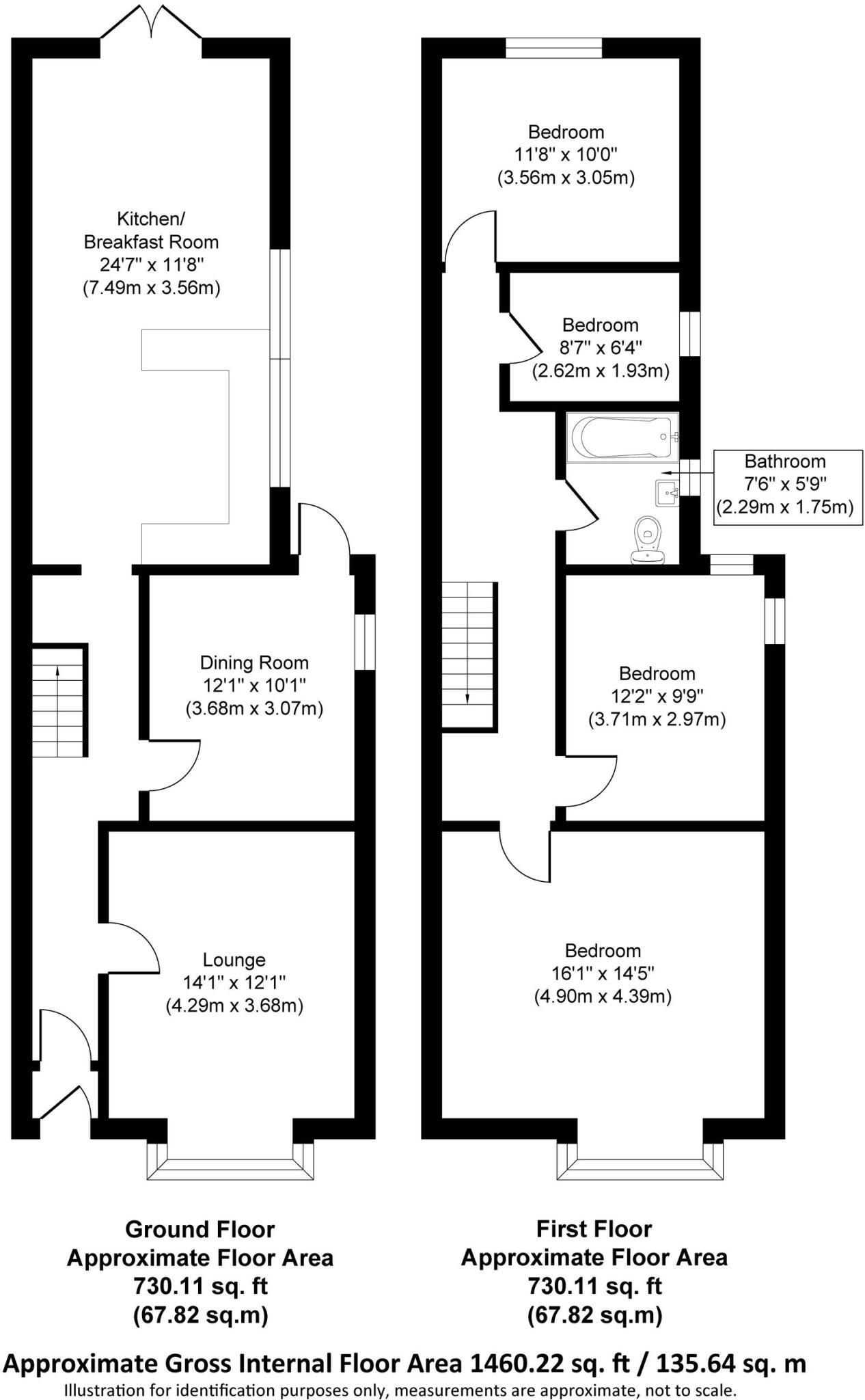
This impressive semi-detached house combines period charm with modern living, offering generous family accommodation spread across two floors.
Property Oracle says ..
The property is located in Shoeburyness, Essex, close to schools and transport links. It appears to be in good condition, having undergone recent modernisation. The inclusion of a garden adds to its appeal. While the list price is higher than the area average, this is justified by the property’s size and recent improvements. Comparable properties in the area support this pricing.
Therefore, we give this property 7 / 10. *Disclaimer: This is our option and does constitute a recommendation or financial advice. Do your own research. *
- Price
- 7
- Condition
- 8
- Location
- 7
- Land
- 7
- Bedrooms
- 4
- Bathrooms
- 1
- Sqft (est)
- 1,460.22
The heatmap indicates the level of crime in the area. The color of the heatmap indicates the crime severity and recency.
Metrics Year-on-Year
- Average area value
- 220,000.00 £Decreased by 5.99 %
- Est sale value
- 478,952.16 £Increased by 23.77 %
- Average area rental value
- 890.00 £/moDecreased by 4.91 %
- Est letting value
- 1,460.22 £/moUnchanged by 0.00 %
- Est rental Yield
- 4.85 %Increased by 1.04 %
- Crime Rate
- 12.00 %Unchanged by 0.00 %
Agent Activity
Blackshaw Homes created the listing.
Nearby Schools
| Name | Type | Ofsted | Distance |
|---|---|---|---|
| Richmond Avenue Primary And Nursery School | Academy Converter | 0.34 KM | |
| Hinguar Community Primary School | Academy Converter | Good | 0.57 KM |
| Shoeburyness High School | Academy Converter | Good | 0.64 KM |
| Thorpedene Primary School | Academy Converter | Good | 1.17 KM |
| St George'S Catholic Primary School | Academy Converter | 1.17 KM |
Images
Nearby Streets
| Name | Average Price | Average Sqft | Distance |
|---|---|---|---|
| Cranley Gardens | £ 0 | 0 | 0.00 KM |
| Swallowcliffe | £ 0 | 0 | 0.00 KM |
| Fallowfield | £ 825,000 | 0 | 0.00 KM |
| Chaffinch Close | £ 0 | 0 | 0.00 KM |
| Barrowsand | £ 0 | 0 | 0.00 KM |
Nearby Transport
| Name | NLC | TLC | Distance |
|---|---|---|---|
| Shoeburyness | 7455 | SRY | 1.75 KM |
| Thorpe Bay | 7460 | TPB | 2.22 KM |
| Southend East | 7457 | SOE | 5.41 KM |
| Southend Central | 7456 | SOC | 7.57 KM |
| Southend Victoria | 7420 | SOV | 7.67 KM |
Nearby Listings
| Address | Price | Type | Score | Distance |
|---|---|---|---|---|
| Richmond Avenue, Shoeburyness, SS3 | £ 475,000 | BUY | 7 / 10 | 0.00 KM |
| Richmond Avenue, Shoeburyness, Southend-On-Sea, SS3 | £ 510,000 | BUY | Unknown | 0.01 KM |
| Richmond Avenue , Shoeburyness, SS3 | £ 170,000 | BUY | 6 / 10 | 0.01 KM |
| Richmond Avenue, SOUTHEND-ON-SEA, Essex, SS3 | £ 375,000 | BUY | Unknown | 0.01 KM |
| 105 Richmond Avenue, Shoeburyness, Shoeburyness, Essex, SS3 9LF | £ 230,000 | BUY | 5 / 10 | 0.06 KM |
Nearby Properties
| Address | Price | Distance |
|---|---|---|
| 123 Richmond Avenue | £ 177,500 | 0.00 KM |
| 126 Richmond Avenue | £ 365,000 | 0.00 KM |
| 119 Richmond Avenue | £ 165,500 | 0.00 KM |
| 112 Richmond Avenue | £ 227,000 | 0.00 KM |
| 107 Richmond Avenue | £ 200,000 | 0.00 KM |