St. Edwards Walk,Cheltenham,GL53 7RS
By Luke Heyden Property, Powered by eXp UK
£ 875,000
Reviews
3 out of 5 stars
Luke Heyden Property, Powered by eXp UK says ..
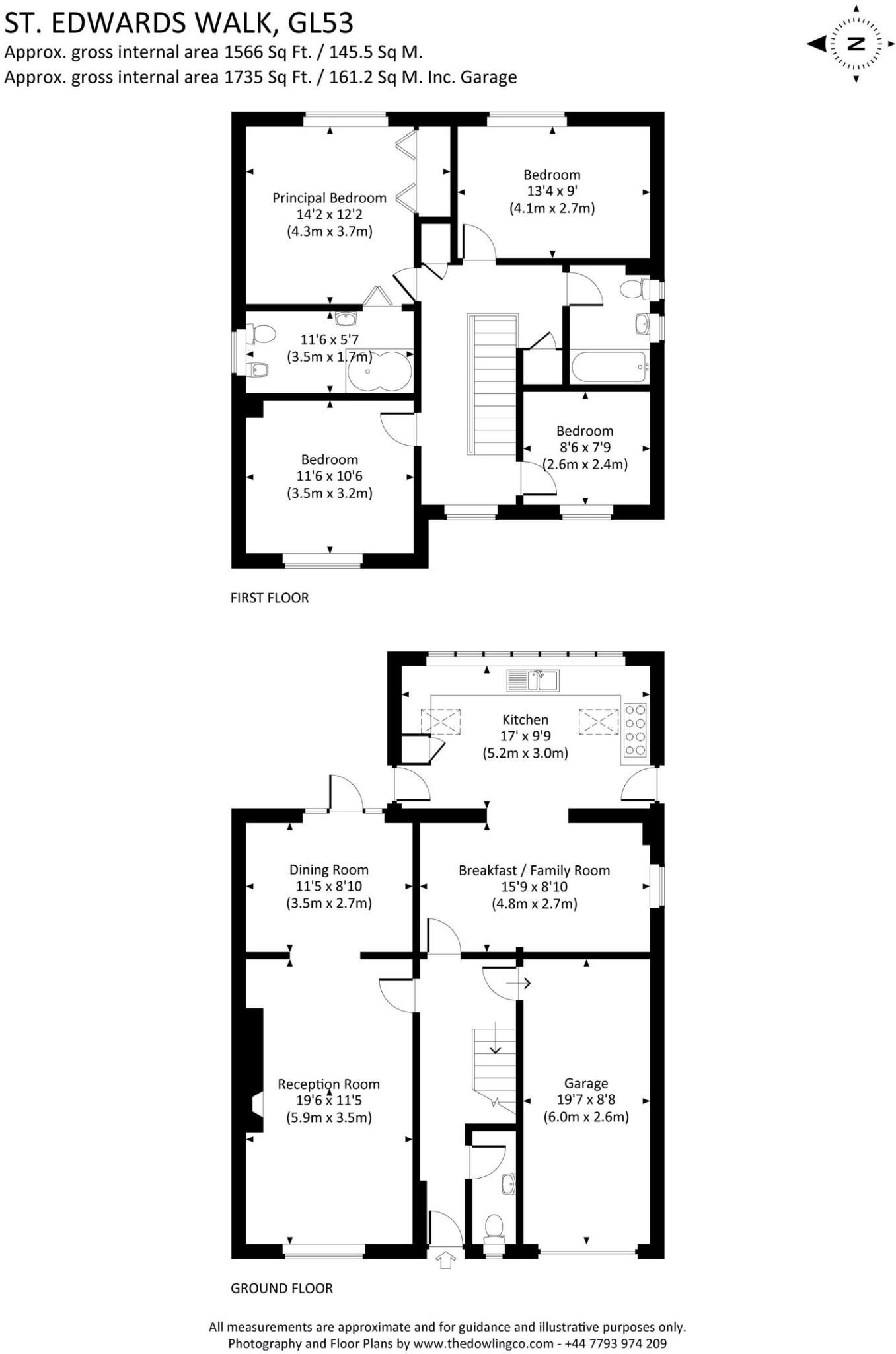
An executive, four bedroom family home located in Charlton Kings. Garage, driveway, large garden, en-suite shower room, Balcarras catchment.
Property Oracle says ..
This four-bedroom, two-bathroom house in Cheltenham’s Charlton Park offers a comfortable family home. The property benefits from a good-sized garden, an updated kitchen, and a generally well-maintained interior. The location is convenient, with relatively close proximity to schools and Cheltenham Spa train station. The images showcase a spacious layout, including a living room with a fireplace, a dining area, and well-sized bedrooms. While the property appears habitable and well-maintained, some minor cosmetic updates or modernizations might enhance its appeal. The asking price seems reasonable relative to other properties in the area, but more detailed comparable data would be needed for a precise valuation. The lack of precise plot size information is a notable omission; however, the available photos suggest a generous garden. Overall, this property represents a solid family home in a desirable location, but potential buyers should conduct thorough research to confirm the property’s value in the current market.
Therefore, we give this property 6 / 10. *Disclaimer: This is our option and does constitute a recommendation or financial advice. Do your own research. *
- Price
- 7
- Condition
- 6
- Location
- 7
- Land
- 7
- Bedrooms
- 4
- Bathrooms
- 2
- Sqft (est)
- 1,735.14
The heatmap indicates the level of crime in the area. The color of the heatmap indicates the crime severity and recency.
Metrics Year-on-Year
- Average area value
- 513,942.00 £Decreased by 2.28 %
- Est sale value
- 990,764.94 £Decreased by 5.93 %
- Average area rental value
- 2,061.00 £/moIncreased by 1.93 %
- Est letting value
- 3,470.28 £/moUnchanged by 0.00 %
- Est rental Yield
- 4.81 %Increased by 4.34 %
- Crime Rate
- 1.00 %Unchanged by 0.00 %
Agent Activity
Luke Heyden Property, Powered by eXp UK created the listing.
Nearby Schools
| Name | Type | Ofsted | Distance |
|---|---|---|---|
| St Edward'S School | Other Independent School | 0.26 KM | |
| St Edward'S Preparatory School | Other Independent School | 0.94 KM | |
| Charlton Kings Infants' School | Academy Converter | Good | 1.00 KM |
| Charlton Kings Children'S Centre | Children's Centre | 1.05 KM | |
| Holy Apostles' Church Of England Primary School | Voluntary Aided School | Good | 1.06 KM |
Images
Nearby Streets
| Name | Average Price | Average Sqft | Distance |
|---|---|---|---|
| Randolph Close | £ 0 | 0 | 0.00 KM |
| Oakland Street | £ 0 | 0 | 0.00 KM |
| Roosevelt Avenue | £ 0 | 0 | 0.00 KM |
| Battledown Courtyard | £ 0 | 0 | 0.00 KM |
| Pumphreys Court | £ 0 | 0 | 0.00 KM |
Nearby Transport
| Name | NLC | TLC | Distance |
|---|---|---|---|
| Cheltenham Spa | 4731 | CNM | 4.66 KM |
Nearby Listings
| Address | Price | Type | Score | Distance |
|---|---|---|---|---|
| Chancel Way, Charlton Kings, Cheltenham | £ 875,000 | BUY | Unknown | 0.07 KM |
| Chancel Way, Charlton Kings | £ 1,050,000 | BUY | 6 / 10 | 0.09 KM |
| Chancel Way, Charlton Kings | £ 975,000 | BUY | 7 / 10 | 0.09 KM |
| Chancel Way, Cheltenham, GL53 | £ 975,000 | BUY | Unknown | 0.14 KM |
| Randolph Close, Cheltenham, GL53 | £ 1,150,000 | BUY | 8 / 10 | 0.16 KM |
Nearby Properties
| Address | Price | Distance |
|---|---|---|
| 10 Chancel Way | £ 725,000 | 0.10 KM |
| 9 Chancel Way | £ 500,000 | 0.10 KM |
| 21 Chancel Way | £ 775,000 | 0.10 KM |
| 3 Chancel Way | £ 660,000 | 0.10 KM |
| 7 Chancel Way | £ 175,000 | 0.10 KM |