Steventon New Road, Ludlow, Shropshire
By Nock Deighton, Land and New Homes
£ 250,000
Reviews
3 out of 5 stars
Nock Deighton, Land and New Homes says ..
Building your own home in Ludlow, Shropshire, offers the unique opportunity to create a personalised living space in one of the most picturesque and historically rich towns in the UK. Known for its medieval charm, stunning countryside views, and a vibrant food scene, Ludlow provides a perfect ble...
Property Oracle says ..
This plot of land is located on Steventon New Road in Ludlow, Shropshire. The location benefits from being approximately 1.35km from Ludlow train station and close to several schools, including St Laurence Cofe Primary School and Ludlow Primary School.
Therefore, we give this property 6 / 10. *Disclaimer: This is our option and does constitute a recommendation or financial advice. Do your own research. *
- Price
- 5
- Condition
- 0
- Location
- 7
- Land
- 6
- Bedrooms
- 0
- Bathrooms
- 0
- Lot (est)
- 77.30
The heatmap indicates the level of crime in the area. The color of the heatmap indicates the crime severity and recency.
Metrics Year-on-Year
- Average area value
- 243,278.00 £Decreased by 3.15 %
- Average area rental value
- 1,186.00 £/moIncreased by 12.42 %
- Est rental Yield
- 5.85 %Increased by 16.07 %
- Crime Rate
- 6.00 %Unchanged by 0.00 %
Agent Activity
Nock Deighton, Land and New Homes created the listing.
Nearby Schools
| Name | Type | Ofsted | Distance |
|---|---|---|---|
| Shropshire Sw Early Help Family Hub (2) | Children's Centre | 0.52 KM | |
| St Laurence Cofe Primary School | Voluntary Controlled School | Good | 0.91 KM |
| Ludlow Primary School | Academy Converter | Good | 1.01 KM |
| Shropshire Sw Early Help Family Hub | Children's Centre | 1.18 KM | |
| Ludlow Church Of England School | Academy Converter | Good | 2.84 KM |
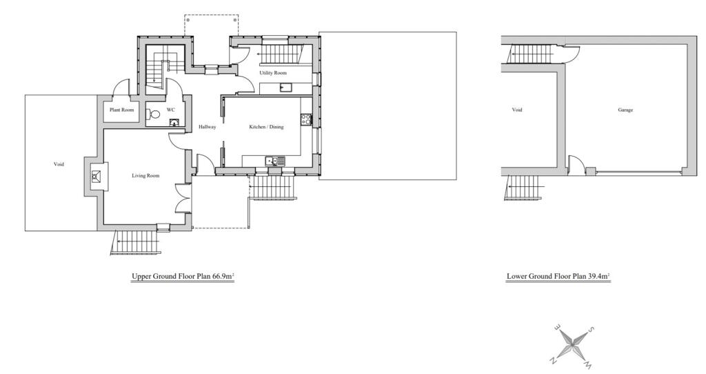
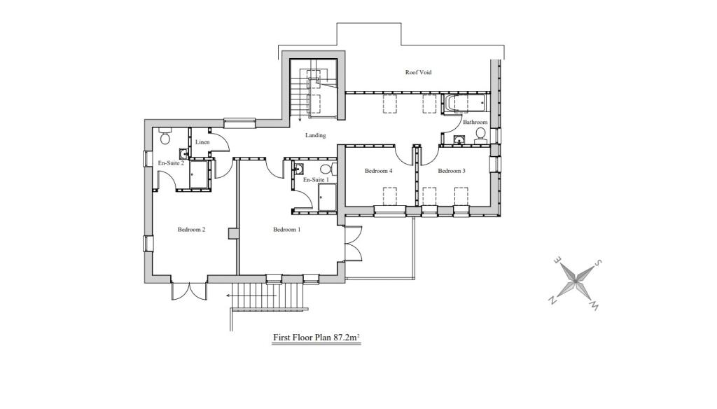
Images
Nearby Streets
| Name | Average Price | Average Sqft | Distance |
|---|---|---|---|
| Chestnut Grove | £ 0 | 0 | 0.00 KM |
| Paper Mill Drive | £ 0 | 0 | 0.00 KM |
| Friars Walk | £ 230,000 | 0 | 0.00 KM |
| Corn Mill Road | £ 0 | 0 | 0.00 KM |
| Temeside | £ 0 | 0 | 0.00 KM |
Nearby Transport
| Name | NLC | TLC | Distance |
|---|---|---|---|
| Ludlow | 3635 | LUD | 1.35 KM |
Nearby Listings
| Address | Price | Type | Score | Distance |
|---|---|---|---|---|
| Steventon New Road, Ludlow, Shropshire | £ 250,000 | BUY | 6 / 10 | 0.00 KM |
| Steventon New Road, Ludlow | £ 340,000 | BUY | Unknown | 0.04 KM |
| Steventon Crescent, Ludlow, Shropshire | £ 200,000 | BUY | Unknown | 0.06 KM |
| 24 Temeside Estate, Ludlow | £ 280,000 | BUY | 6 / 10 | 0.16 KM |
| Steventon New Road, Ludlow, Shropshire | £ 320,000 | BUY | Unknown | 0.16 KM |
Nearby Properties
| Address | Price | Distance |
|---|---|---|
| Drewean | £ 247,500 | 0.07 KM |
| 19 Steventon New Road | £ 199,950 | 0.07 KM |
| 51 Steventon New Road | £ 156,000 | 0.07 KM |
| 15 Steventon New Road | £ 168,700 | 0.07 KM |
| 17 Steventon New Road | £ 129,950 | 0.07 KM |