KI
1 Pebbleridge Road, Westward Ho!, Bideford, Devon, EX39
By Kivells
£ 125,000
Reviews
3 out of 5 stars
Kivells says ..
FOR SALE BY PUBLIC AUCTION WEDNESDAY 30TH JULY. The Beach Lodge represents an exciting endeavor for a myriad of purchasers given the vast potential in such a highly sought-after and one-off residential location – overlooking the Northam Burrows and Westward Ho! beach beyond.
Property Oracle says ..
Therefore, we give this property 7 / 10. *Disclaimer: This is our option and does constitute a recommendation or financial advice. Do your own research. *
- Price
- 9
- Condition
- 7
- Location
- 7
- Land
- 6
- Bedrooms
- 0
- Bathrooms
- 1
- Sqft (est)
- 263.72
The heatmap indicates the level of crime in the area. The color of the heatmap indicates the crime severity and recency.
Metrics Year-on-Year
- Average area value
- 421,797.00 £Increased by 27.32 %
- Est sale value
- 122,366.08 £Increased by 66.31 %
- Average area rental value
- 913.00 £/moIncreased by 18.73 %
- Est letting value
- 263.72 £/mo
- Est rental Yield
- 2.60 %Decreased by 6.81 %
- Crime Rate
- 2.00 %Unchanged by 0.00 %
from 331,301.00 £
from 73,577.88 £
from 769.00 £/mo
from 0.00 £/mo
from 2.79 %
from 2.00 %
Agent Activity
Kivells created the listing.
Nearby Schools
| Name | Type | Ofsted | Distance |
|---|---|---|---|
| St George'S Church Of England (Va) Infant And Nursery School | Voluntary Aided School | Good | 2.01 KM |
| St Margaret'S Church Of England (Aided) Junior School | Voluntary Aided School | Requires improvement | 2.06 KM |
| Kingsley School | Other Independent School | 3.05 KM | |
| St Helen'S Church Of England School | Academy Converter | 3.42 KM | |
| Bideford College | Academy Sponsor Led | Requires improvement | 3.42 KM |
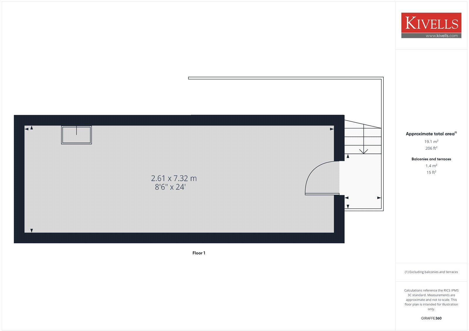
Images
Nearby Streets
| Name | Average Price | Average Sqft | Distance |
|---|---|---|---|
| Pavillion View | £ 487,500 | 0 | 0.00 KM |
| Park View Terrace | £ 0 | 0 | 0.00 KM |
| Park Avenue | £ 395,000 | 0 | 0.00 KM |
| Queens Close | £ 0 | 0 | 0.00 KM |
| Chichester Way | £ 0 | 0 | 0.00 KM |
Nearby Listings
| Address | Price | Type | Score | Distance |
|---|---|---|---|---|
| 1 Pebbleridge Road, Westward Ho!, Bideford, Devon, EX39 | £ 125,000 | BUY | 7 / 10 | 0.00 KM |
| Pebbleridge Road, Westward Ho! | £ 750,000 | BUY | 6 / 10 | 0.07 KM |
| Venton Drive, Westward Ho!, Bideford | £ 465,000 | BUY | Unknown | 0.19 KM |
| Holmleigh, Golf Links Road, Westward Ho, Bideford, Devon, EX39 1HH | £ 300,000 | BUY | 7 / 10 | 0.21 KM |
| Holmleigh, Golf Links Road, Westward Ho, Bideford, Devon, EX39 1HH | £ 270,000 | BUY | 6 / 10 | 0.21 KM |
Nearby Properties
| Address | Price | Distance |
|---|---|---|
| 6 Pebbleridge Road | £ 370,000 | 0.00 KM |
| 7 Pebbleridge Road | £ 300,000 | 0.00 KM |
| 2 Pebbleridge Road | £ 425,000 | 0.00 KM |
| 4 Pebbleridge Road | £ 338,000 | 0.00 KM |
| The Cottage | £ 170,000 | 0.00 KM |