Norman Road, Dartford
By Livermores The Estate Agents
£ 350,000
Reviews
3 out of 5 stars
Livermores The Estate Agents says ..
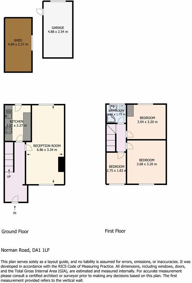
Nestled on the charming Norman Road in Dartford, this delightful three-bedroom end of terrace house presents a remarkable opportunity for families and investors alike. With a spacious * open reception room, this property offers ample space for both relaxation and entertaining. The well-proportion...
Property Oracle says ..
The property is an end-of-terrace house in Dartford, Kent. It has three bedrooms and one bathroom. The property is located close to schools and transportation links. The property has a garden, but it is overgrown and in need of maintenance. The property is priced below the average price per square foot for the area, but it requires some modernisation.
Therefore, we give this property 6 / 10. *Disclaimer: This is our option and does constitute a recommendation or financial advice. Do your own research. *
- Price
- 7
- Condition
- 6
- Location
- 7
- Land
- 7
- Bedrooms
- 3
- Bathrooms
- 1
- Sqft (est)
- 887.41
The heatmap indicates the level of crime in the area. The color of the heatmap indicates the crime severity and recency.
Metrics Year-on-Year
- Average area value
- 680,617.00 £Decreased by 16.07 %
- Est sale value
- 397,559.68 £Decreased by 14.18 %
- Average area rental value
- 1,914.00 £/moIncreased by 14.68 %
- Est letting value
- 887.41 £/moUnchanged by 0.00 %
- Est rental Yield
- 3.37 %Increased by 36.44 %
- Crime Rate
- 6.00 %Unchanged by 0.00 %
Agent Activity
Livermores The Estate Agents marked this listing as sold.
Livermores The Estate Agents created the listing.
Nearby Schools
| Name | Type | Ofsted | Distance |
|---|---|---|---|
| Oakfield Children'S Centre | Children's Centre | 0.61 KM | |
| Oakfield Primary Academy | Academy Converter | Good | 0.63 KM |
| Westgate Primary School | Academy Sponsor Led | Good | 1.07 KM |
| Brent Children'S Centre | Children's Centre | 1.18 KM | |
| Dartford Primary Academy | Academy Converter | Good | 1.42 KM |
Images
Nearby Streets
| Name | Average Price | Average Sqft | Distance |
|---|---|---|---|
| Trafalgar Road | £ 0 | 0 | 0.00 KM |
| Princes Road | £ 0 | 0 | 0.00 KM |
| Gordon Road | £ 300,000 | 0 | 0.00 KM |
| Heath Street | £ 0 | 0 | 0.00 KM |
| Highfield Road | £ 0 | 0 | 0.00 KM |
Nearby Transport
| Name | NLC | TLC | Distance |
|---|---|---|---|
| Dartford | 5101 | DFD | 1.34 KM |
| Farningham Road | 5105 | FNR | 4.28 KM |
| Crayford | 5100 | CRY | 4.46 KM |
| Slade Green | 5154 | SGR | 4.65 KM |
| Stone Crossing | 5248 | SCG | 5.45 KM |
Nearby Listings
| Address | Price | Type | Score | Distance |
|---|---|---|---|---|
| Norman Road, Dartford | £ 350,000 | BUY | 6 / 10 | 0.00 KM |
| Norman Road, Dartford, Kent, DA1 | £ 400,000 | BUY | Unknown | 0.08 KM |
| Walnut Tree Avenue, Dartford, Kent, DA1 | £ 350,000 | BUY | 5 / 10 | 0.09 KM |
| Walnut Tree Avenue, Dartford, DA1 | £ 325,000 | BUY | 5 / 10 | 0.09 KM |
| Walnut Tree Avenue, Dartford, DA1 1LJ | £ 350,000 | BUY | 7 / 10 | 0.10 KM |
Nearby Properties
| Address | Price | Distance |
|---|---|---|
| 10 Norman Road | £ 280,000 | 0.09 KM |
| 46 Norman Road | £ 135,000 | 0.09 KM |
| 62 Norman Road | £ 231,200 | 0.09 KM |
| 26 Norman Road | £ 282,000 | 0.09 KM |
| 2 Norman Road | £ 370,000 | 0.09 KM |