Elm Court, Old Milton Road, New Milton, Hampshire. BH25 6DY
By Ross Nicholas & Co
£ 199,950
Reviews
3 out of 5 stars
Ross Nicholas & Co says ..
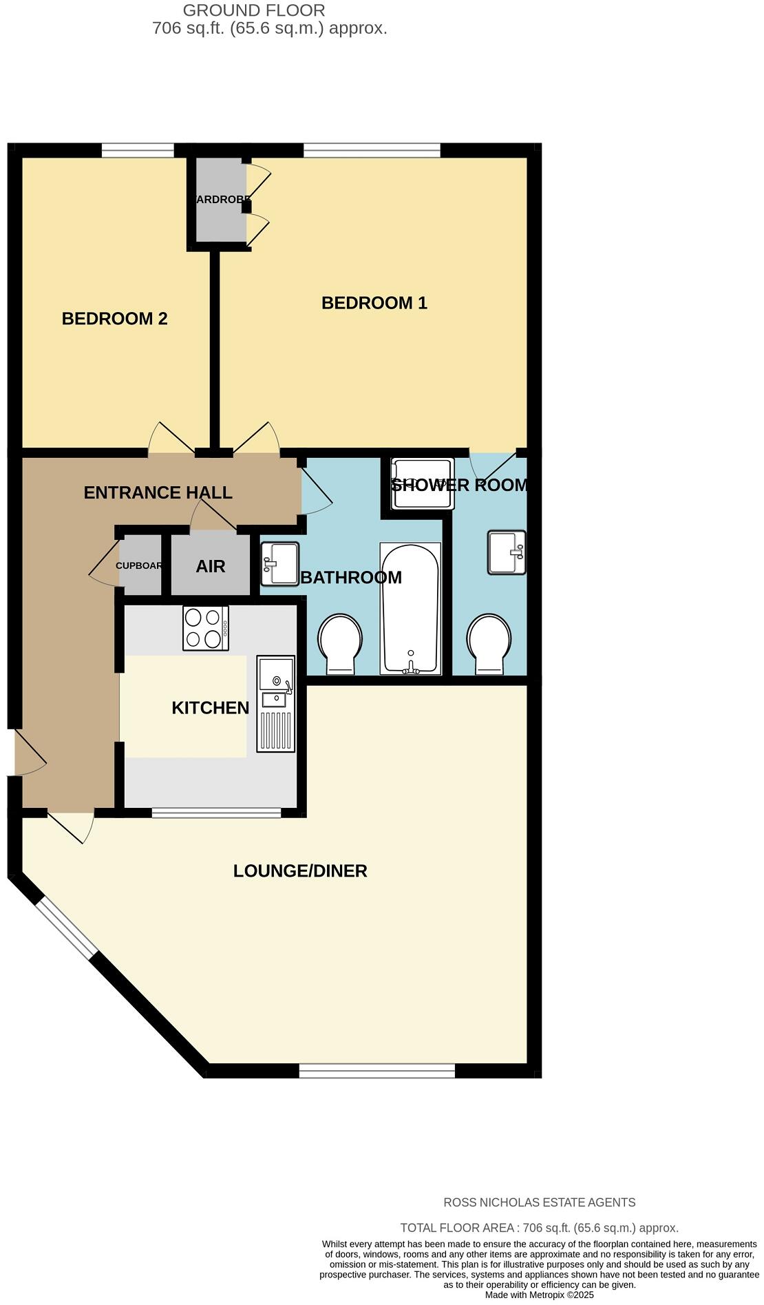
A well presented two double bedroom first floor flat located within a short walk of New Milton Town Centre and enjoying views over adjacent green. Features of the property include communal security entrance, entrance hall, Sitting/Dining Room, Kitchen, Bathroom, En-Suite Shower Room, allocated p...
Property Oracle says ..
Therefore, we give this property 6 / 10. *Disclaimer: This is our option and does constitute a recommendation or financial advice. Do your own research. *
- Price
- 7
- Condition
- 6
- Location
- 8
- Land
- 5
- Bedrooms
- 2
- Bathrooms
- 2
- Sqft (est)
- 706.00
The heatmap indicates the level of crime in the area. The color of the heatmap indicates the crime severity and recency.
Metrics Year-on-Year
- Average area value
- 328,606.00 £Increased by 5.04 %
- Est sale value
- 242,864.00 £Decreased by 14.85 %
- Average area rental value
- 1,137.00 £/moDecreased by 6.34 %
- Est letting value
- 706.00 £/moUnchanged by 0.00 %
- Est rental Yield
- 4.15 %Decreased by 10.94 %
- Crime Rate
- 57.00 %Unchanged by 0.00 %
from 312,849.00 £
from 285,224.00 £
from 1,214.00 £/mo
from 706.00 £/mo
from 4.66 %
from 57.00 %
Agent Activity
Ross Nicholas & Co created the listing.
Nearby Schools
| Name | Type | Ofsted | Distance |
|---|---|---|---|
| New Milton Junior School | Community School | Good | 0.66 KM |
| New Milton Infant School | Community School | Outstanding | 0.69 KM |
| The Arnewood School | Academy Converter | Good | 0.81 KM |
| Ballard School | Other Independent School | 1.06 KM | |
| The Phoenix Children And Young People'S Centre | Children's Centre | 1.19 KM |
Images
Nearby Streets
| Name | Average Price | Average Sqft | Distance |
|---|---|---|---|
| Station Road | £ 200,592 | 0 | 0.00 KM |
| Fernhill Road | £ 659,983 | 0 | 0.00 KM |
| Rubens Close | £ 0 | 0 | 0.00 KM |
| Churchill Court | £ 347,475 | 0 | 0.00 KM |
| Copse Avenue | £ 865,000 | 0 | 0.00 KM |
Nearby Transport
| Name | NLC | TLC | Distance |
|---|---|---|---|
| New Milton | 5881 | NWM | 0.36 KM |
| Sway | 5884 | SWY | 6.28 KM |
| Hinton Admiral | 5880 | HNA | 6.35 KM |
Nearby Listings
| Address | Price | Type | Score | Distance |
|---|---|---|---|---|
| Elm Court, Old Milton Road, New Milton, Hampshire. BH25 6DY | £ 199,950 | BUY | 6 / 10 | 0.00 KM |
| Elm Court, 27 Old Milton Road, New Milton, Hampshire, BH25 | £ 212,500 | BUY | 5 / 10 | 0.01 KM |
| Elm Court, 27 Old Milton Road, New Milton, Hampshire, BH25 | £ 210,000 | BUY | 6 / 10 | 0.01 KM |
| Elm Avenue, New Milton, Hampshire, BH25 | £ 580,000 | BUY | 6 / 10 | 0.05 KM |
| Crossmead Avenue New Milton BH25 6NF | £ 575,000 | BUY | 7 / 10 | 0.11 KM |
Nearby Properties
| Address | Price | Distance |
|---|---|---|
| 6 Old Milton Road | £ 128,000 | 0.10 KM |
| 2a Old Milton Road | £ 125,000 | 0.10 KM |
| 4 Old Milton Road | £ 125,000 | 0.10 KM |
| 6b Old Milton Road | £ 120,000 | 0.10 KM |
| 2 Old Milton Road | £ 105,000 | 0.10 KM |