Chancellors says ..
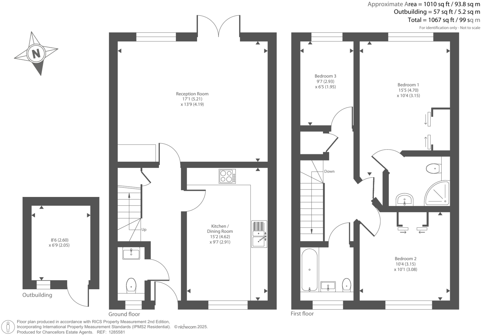
Beautiful Three-Bedroom Link-Detached House is offered chain free and is in Catchment for Westgate School. Benefits from two bathrooms, garage, driveway and private garden.
Property Oracle says ..
This property is located in Slough, Berkshire, and is a three-bedroom detached house. The location benefits from being close to several well-regarded schools, including The Westgate School (Outstanding Ofsted rating) and Eden Girls’ School, Slough (Outstanding Ofsted rating), both within a reasonable distance. Transportation links appear adequate with several train stations within a few kilometers. However, the provided data does not offer sufficient detail on the quality of local shops and amenities. The property itself appears to be in good condition based on the images. While some rooms show signs of being unfurnished and needing decoration, there is no obvious evidence of significant repair needs. The property includes a garden, which is a positive feature. The list price of £519,950 needs to be considered against the average price of £316,596 and average price per sqft of £436 in the area. Without knowing the square footage of the property, a definitive assessment of value for money is not possible. However, given the higher than average list price, further investigation into the property’s size and any unique features would be needed to determine if the price is justified.
Therefore, we give this property 6 / 10. *Disclaimer: This is our option and does constitute a recommendation or financial advice. Do your own research. *
- Price
- 6
- Condition
- 8
- Location
- 7
- Land
- 6
- Bedrooms
- 3
- Bathrooms
- 0
The heatmap indicates the level of crime in the area. The color of the heatmap indicates the crime severity and recency.
Metrics Year-on-Year
- Average area value
- 304,967.00 £Decreased by 8.76 %
- Average area rental value
- 1,680.00 £/moIncreased by 3.51 %
- Est rental Yield
- 6.61 %Increased by 13.38 %
- Crime Rate
- 7.00 %Unchanged by 0.00 %
Agent Activity
Chancellors created the listing.
Nearby Schools
| Name | Type | Ofsted | Distance |
|---|---|---|---|
| The Westgate School | Academy Converter | Outstanding | 0.55 KM |
| Western House Academy | Academy Sponsor Led | Good | 0.83 KM |
| Islamic Shakhsiyah Foundation | Other Independent School | 0.84 KM | |
| Al-Madani Girls School | Other Independent School | Good | 1.26 KM |
| Eden Girls' School, Slough | Free Schools | Outstanding | 1.43 KM |
Images
Nearby Streets
| Name | Average Price | Average Sqft | Distance |
|---|---|---|---|
| Little Chapel Way | £ 0 | 0 | 0.00 KM |
| Grimsby Road | £ 370,000 | 0 | 0.00 KM |
| Bentley Road | £ 0 | 0 | 0.00 KM |
| Roxwell Close | £ 0 | 0 | 0.00 KM |
| Egremont Gardens | £ 0 | 0 | 0.00 KM |
Nearby Transport
| Name | NLC | TLC | Distance |
|---|---|---|---|
| Burnham | 3176 | BNM | 2.11 KM |
| Windsor And Eton Central | 3175 | WNC | 3.90 KM |
| Windsor And Eton Riverside | 5672 | WNR | 3.99 KM |
| Slough | 3172 | SLO | 4.48 KM |
| Taplow | 3151 | TAP | 5.63 KM |
Nearby Listings
| Address | Price | Type | Score | Distance |
|---|---|---|---|---|
| Slough, Slough, SL1 | £ 519,950 | BUY | 6 / 10 | 0.00 KM |
| Graylands Close, Slough, Berkshire, SL1 | £ 425,000 | BUY | 6 / 10 | 0.08 KM |
| Graylands Close, Cippenham | £ 575,000 | BUY | 7 / 10 | 0.08 KM |
| Graylands Close, Slough | £ 425,000 | BUY | 7 / 10 | 0.08 KM |
| Nine Acres, Cippenham | £ 549,950 | BUY | 7 / 10 | 0.11 KM |
Nearby Properties
| Address | Price | Distance |
|---|---|---|
| 26 Graylands Close | £ 377,500 | 0.08 KM |
| 34 Graylands Close | £ 459,950 | 0.08 KM |
| 14 Graylands Close | £ 365,000 | 0.08 KM |
| 24 Graylands Close | £ 415,000 | 0.10 KM |
| 22 Graylands Close | £ 340,000 | 0.10 KM |