Bradleys says ..
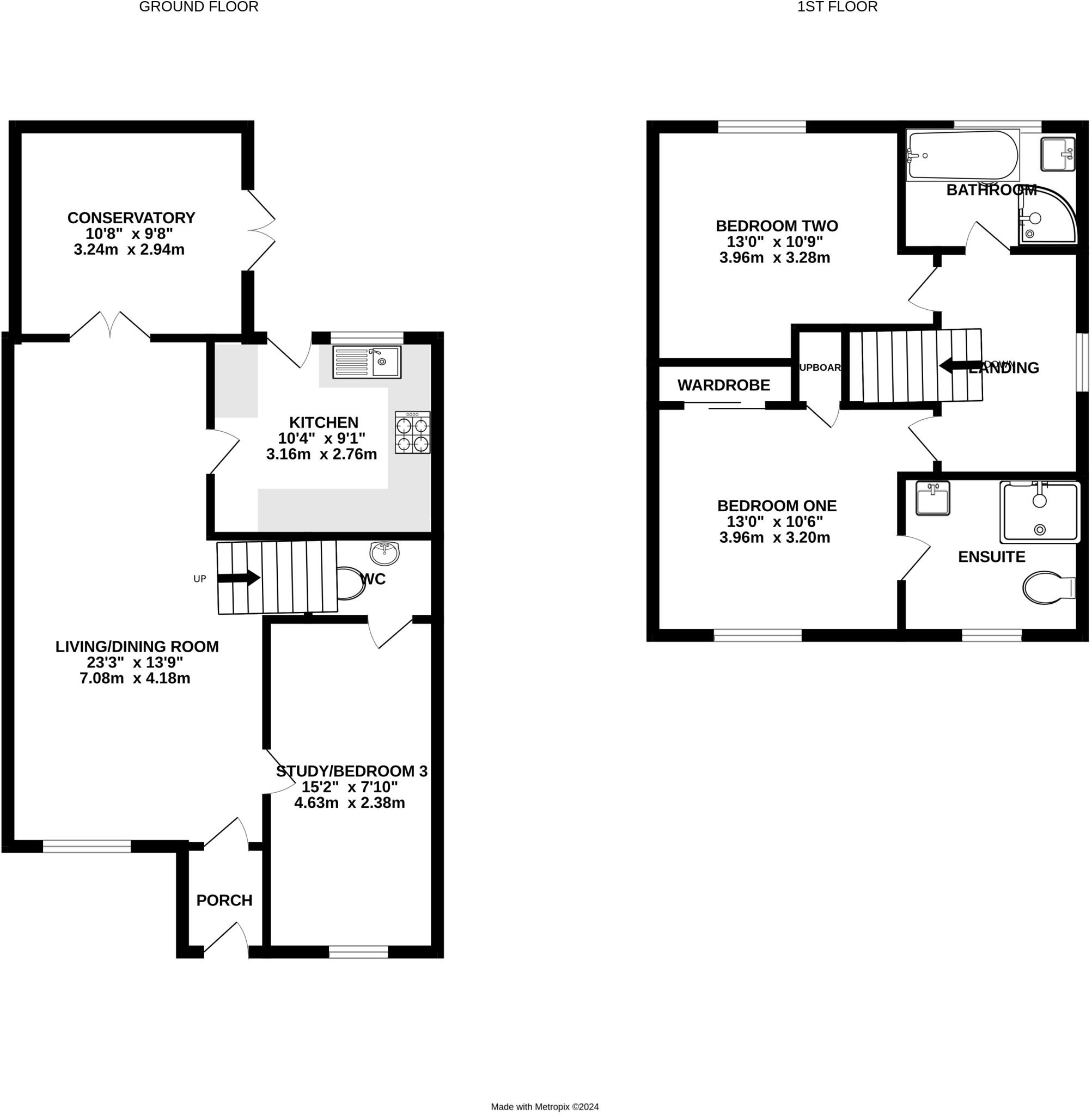
Detached 3-Bedroom Family Home - NO ONWARD CHAIN Bradleys are delighted to present this home to the market. The versatile living arrangements make this home suitable for your needs and with features to boast from the generous private garden to the well-proportioned bedrooms. Offered wit...
Property Oracle says ..
Therefore, we give this property 7 / 10. *Disclaimer: This is our option and does constitute a recommendation or financial advice. Do your own research. *
- Price
- 8
- Condition
- 7
- Location
- 8
- Land
- 7
- Bedrooms
- 3
- Bathrooms
- 2
The heatmap indicates the level of crime in the area. The color of the heatmap indicates the crime severity and recency.
Metrics Year-on-Year
- Average area value
- 405,000.00 £Increased by 16.66 %
- Average area rental value
- 1,075.00 £/moDecreased by 52.64 %
- Est rental Yield
- 3.19 %Decreased by 59.36 %
- Crime Rate
- 4.00 %Unchanged by 0.00 %
from 347,170.00 £
from 2,270.00 £/mo
from 7.85 %
from 4.00 %
Agent Activity
Bradleys created the listing.
Nearby Schools
| Name | Type | Ofsted | Distance |
|---|---|---|---|
| Holway Park Community Primary School | Community School | Good | 1.08 KM |
| Taunton Deane Partnership College | Pupil Referral Unit | Good | 1.23 KM |
| Bishop Fox'S School | Academy Converter | Good | 1.40 KM |
| Richard Huish College | Academy 16-19 Converter | Outstanding | 1.43 KM |
| Blackbrook Primary School | Academy Converter | 1.59 KM |
Images
Nearby Streets
| Name | Average Price | Average Sqft | Distance |
|---|---|---|---|
| Juniper Road | £ 0 | 0 | 0.00 KM |
| Hornbeam Close | £ 0 | 0 | 0.00 KM |
| Cedar Close | £ 0 | 0 | 0.00 KM |
| Bishops Close | £ 0 | 0 | 0.00 KM |
| Huish Road | £ 0 | 0 | 0.00 KM |
Nearby Transport
| Name | NLC | TLC | Distance |
|---|---|---|---|
| Taunton | 3471 | TAU | 3.42 KM |
Nearby Listings
| Address | Price | Type | Score | Distance |
|---|---|---|---|---|
| Heather Close, Taunton, Somerset | £ 300,000 | BUY | 7 / 10 | 0.00 KM |
| Celandine Mead, Blackbrook, Taunton, Somerset. | £ 220,000 | BUY | Unknown | 0.10 KM |
| Bluebell Close, Taunton, Somerset, TA1 | £ 150,000 | BUY | 6 / 10 | 0.15 KM |
| Bluebell Close, Taunton, Somerset. | £ 230,000 | BUY | 7 / 10 | 0.17 KM |
| Bluebell Close, Taunton | £ 210,000 | BUY | 6 / 10 | 0.17 KM |
Nearby Properties
| Address | Price | Distance |
|---|---|---|
| 1 Dowsland Way | £ 190,000 | 0.01 KM |
| 8 Sundew Close | £ 320,000 | 0.08 KM |
| 3 Sundew Close | £ 367,000 | 0.08 KM |
| 4 Sundew Close | £ 282,500 | 0.08 KM |
| 6 Sundew Close | £ 236,000 | 0.08 KM |