Bramhall Lane South, Bramhall, SK7
By One Stop Property Solutions
£ 1,175,000
Reviews
4 out of 5 stars
One Stop Property Solutions says ..
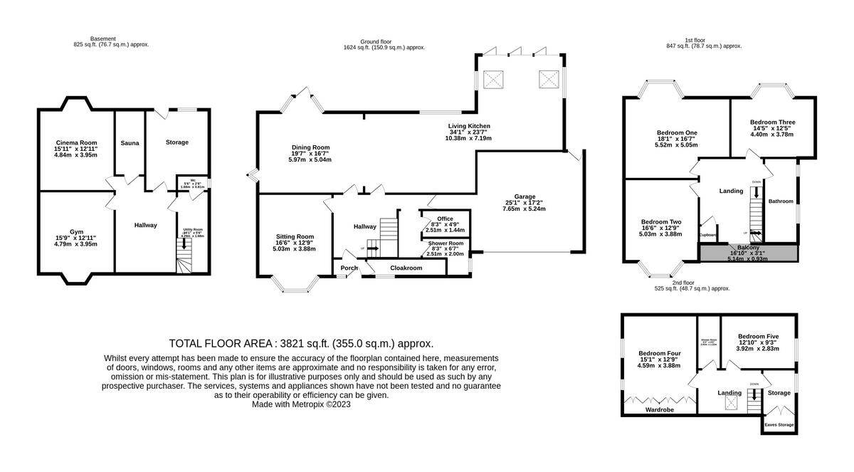
Homeleigh, an Oustanding Period Detached Family Home - FIVE DOUBLE BEDROOMS, FIVE RECEPTIONS Victorian Detached Family Home on a Large Plot. This Quality Forever Home you’ve been searching for, having been comprehensively refurbished throughout creating a one of a kind residence of supreme qualit
Property Oracle says ..
This five-bedroom, four-bathroom detached house located on Bramhall Lane South in Bramhall, Stockport presents a compelling proposition for discerning buyers. The property has clearly undergone a comprehensive and high-quality renovation or refurbishment, resulting in a modern and stylish interior. The images reveal a well-designed and spacious layout. Features such as the high-end kitchen with island and integrated appliances, the multiple updated bathrooms, and the expansive living areas all contribute to its luxurious feel. The substantial rear garden, as depicted in the photos, adds considerable appeal. The property’s location in Bramhall is a significant advantage, offering easy access to excellent schooling (including nearby outstanding-rated primary schools), convenient transport links via the Bramhall train station, and a range of local amenities. The inclusion of a home gym and sauna are additional selling points that will appeal to a variety of buyers. While the overall condition and location of the property are very strong, a more thorough comparative market analysis would be beneficial to accurately assess the price per square foot relative to similar renovated properties and determine the overall value for money.
Therefore, we give this property 8 / 10. *Disclaimer: This is our option and does constitute a recommendation or financial advice. Do your own research. *
- Price
- 7
- Condition
- 9
- Location
- 9
- Land
- 7
- Bedrooms
- 5
- Bathrooms
- 4
- Sqft (est)
- 3,821.19
The heatmap indicates the level of crime in the area. The color of the heatmap indicates the crime severity and recency.
Metrics Year-on-Year
- Average area value
- 420,413.00 £Decreased by 37.76 %
- Est sale value
- 1,891,489.05 £Increased by 43.48 %
- Average area rental value
- 1,333.00 £/moDecreased by 26.60 %
- Est letting value
- 3,821.19 £/mo
- Est rental Yield
- 3.80 %Increased by 17.65 %
- Crime Rate
- 0.00 %
Agent Activity
One Stop Property Solutions marked this listing as sold.
One Stop Property Solutions created the listing.
Nearby Schools
| Name | Type | Ofsted | Distance |
|---|---|---|---|
| Pownall Green Primary School | Community School | Outstanding | 0.69 KM |
| Nevill Road Infant School | Community School | Good | 1.00 KM |
| Nevill Road Junior School | Community School | Good | 1.03 KM |
| Bramhall High School | Community School | Requires improvement | 1.06 KM |
| Ladybrook Primary School | Community School | Outstanding | 1.18 KM |
Images
Nearby Streets
| Name | Average Price | Average Sqft | Distance |
|---|---|---|---|
| St Michael's Avenue | £ 1,285,000 | 0 | 0.00 KM |
| Parkway | £ 0 | 0 | 0.00 KM |
| Hillbury Road | £ 550,000 | 0 | 0.00 KM |
| A6 - Bramhall Park Cycle Path | £ 675,000 | 0 | 0.00 KM |
| Southern Close | £ 525,000 | 0 | 0.00 KM |
Nearby Transport
| Name | NLC | TLC | Distance |
|---|---|---|---|
| Bramhall | 2944 | BML | 1.14 KM |
| Davenport | 2770 | DVN | 2.43 KM |
| Woodsmoor | 2773 | WSR | 2.75 KM |
| Cheadle Hulme | 2870 | CHU | 3.06 KM |
| Poynton | 2874 | PYT | 3.72 KM |
Nearby Listings
| Address | Price | Type | Score | Distance |
|---|---|---|---|---|
| Bramhall Lane South, Bramhall, SK7 | £ 795,000 | BUY | 6 / 10 | 0.10 KM |
| Bramhall Lane South, Bramhall | £ 600,000 | BUY | 8 / 10 | 0.10 KM |
| BRAMHALL LANE SOUTH, Bramhall SK7 2NG | £ 550,000 | BUY | 6 / 10 | 0.13 KM |
| Fir Avenue, Bramhall, SK7 | £ 425,000 | BUY | 6 / 10 | 0.14 KM |
| FIR AVENUE, Bramhall SK7 2NR | £ 495,000 | BUY | Unknown | 0.14 KM |
Nearby Properties
| Address | Price | Distance |
|---|---|---|
| 198 Bramhall Lane South | £ 640,000 | 0.05 KM |
| 206 Bramhall Lane South | £ 700,000 | 0.05 KM |
| 234 Bramhall Lane South | £ 575,000 | 0.05 KM |
| 240 Bramhall Lane South | £ 665,000 | 0.05 KM |
| 208 Bramhall Lane South | £ 895,000 | 0.05 KM |