Awel-y-Mor & Haulfan, Brodog Terrace, Fishguard
By JJ Morris
£ 399,950
Reviews
3 out of 5 stars
JJ Morris says ..
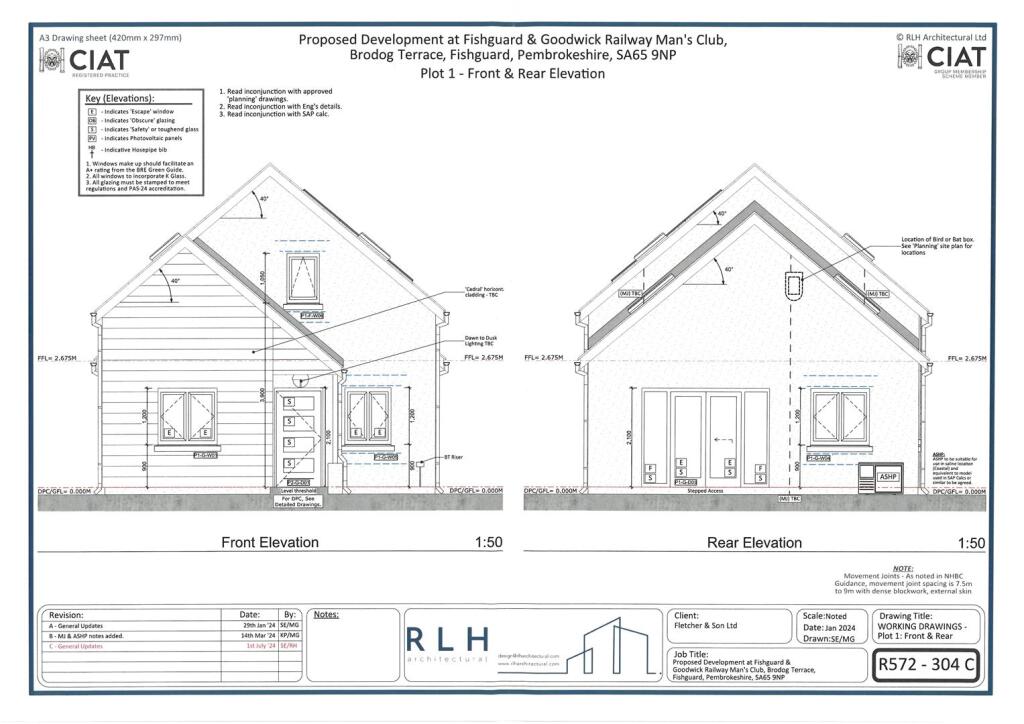
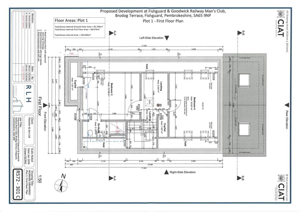
* Under Construction at present, 2 Architect designed Detached 2 storey Dwelling Houses. * Spacious accommodation including Hall, Open Plan Kitchen/Dining/Living Room (23'0" x 21'6" approx), Utility, Bathroom and 2 Bedrooms on Ground Floor. First Floor - 2 Bedrooms (One with En Suite Shower ...
Property Oracle says ..
This listing presents a new build, architect-designed detached house in Fishguard, Pembrokeshire. The property boasts a four-bedroom, two-bathroom layout, with an open-plan kitchen/dining/living area. The ground floor includes two bedrooms and a bathroom offering flexibility for a variety of lifestyles. Images showcase a modern exterior design with parking. Its proximity to schools and Fishguard Harbour are definite advantages. However, the absence of key details, such as square footage and the precise size of the plot, makes a complete valuation challenging. The listing price should be considered in relation to other recent sales of comparable properties in the area and the final specifications upon completion to fully determine its value. Buyers should thoroughly investigate the final specifications and conduct a full property survey before committing to a purchase.
Therefore, we give this property 6 / 10. *Disclaimer: This is our option and does constitute a recommendation or financial advice. Do your own research. *
- Price
- 7
- Condition
- 9
- Location
- 7
- Land
- 4
- Bedrooms
- 4
- Bathrooms
- 2
The heatmap indicates the level of crime in the area. The color of the heatmap indicates the crime severity and recency.
Metrics Year-on-Year
- Average area value
- 278,905.00 £Increased by 2.67 %
- Average area rental value
- 800.00 £/moDecreased by 34.53 %
- Est rental Yield
- 3.44 %Decreased by 36.30 %
- Crime Rate
- 49.00 %Unchanged by 0.00 %
Agent Activity
JJ Morris created the listing.
Nearby Schools
| Name | Type | Ofsted | Distance |
|---|---|---|---|
| Holy Name V.R.C. School | Welsh Establishment | 0.23 KM | |
| Ysgol Glannau Gwaun | Welsh Establishment | 0.38 KM | |
| Ysgol Bro Gwaun | Welsh Establishment | 0.90 KM | |
| Ysgol Gynradd Sirol Wdig | Welsh Establishment | 2.51 KM | |
| Ysgol Ger Y Llan V.C. School | Welsh Establishment | 8.06 KM |
Images
Nearby Streets
| Name | Average Price | Average Sqft | Distance |
|---|---|---|---|
| Victoria Avenue | £ 199,950 | 0 | 0.00 KM |
| Vergam Terrace | £ 268,333 | 0 | 0.00 KM |
| Bryn Road | £ 0 | 0 | 0.00 KM |
| Trem y Mor | £ 445,000 | 0 | 0.00 KM |
| Main Street | £ 0 | 0 | 0.00 KM |
Nearby Transport
| Name | NLC | TLC | Distance |
|---|---|---|---|
| Fishguard Harbour | 4076 | FGH | 1.70 KM |
| Fishguard And Goodwick | 6680 | FGW | 1.80 KM |
Nearby Listings
| Address | Price | Type | Score | Distance |
|---|---|---|---|---|
| Awel-y-Mor & Haulfan, Brodog Terrace, Fishguard | £ 399,950 | BUY | 6 / 10 | 0.00 KM |
| 11 Brodog Terrace, Fishguard | £ 195,000 | BUY | 5 / 10 | 0.06 KM |
| Victoria Avenue, Fishguard, SA65 | £ 189,950 | BUY | Unknown | 0.10 KM |
| 16 Brodog Terrace, Fishguard | £ 184,950 | BUY | 6 / 10 | 0.10 KM |
| 15 Victoria Avenue, Fishguard | £ 199,950 | BUY | 6 / 10 | 0.11 KM |
Nearby Properties
| Address | Price | Distance |
|---|---|---|
| 22 Brodog Terrace | £ 175,000 | 0.10 KM |
| 9 Brodog Terrace | £ 155,000 | 0.10 KM |
| 14 Brodog Terrace | £ 155,000 | 0.10 KM |
| 11 Victoria Avenue | £ 161,000 | 0.10 KM |
| 7 Victoria Avenue | £ 150,000 | 0.10 KM |