FO
Mount Pleasant Road, New Malden, KT3
By Foxtons
£ 625,000
Reviews
3 out of 5 stars
Foxtons says ..
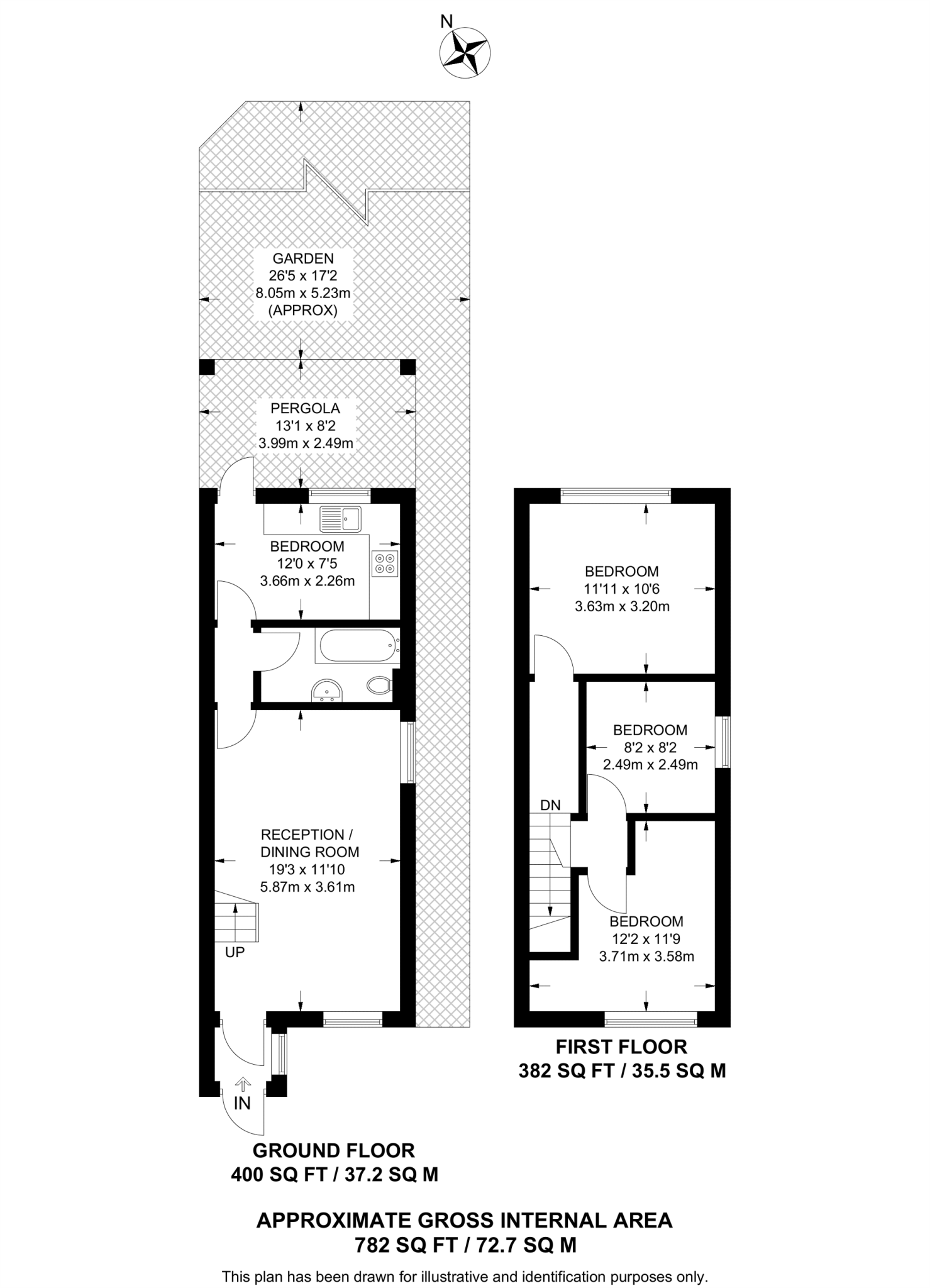
Well presented throughout, this bright and spacious 3-bedroom house offers a lovely open plan reception with space to dine, modern kitchen and bathroom, plus a sunny rear garden with pergola.
Property Oracle says ..
Therefore, we give this property 7 / 10. *Disclaimer: This is our option and does constitute a recommendation or financial advice. Do your own research. *
- Price
- 7
- Condition
- 7
- Location
- 7
- Land
- 7
- Bedrooms
- 3
- Bathrooms
- 1
- Sqft (est)
- 1,211.98
The heatmap indicates the level of crime in the area. The color of the heatmap indicates the crime severity and recency.
Metrics Year-on-Year
- Average area value
- 376,667.00 £Decreased by 11.42 %
- Est sale value
- 362,382.02 £Decreased by 27.43 %
- Average area rental value
- 1,100.00 £/moIncreased by 18.92 %
- Est letting value
- 0.00 £/mo
- Est rental Yield
- 3.50 %Increased by 34.10 %
- Crime Rate
- 11.00 %Unchanged by 0.00 %
from 425,220.00 £
from 499,335.76 £
from 925.00 £/mo
from 0.00 £/mo
from 2.61 %
from 11.00 %
Agent Activity
Foxtons created the listing.
Nearby Schools
| Name | Type | Ofsted | Distance |
|---|---|---|---|
| King'S Oak Primary School | Community School | Good | 0.24 KM |
| Norbiton Children'S Centre | Children's Centre | 0.27 KM | |
| Corpus Christi Catholic Primary School | Voluntary Aided School | Good | 0.52 KM |
| Christ Church New Malden Cofe Primary School | Voluntary Aided School | Good | 0.82 KM |
| Coombe Hill Junior School | Community School | Outstanding | 1.14 KM |
Images
Nearby Streets
| Name | Average Price | Average Sqft | Distance |
|---|---|---|---|
| Rosemont Road | £ 0 | 0 | 0.00 KM |
| Stafford Road | £ 0 | 0 | 0.00 KM |
| The Triangle | £ 0 | 0 | 0.00 KM |
| Springfield Place | £ 0 | 0 | 0.00 KM |
| South Park Grove | £ 0 | 0 | 0.00 KM |
Nearby Transport
| Name | NLC | TLC | Distance |
|---|---|---|---|
| Berrylands | 5581 | BRS | 1.20 KM |
| Norbiton | 5568 | NBT | 1.36 KM |
| New Malden | 5567 | NEM | 1.92 KM |
| Malden Manor | 5599 | MAL | 2.77 KM |
| Kingston | 5565 | KNG | 3.18 KM |
Nearby Listings
| Address | Price | Type | Score | Distance |
|---|---|---|---|---|
| Mount Pleasant Road, New Malden, KT3 | £ 625,000 | BUY | 7 / 10 | 0.00 KM |
| Mount Pleasant Road | £ 495,000 | BUY | Unknown | 0.03 KM |
| Mount Pleasant Road, New Malden, KT3 | £ 550,000 | BUY | 6 / 10 | 0.03 KM |
| Mount Pleasant Road, New Malden | £ 500,000 | BUY | 6 / 10 | 0.04 KM |
| Ashcombe Square, New Malden | £ 550,000 | BUY | Unknown | 0.06 KM |
Nearby Properties
| Address | Price | Distance |
|---|---|---|
| 99 Mount Pleasant Road | £ 321,000 | 0.03 KM |
| 83 Mount Pleasant Road | £ 463,000 | 0.03 KM |
| 115 Mount Pleasant Road | £ 265,000 | 0.03 KM |
| 103 Mount Pleasant Road | £ 510,000 | 0.03 KM |
| 113 Mount Pleasant Road | £ 185,000 | 0.03 KM |