GetAnOffer says ..
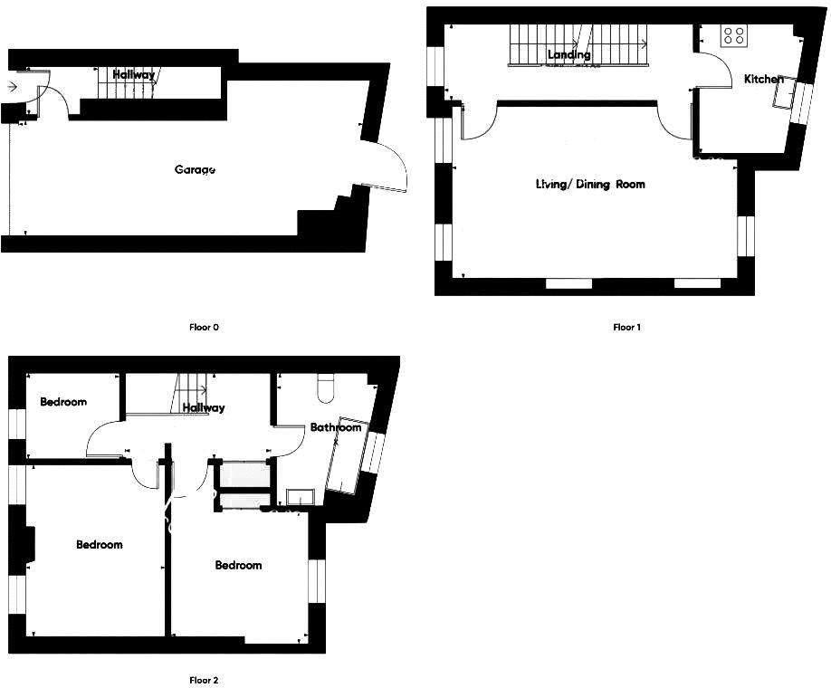
Situated in a popular residential area of Torquay, this charming end of terrace house offers spacious accommodation arranged over three floors. The ground floor benefits from a garage and off-road parking space, providing convenience and security, while the rear garden offers a pleasant outdo...
Property Oracle says ..
This end-of-terrace property on Vansittart Road, Torquay, offers three bedrooms and one bathroom. Boasting 1,830 sqft, the property provides ample living space. While the location is convenient, with nearby schools and transportation, the property does require some modernisation. The asking price of £280,000 reflects the need for some renovation, making it an attractive opportunity for buyers looking to add value. The property includes a small outdoor area.
Therefore, we give this property 5 / 10. *Disclaimer: This is our option and does constitute a recommendation or financial advice. Do your own research. *
- Price
- 6
- Condition
- 5
- Location
- 7
- Land
- 4
- Bedrooms
- 3
- Bathrooms
- 1
- Sqft (est)
- 1,830.00
The heatmap indicates the level of crime in the area. The color of the heatmap indicates the crime severity and recency.
Metrics Year-on-Year
- Average area value
- 294,333.00 £Increased by 15.16 %
- Est sale value
- 594,750.00 £Increased by 27.45 %
- Average area rental value
- 802.00 £/moDecreased by 15.22 %
- Est letting value
- 0.00 £/mo
- Est rental Yield
- 3.27 %Decreased by 26.35 %
- Crime Rate
- 38.00 %Unchanged by 0.00 %
Agent Activity
GetAnOffer created the listing.
Nearby Schools
| Name | Type | Ofsted | Distance |
|---|---|---|---|
| Cockington Children'S Centre | Children's Centre Linked Site | 0.53 KM | |
| Cockington Primary School | Academy Converter | Good | 0.53 KM |
| Torre Church Of England Academy | Academy Converter | Good | 0.74 KM |
| Upton St James Cofe Primary School | Academy Converter | Good | 0.90 KM |
| Torquay Academy | Academy Sponsor Led | Good | 1.03 KM |
Images
Nearby Streets
| Name | Average Price | Average Sqft | Distance |
|---|---|---|---|
| Lansdowne Lane | £ 550,000 | 0 | 0.00 KM |
| Maxwell Court | £ 0 | 0 | 0.00 KM |
| St. Vincent's Road | £ 142,750 | 0 | 0.00 KM |
| St. Katherines Road | £ 0 | 0 | 0.00 KM |
| Arthington | £ 0 | 0 | 0.00 KM |
Nearby Transport
| Name | NLC | TLC | Distance |
|---|---|---|---|
| Torre | 3432 | TRR | 0.63 KM |
| Torquay | 3434 | TQY | 1.08 KM |
| Paignton | 3427 | PGN | 4.77 KM |
| Newton Abbot | 3426 | NTA | 9.15 KM |
Nearby Listings
| Address | Price | Type | Score | Distance |
|---|---|---|---|---|
| Vansittart Road, Torquay, TQ2 | £ 280,000 | BUY | 5 / 10 | 0.00 KM |
| Vansittart Road, Torquay | £ 290,000 | BUY | 6 / 10 | 0.00 KM |
| Vansittart Road, Torquay | £ 150,000 | BUY | 4 / 10 | 0.02 KM |
| Lansdowne Court, Lansdowne Road, Torquay | £ 190,000 | BUY | 7 / 10 | 0.09 KM |
| Vansittart Road, Torquay, TQ2 | £ 375,000 | BUY | 6 / 10 | 0.10 KM |
Nearby Properties
| Address | Price | Distance |
|---|---|---|
| 16 Vansittart Road | £ 515,000 | 0.01 KM |
| 19 Vansittart Road | £ 207,500 | 0.01 KM |
| 20 Vansittart Road | £ 305,000 | 0.01 KM |
| 25a Vansittart Road | £ 115,000 | 0.02 KM |
| 10 - 12 Vansittart Road | £ 755,000 | 0.02 KM |