Connells says ..
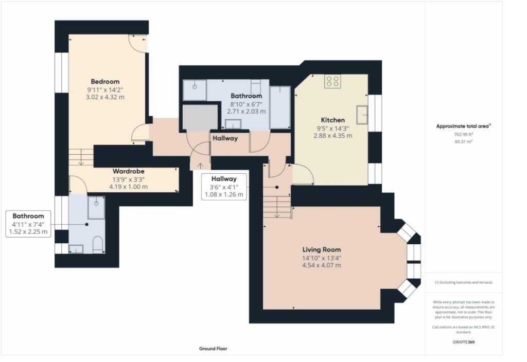
This immaculately presented, spacious 2 double bedroom apartment, is only a few years old forming part of a manor house, beautifully converted a few years ago by local builders, with a luxurious and quality finish, the apartment has lots to offer!
Property Oracle says ..
Therefore, we give this property 6 / 10. *Disclaimer: This is our option and does constitute a recommendation or financial advice. Do your own research. *
- Price
- 6
- Condition
- 8
- Location
- 7
- Land
- 3
- Bedrooms
- 2
- Bathrooms
- 2
The heatmap indicates the level of crime in the area. The color of the heatmap indicates the crime severity and recency.
Metrics Year-on-Year
- Average area value
- 396,809.00 £Increased by 30.40 %
- Average area rental value
- 892.00 £/moDecreased by 10.80 %
- Est rental Yield
- 2.70 %Decreased by 31.47 %
- Crime Rate
- 2.00 %Unchanged by 0.00 %
from 304,305.00 £
from 1,000.00 £/mo
from 3.94 %
from 2.00 %
Agent Activity
Connells created the listing.
Nearby Schools
| Name | Type | Ofsted | Distance |
|---|---|---|---|
| St Margaret'S Academy | Academy Converter | Good | 0.24 KM |
| Priory Roman Catholic Primary School, Torquay | Academy Converter | Requires improvement | 0.25 KM |
| Homelands Primary School | Community School | Good | 0.29 KM |
| Abbey School | Other Independent School | 0.42 KM | |
| St Marychurch Church Of England Primary And Nursery School | Academy Converter | Good | 0.51 KM |
Images
Nearby Streets
| Name | Average Price | Average Sqft | Distance |
|---|---|---|---|
| St George's Road | £ 512,500 | 0 | 0.00 KM |
| St Georges Crescent | £ 0 | 0 | 0.00 KM |
| Garden Road | £ 0 | 0 | 0.00 KM |
| Shirburn Road | £ 0 | 0 | 0.00 KM |
| Third Avenue | £ 0 | 0 | 0.00 KM |
Nearby Transport
| Name | NLC | TLC | Distance |
|---|---|---|---|
| Torre | 3432 | TRR | 2.46 KM |
| Torquay | 3434 | TQY | 2.94 KM |
| Paignton | 3427 | PGN | 6.72 KM |
| Teignmouth | 3430 | TGM | 8.22 KM |
| Newton Abbot | 3426 | NTA | 9.79 KM |
Nearby Listings
| Address | Price | Type | Score | Distance |
|---|---|---|---|---|
| St. Margarets Road, Torquay | £ 320,000 | BUY | 6 / 10 | 0.00 KM |
| Livvy Dean Court St. Margarets Close, Torquay | £ 250,000 | BUY | 6 / 10 | 0.10 KM |
| St Marychurch, Torquay | £ 250,000 | BUY | 6 / 10 | 0.12 KM |
| Greenway Terrace, Priory Road, St Marychurch, Torquay | £ 170,000 | BUY | 6 / 10 | 0.12 KM |
| St. Margarets Road, Torquay, TQ1 | £ 350,000 | BUY | 7 / 10 | 0.12 KM |
Nearby Properties
| Address | Price | Distance |
|---|---|---|
| 5 St Margarets Road | £ 280,000 | 0.04 KM |
| 15 St Margarets Road | £ 149,950 | 0.04 KM |
| 13 St Margarets Road | £ 342,000 | 0.04 KM |
| 11 St Margarets Road | £ 220,000 | 0.07 KM |
| 19 St Margarets Road | £ 343,500 | 0.07 KM |