Mells Lane, Chantry, Chantry, BA11
By Cooper & Tanner
£ 1,100,000
Reviews
2 out of 5 stars
Cooper & Tanner says ..
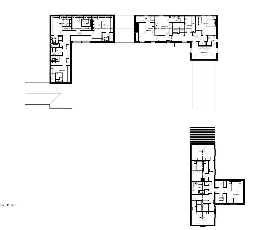
Unique Residential Development site for a selection of five luxury five bedroom homes with full planning permission.
Property Oracle says ..
The property is located in Chantry, Somerset, a rural area with a mix of period and modern homes. The nearby villages offer some amenities, including schools, but the immediate area appears to be quite secluded. The site plan shows the development of several new homes, which could enhance the area in the future. The provided photos show the site is currently under development, with existing barns and cleared land. The condition of the existing structures is poor. The lack of information regarding the size of the finished property makes it difficult to assess the value for money. The list price is significantly higher than the average price for the area, suggesting it may not be a great value for money. However, the development of new homes on this plot could significantly increase the value.
Therefore, we give this property 5 / 10. *Disclaimer: This is our option and does constitute a recommendation or financial advice. Do your own research. *
- Price
- 4
- Condition
- 3
- Location
- 6
- Land
- 7
- Bedrooms
- 0
- Bathrooms
- 0
The heatmap indicates the level of crime in the area. The color of the heatmap indicates the crime severity and recency.
Metrics Year-on-Year
- Average area value
- 442,500.00 £Decreased by 25.23 %
- Average area rental value
- 750.00 £/moDecreased by 53.12 %
- Est rental Yield
- 2.03 %Decreased by 37.35 %
- Crime Rate
- 0.00 %
Agent Activity
Cooper & Tanner created the listing.
Nearby Schools
| Name | Type | Ofsted | Distance |
|---|---|---|---|
| Mells Church Of England First School | Voluntary Controlled School | Good | 1.41 KM |
| Nunney First School | Academy Sponsor Led | Good | 3.38 KM |
| Leigh On Mendip School | Academy Converter | 4.18 KM | |
| Newbury Manor School | Other Independent Special School | Good | 4.63 KM |
| Hemington Primary School | Academy Converter | 6.28 KM |
Images
Nearby Streets
| Name | Average Price | Average Sqft | Distance |
|---|---|---|---|
| Longfield | £ 0 | 0 | 0.00 KM |
| Belle Vue | £ 380,000 | 0 | 0.00 KM |
| Limekiln Lane | £ 0 | 0 | 0.00 KM |
| Holes Lane | £ 0 | 0 | 0.00 KM |
| Top Lane | £ 0 | 0 | 0.00 KM |
Nearby Listings
| Address | Price | Type | Score | Distance |
|---|---|---|---|---|
| Mells Lane, Chantry, Chantry, BA11 | £ 1,100,000 | BUY | 5 / 10 | 0.00 KM |
| DEVELOPMENT SITE FOR 5 DWELLINGS, Chantry, Frome | £ 995,000 | BUY | 7 / 10 | 0.06 KM |
| Mells Lane, Chantry | £ 850,000 | BUY | 8 / 10 | 0.11 KM |
| Chantry, Frome, BA11 3LN | £ 940,000 | BUY | 7 / 10 | 0.24 KM |
| Stylish period property near Frome | £ 645,000 | BUY | 7 / 10 | 0.30 KM |
Nearby Properties
| Address | Price | Distance |
|---|---|---|
| Meadow View | £ 249,999 | 0.12 KM |
| 2 Mells Lane | £ 300,000 | 0.12 KM |
| Oaklands | £ 610,000 | 0.12 KM |
| 2 Belle Vue | £ 302,000 | 0.55 KM |
| Garden Cottage | £ 725,000 | 0.67 KM |