PU
Constitution Road, Chatham, Kent, ME5
By Purpleproperty
£ 225,000
Reviews
3 out of 5 stars
Purpleproperty says ..
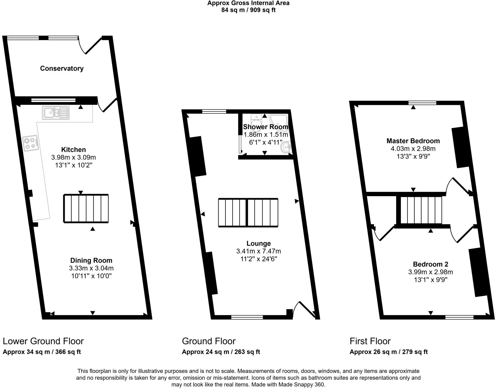
2 DOUBLE BEDROOM HOUSE IN A SOUGHT AFTER LOCATION.
Property Oracle says ..
Therefore, we give this property 7 / 10. *Disclaimer: This is our option and does constitute a recommendation or financial advice. Do your own research. *
- Price
- 7
- Condition
- 7
- Location
- 7
- Land
- 7
- Bedrooms
- 2
- Bathrooms
- 1
The heatmap indicates the level of crime in the area. The color of the heatmap indicates the crime severity and recency.
Metrics Year-on-Year
- Average area value
- 272,750.00 £Decreased by 5.37 %
- Average area rental value
- 1,449.00 £/moIncreased by 2.04 %
- Est rental Yield
- 6.38 %Increased by 7.95 %
- Crime Rate
- 10.00 %Unchanged by 0.00 %
from 288,223.00 £
from 1,420.00 £/mo
from 5.91 %
from 10.00 %
Agent Activity
Purpleproperty created the listing.
Nearby Schools
| Name | Type | Ofsted | Distance |
|---|---|---|---|
| Luton Primary School | Community School | Outstanding | 0.43 KM |
| Hospital And Medical Tuition Service | Miscellaneous | 0.44 KM | |
| All Saints Sure Start Children'S Centre | Children's Centre | 0.76 KM | |
| All Saints Church Of England Primary School | Academy Converter | Good | 0.78 KM |
| Chatham Grammar | Academy Converter | Good | 0.81 KM |
Images
Nearby Streets
| Name | Average Price | Average Sqft | Distance |
|---|---|---|---|
| York Hill | £ 250,000 | 0 | 0.00 KM |
| Bus Lane | £ 0 | 0 | 0.00 KM |
| Castle Road | £ 0 | 0 | 0.00 KM |
| Seymour Road | £ 203,500 | 0 | 0.00 KM |
| Bank Street | £ 110,000 | 0 | 0.00 KM |
Nearby Transport
| Name | NLC | TLC | Distance |
|---|---|---|---|
| Gillingham (Kent) | 5169 | GLM | 1.66 KM |
| Chatham | 5199 | CTM | 2.29 KM |
| Rochester | 5203 | RTR | 3.61 KM |
| Strood (Kent) | 5191 | SOO | 5.13 KM |
| Rainham (Kent) | 5177 | RAI | 7.83 KM |
Nearby Listings
| Address | Price | Type | Score | Distance |
|---|---|---|---|---|
| Constitution Road, Chatham, Kent, ME5 | £ 225,000 | BUY | 7 / 10 | 0.00 KM |
| Constitution Road,Chatham,ME5 7DN | £ 180,000 | BUY | 6 / 10 | 0.01 KM |
| Upper Luton Road, Chatham, Kent | £ 170,000 | BUY | 6 / 10 | 0.12 KM |
| Upper Luton Road, Chatham | £ 375,000 | BUY | Unknown | 0.14 KM |
| Upper Luton Road, Chatham | £ 250,000 | BUY | 5 / 10 | 0.14 KM |
Nearby Properties
| Address | Price | Distance |
|---|---|---|
| 24 Constitution Road | £ 230,000 | 0.03 KM |
| 85 Constitution Road | £ 124,995 | 0.03 KM |
| 22 Constitution Road | £ 170,000 | 0.03 KM |
| 18 Constitution Road | £ 230,000 | 0.03 KM |
| 42 Constitution Road | £ 125,000 | 0.03 KM |