Main Street, Distington, Workington
By Grisdales Estates Agents
£ 62,250
Reviews
2 out of 5 stars
Grisdales Estates Agents says ..
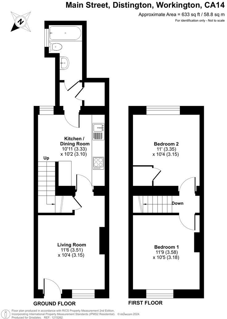
This mid-terrace house located on Main Street in the village of Distington, Workington, boasts two reception rooms, two double bedrooms, neutral lounge, kitchen diner and family bathroom. Although this house requires some tender loving care, it presents a wonderful opportunity for those looki...
Property Oracle says ..
This mid-terrace house is located in Distington, a village in Workington, Cumbria. The property requires some modernisation and updating, as seen in the provided images. It benefits from two double bedrooms and a family bathroom. The location is convenient, with nearby transportation links and schools. However, the area average price is significantly higher than the list price of this property. More information on the property size would allow for a more accurate assessment of the price.
Therefore, we give this property 4 / 10. *Disclaimer: This is our option and does constitute a recommendation or financial advice. Do your own research. *
- Price
- 3
- Condition
- 4
- Location
- 7
- Land
- 5
- Bedrooms
- 2
- Bathrooms
- 1
- Sqft (est)
- 632.92
The heatmap indicates the level of crime in the area. The color of the heatmap indicates the crime severity and recency.
Metrics Year-on-Year
- Average area value
- 436,667.00 £Increased by 9.99 %
- Est sale value
- 339,878.04 £Increased by 46.72 %
- Average area rental value
- 1,625.00 £/moIncreased by 11.23 %
- Est letting value
- 632.92 £/moUnchanged by 0.00 %
- Est rental Yield
- 4.47 %Increased by 1.13 %
- Crime Rate
- 78.00 %Unchanged by 0.00 %
Agent Activity
Grisdales Estates Agents created the listing.
Nearby Schools
| Name | Type | Ofsted | Distance |
|---|---|---|---|
| Distington Community School | Community School | Good | 0.25 KM |
| West Cumbria Learning Centre | Pupil Referral Unit | Good | 1.11 KM |
| Lakes College - West Cumbria | Further Education | Good | 1.95 KM |
| Energy Coast Utc | University Technical College | Outstanding | 3.06 KM |
| Beckstone Primary School | Community School | Good | 3.09 KM |
Images
Nearby Streets
| Name | Average Price | Average Sqft | Distance |
|---|---|---|---|
| Kilnside | £ 0 | 0 | 0.00 KM |
| Barnghyll Place | £ 90,000 | 0 | 0.00 KM |
| B5306 | £ 540,000 | 0 | 0.00 KM |
| Hill Crest | £ 0 | 0 | 0.00 KM |
| Winscales Avenue | £ 250,000 | 0 | 0.00 KM |
Nearby Transport
| Name | NLC | TLC | Distance |
|---|---|---|---|
| Harrington | 2027 | HRR | 3.46 KM |
| Parton | 2032 | PRN | 5.38 KM |
| Workington | 2040 | WKG | 5.83 KM |
| Whitehaven | 2048 | WTH | 7.09 KM |
| Corkickle | 2049 | CKL | 7.67 KM |
Nearby Listings
| Address | Price | Type | Score | Distance |
|---|---|---|---|---|
| Main Street, Distington, Workington | £ 62,250 | BUY | 4 / 10 | 0.00 KM |
| Main Street, Distington, CA14 | £ 75,000 | BUY | Unknown | 0.00 KM |
| Main Street, Distington, Workington | £ 82,500 | BUY | 7 / 10 | 0.07 KM |
| Scholars Green, Distington, Workington, Cumbria, CA14 | £ 250,000 | BUY | Unknown | 0.12 KM |
| Scholars Green, Distington, Workington, CA14 5UA | £ 220,000 | BUY | 7 / 10 | 0.13 KM |
Nearby Properties
| Address | Price | Distance |
|---|---|---|
| 109 Main Street | £ 67,000 | 0.02 KM |
| 64 Main Street | £ 59,000 | 0.02 KM |
| 95 Main Street | £ 195,000 | 0.02 KM |
| 66 Main Street | £ 85,000 | 0.02 KM |
| 119b Main Street | £ 34,000 | 0.02 KM |