Victoria Road, Harborne, Birmingham, West Midlands, B17 0AE
By MECS Sales & Lettings
£ 350,000
Reviews
3 out of 5 stars
MECS Sales & Lettings says ..
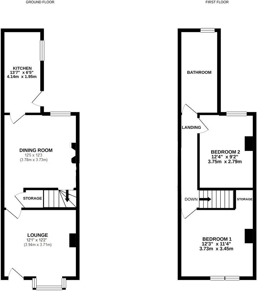
Beautifully Presented 2-Bed Period Home with Garden – No Chain, Victoria Road, Harborne B17
Property Oracle says ..
This is a well-presented two-bedroom terraced house in the popular Harborne area of Birmingham. The property benefits from a modern kitchen and bathroom, and a garden. The location is convenient for schools, transport links, and local amenities. The price is competitive for the area.
Therefore, we give this property 7 / 10. *Disclaimer: This is our option and does constitute a recommendation or financial advice. Do your own research. *
- Price
- 7
- Condition
- 8
- Location
- 8
- Land
- 6
- Bedrooms
- 2
- Bathrooms
- 1
- Sqft (est)
- 647.24
The heatmap indicates the level of crime in the area. The color of the heatmap indicates the crime severity and recency.
Metrics Year-on-Year
- Average area value
- 430,989.00 £Increased by 6.80 %
- Est sale value
- 319,089.32 £Increased by 74.20 %
- Average area rental value
- 1,439.00 £/moIncreased by 15.21 %
- Est letting value
- 647.24 £/mo
- Est rental Yield
- 4.01 %Increased by 8.09 %
- Crime Rate
- 3.00 %Unchanged by 0.00 %
Agent Activity
MECS Sales & Lettings created the listing.
Nearby Schools
| Name | Type | Ofsted | Distance |
|---|---|---|---|
| St Peters Cofe Primary School | Voluntary Aided School | Good | 0.44 KM |
| Baskerville School | Foundation Special School | Good | 0.45 KM |
| Queen Alexandra College | Special Post 16 Institution | Good | 0.61 KM |
| St Mary'S Catholic Primary School | Voluntary Aided School | Outstanding | 1.05 KM |
| Harborne Primary School | Community School | Outstanding | 1.12 KM |
Images
Nearby Streets
| Name | Average Price | Average Sqft | Distance |
|---|---|---|---|
| Saint Peter's Road | £ 260,000 | 0 | 0.00 KM |
| Barons Close | £ 159,000 | 0 | 0.00 KM |
| Winifride Court | £ 150,000 | 0 | 0.00 KM |
| Battenhall Road | £ 499,950 | 0 | 0.00 KM |
| Beech Road | £ 165,000 | 0 | 0.00 KM |
Nearby Transport
| Name | NLC | TLC | Distance |
|---|---|---|---|
| University (Birmingham) | 4504 | UNI | 2.90 KM |
| Selly Oak | 1105 | SLY | 3.32 KM |
| Smethwick Rolfe Street | 1150 | SMR | 4.62 KM |
| Bournville | 1112 | BRV | 5.11 KM |
| Northfield | 1111 | NFD | 5.29 KM |
Nearby Listings
| Address | Price | Type | Score | Distance |
|---|---|---|---|---|
| Victoria Road, Harborne, Birmingham, West Midlands, B17 0AE | £ 350,000 | BUY | 7 / 10 | 0.00 KM |
| Victoria Road, Harborne, Birmingham | £ 280,000 | BUY | 6 / 10 | 0.01 KM |
| Victoria Road, Harborne, Birmingham | £ 325,000 | BUY | 7 / 10 | 0.01 KM |
| Hartledon Road, Harborne, Birmingham | £ 375,000 | BUY | 7 / 10 | 0.03 KM |
| Hartledon Road, Harborne, Birmingham | £ 320,000 | BUY | 7 / 10 | 0.07 KM |
Nearby Properties
| Address | Price | Distance |
|---|---|---|
| 54 Victoria Road | £ 80,750 | 0.01 KM |
| 78 Victoria Road | £ 325,350 | 0.01 KM |
| 56 Victoria Road | £ 156,000 | 0.01 KM |
| 90 Victoria Road | £ 328,000 | 0.01 KM |
| 88 Victoria Road | £ 255,000 | 0.01 KM |