Beacon View, South Kirkby, WF9
By Ruth Pitts Estate Agents, Powered by eXp
£ 400,000
Reviews
3 out of 5 stars
Ruth Pitts Estate Agents, Powered by eXp says ..
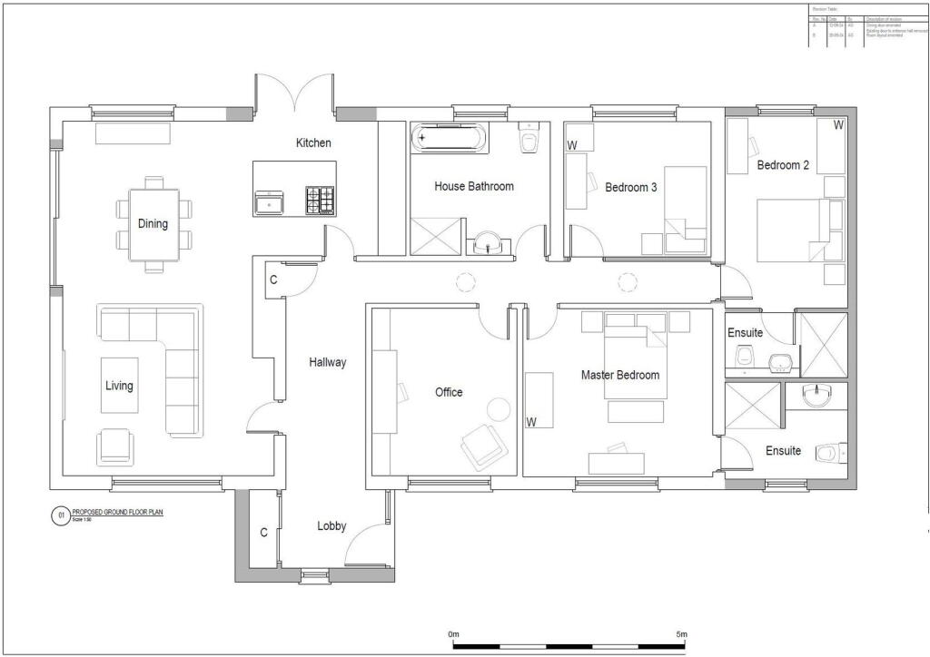
Guide Price £400,000 - £425,000 A RARE OPPORTUNITY! to acquire this SHOW-STOPPING, IMMACULATELY PRESENTED FOUR-BEDROOM DETACHED BUNGALOW in the sought-after village of South Kirkby. Set on a GENEROUS WRAP-AROUND PLOT, the home offers MODERN DESIGN, PRIVACY and SPACE, with BE...
Property Oracle says ..
This is a detached bungalow in South Kirkby, Wakefield. The property features four bedrooms and three bathrooms, with a total square footage of 1,278.99 sqft. The interior is modern and well-maintained, with a recently renovated kitchen and bathrooms. The property also benefits from a garden and off-street parking. While the location is suburban, it offers convenient access to schools and transportation. However, the list price of £400,000 may be considered high compared to the average property prices in the area.
Therefore, we give this property 7 / 10. *Disclaimer: This is our option and does constitute a recommendation or financial advice. Do your own research. *
- Price
- 6
- Condition
- 9
- Location
- 6
- Land
- 7
- Bedrooms
- 4
- Bathrooms
- 3
- Sqft (est)
- 1,278.99
The heatmap indicates the level of crime in the area. The color of the heatmap indicates the crime severity and recency.
Metrics Year-on-Year
- Average area value
- 214,131.00 £Increased by 11.80 %
- Est sale value
- 388,812.96 £Increased by 25.10 %
- Average area rental value
- 388.00 £/moDecreased by 44.49 %
- Est letting value
- 0.00 £/mo
- Est rental Yield
- 2.17 %Decreased by 50.46 %
- Crime Rate
- 29.00 %Unchanged by 0.00 %
Agent Activity
Ruth Pitts Estate Agents, Powered by eXp created the listing.
Nearby Schools
| Name | Type | Ofsted | Distance |
|---|---|---|---|
| Northfield Primary School: With Communication Resource | Community School | Requires improvement | 0.55 KM |
| Moorthorpe Primary (J And I ) School | Community School | Good | 1.46 KM |
| St Joseph'S Catholic Primary School, Moorthorpe | Academy Sponsor Led | Good | 1.53 KM |
| South Kirkby Academy | Academy Converter | Requires improvement | 2.07 KM |
| South Kirkby Common Road Infant And Nursery School | Community School | Requires improvement | 2.27 KM |
Images
Nearby Streets
| Name | Average Price | Average Sqft | Distance |
|---|---|---|---|
| Neville Close | £ 0 | 0 | 0.00 KM |
| Northagh Close | £ 55,500 | 0 | 0.00 KM |
| Church Drive | £ 0 | 0 | 0.00 KM |
| Buttercup Court | £ 0 | 0 | 0.00 KM |
| Prospect Terrace | £ 0 | 0 | 0.00 KM |
Nearby Transport
| Name | NLC | TLC | Distance |
|---|---|---|---|
| Moorthorpe | 8539 | MRP | 1.13 KM |
| South Elmsall | 8355 | SES | 3.34 KM |
| Thurnscoe | 8282 | THC | 5.82 KM |
| Goldthorpe | 8284 | GOE | 6.99 KM |
| Fitzwilliam | 8583 | FZW | 7.66 KM |
Nearby Listings
| Address | Price | Type | Score | Distance |
|---|---|---|---|---|
| Beacon View, South Kirkby, WF9 | £ 400,000 | BUY | 7 / 10 | 0.00 KM |
| Springvale Road, South Kirkby, Pontefract, West Yorkshire, WF9 | £ 230,000 | BUY | Unknown | 0.03 KM |
| Beacon View, South Kirby, WF9 | £ 190,000 | BUY | 7 / 10 | 0.11 KM |
| Vicarage Close, South Kirkby, Pontefract | £ 210,000 | BUY | 6 / 10 | 0.12 KM |
| Carr Lane, South Kirkby, Pontefract | £ 350,000 | BUY | 7 / 10 | 0.13 KM |
Nearby Properties
| Address | Price | Distance |
|---|---|---|
| 5 Beacon View | £ 132,000 | 0.13 KM |
| 33 Beacon View | £ 135,000 | 0.13 KM |
| 1 Beacon View | £ 118,750 | 0.13 KM |
| 37 Beacon View | £ 137,500 | 0.13 KM |
| 11 Beacon View | £ 105,000 | 0.13 KM |