Cobden Road, Brighton, BN2 9TJ
By Jacobs Steel
£ 500,000
Reviews
3 out of 5 stars
Jacobs Steel says ..
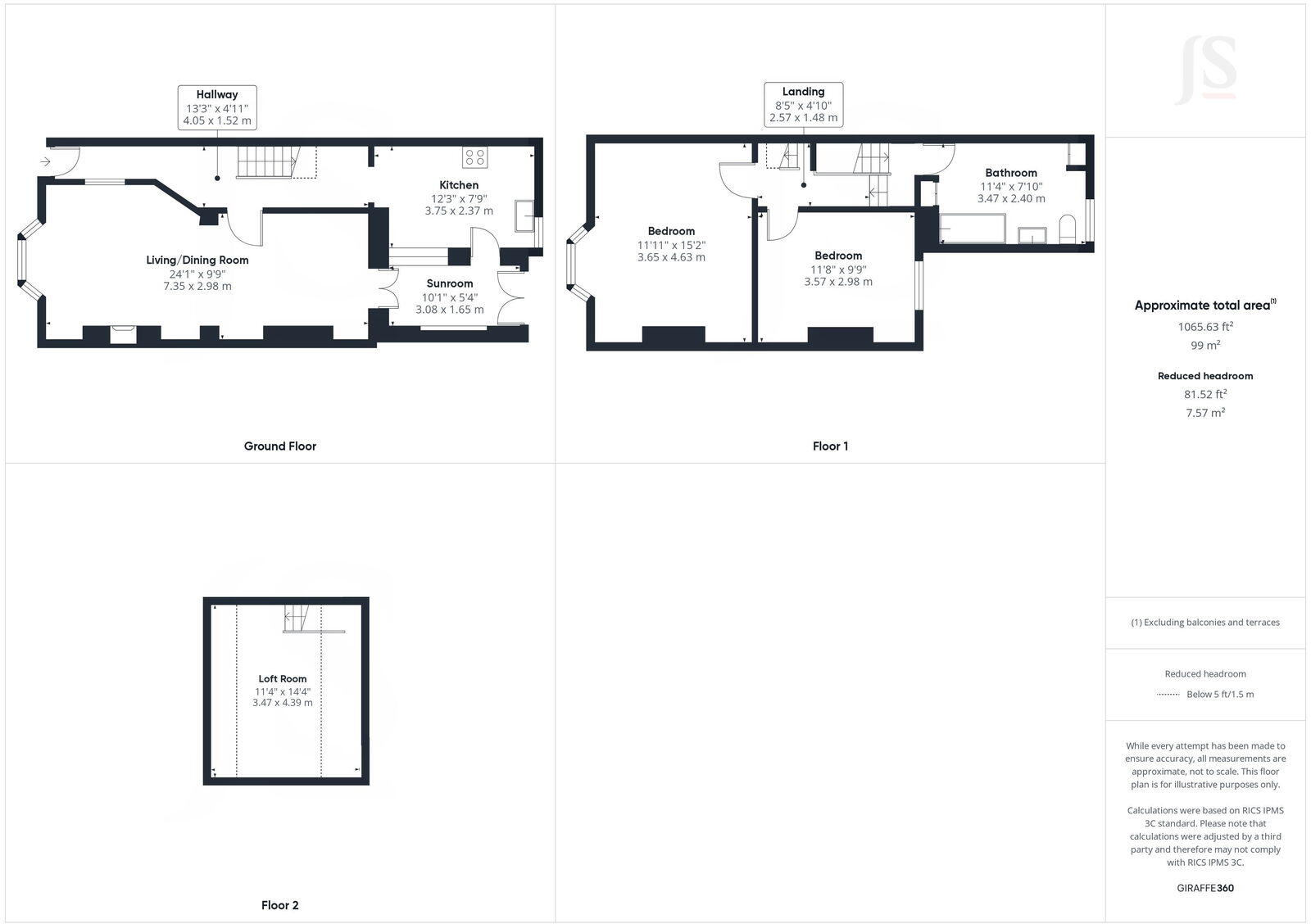
A lovely terrace family home situated in the ever popular Hanover location of Brighton. Benefits include a larger than average garden for the area, two double bedrooms, handy loft room and a conservatory.
Property Oracle says ..
This property is a 2 bedroom, 1 bathroom terraced house located on Cobden Road in Brighton. The location is excellent, with nearby schools, transportation links, and local amenities. The property benefits from a garden, though it appears to be relatively small. The interior is eclectic in style and shows evidence of past modernisation. While the property is habitable, some aspects of the interior decor might not appeal to all buyers. The list price of £500,000 is slightly above the average price for the area, but the larger size of the property compared to the average in the area may justify this. More information on the plot size and overall condition would be needed for a more definitive assessment.
Therefore, we give this property 6 / 10. *Disclaimer: This is our option and does constitute a recommendation or financial advice. Do your own research. *
- Price
- 7
- Condition
- 7
- Location
- 9
- Land
- 4
- Bedrooms
- 2
- Bathrooms
- 1
- Sqft (est)
- 1,065.63
The heatmap indicates the level of crime in the area. The color of the heatmap indicates the crime severity and recency.
Metrics Year-on-Year
- Average area value
- 485,964.00 £Increased by 6.04 %
- Est sale value
- 646,837.41 £Increased by 26.20 %
- Average area rental value
- 2,153.00 £/moIncreased by 8.63 %
- Est letting value
- 2,131.26 £/moUnchanged by 0.00 %
- Est rental Yield
- 5.32 %Increased by 2.50 %
- Crime Rate
- 1.00 %Unchanged by 0.00 %
Agent Activity
Jacobs Steel created the listing.
Nearby Schools
| Name | Type | Ofsted | Distance |
|---|---|---|---|
| Elm Grove Primary School | Community School | Good | 0.42 KM |
| Fairlight Primary School | Community School | Good | 0.51 KM |
| St Luke'S Primary School | Community School | Outstanding | 0.55 KM |
| St Martin'S Cofe Primary School | Voluntary Aided School | Good | 0.59 KM |
| Royal Spa Nursery School | Local Authority Nursery School | Outstanding | 0.81 KM |
Images
Nearby Streets
| Name | Average Price | Average Sqft | Distance |
|---|---|---|---|
| Saint Luke's Road | £ 825,000 | 0 | 0.00 KM |
| St Martin's Place | £ 0 | 0 | 0.00 KM |
| Carn Court | £ 282,500 | 0 | 0.00 KM |
| Saint Luke's Terrace | £ 0 | 0 | 0.00 KM |
| Park View | £ 975,000 | 0 | 0.00 KM |
Nearby Transport
| Name | NLC | TLC | Distance |
|---|---|---|---|
| London Road (Brighton) | 5281 | LRB | 1.44 KM |
| Brighton | 5268 | BTN | 1.80 KM |
| Moulsecoomb | 5312 | MCB | 1.95 KM |
| Preston Park | 5285 | PRP | 3.75 KM |
| Hove | 5273 | HOV | 5.07 KM |
Nearby Listings
| Address | Price | Type | Score | Distance |
|---|---|---|---|---|
| Cobden Road, Brighton, BN2 9TJ | £ 500,000 | BUY | 6 / 10 | 0.00 KM |
| Cobden Road, Hanover, Brighton BN2 9TL | £ 455,000 | BUY | 6 / 10 | 0.02 KM |
| Cobden Road, Brighton | £ 500,000 | BUY | 7 / 10 | 0.04 KM |
| Luther Street, Hanover, Brighton BN2 9XA | £ 435,000 | BUY | 7 / 10 | 0.04 KM |
| Cobden Road, Brighton, BN2 | £ 475,000 | BUY | 6 / 10 | 0.05 KM |
Nearby Properties
| Address | Price | Distance |
|---|---|---|
| 74 Cobden Road | £ 540,000 | 0.01 KM |
| 40 Cobden Road | £ 290,000 | 0.01 KM |
| 36 Cobden Road | £ 396,000 | 0.02 KM |
| 59 Cobden Road | £ 410,000 | 0.02 KM |
| 60 Cobden Road | £ 322,000 | 0.02 KM |